Bisley, Woking, Surrey, GU24

£550,000
SSTC
This property listing is now SSTC

3 Bedroom Link Detached House for sale in Woking

1 3 1
  • Stunning Condition Throughout
  • Modern Kitchen With Granite Worktops
  • Downstairs Cloakroom
  • Lounge/Dining Room with Bi-Folding Doors
  • Utility Room
  • Private Rear Garden
  • Modern Family Bathroom
  • Driveway With Parking For Two Cars
  • Close to Bisley Primary School

Beautifully Updated 3-Bedroom Link-Detached Home in Immaculate Condition

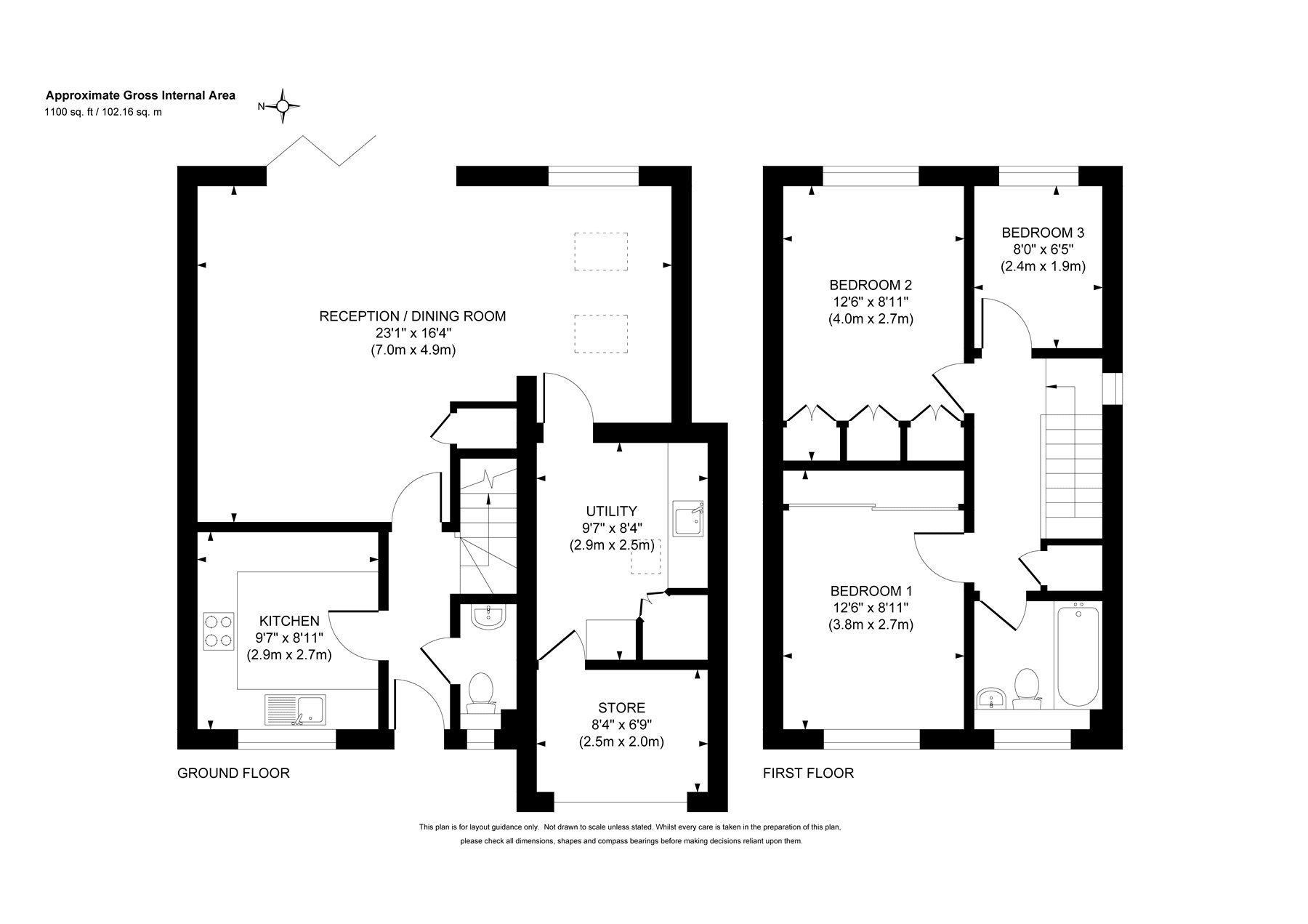
This superbly presented three-bedroom link-detached house has been thoughtfully updated throughout by the current owners and is now offered in immaculate condition, ready to move straight into.

On the ground floor, a welcoming front-aspect kitchen is fitted with a range of base and eye-level units, granite worktops, and integrated appliances including an oven and induction hob. There is also a convenient downstairs cloakroom.

To the rear of the property is a spacious reception area that serves as a combined lounge and dining room—Bi-fold doors have been added to create a space ideal for both relaxing and entertaining. Additionally, a separate utility and storage area adds valuable practicality to this already impressive home.

Upstairs, the property boasts three well-proportioned bedrooms, including two generous doubles with built-in wardrobes. The bedrooms share a stylish modern bathroom featuring a contemporary three-piece suite, including a square-ended bath with a wall-mounted shower, wash hand basin, and WC.

Outside is a beautifully maintained rear garden that comes mainly laid to lawn with a patio area providing space to sit or entertain. To the front of the property is a driveway with parking for two cars.

This is a fantastic opportunity to secure a high-quality home in a desirable location with excellent amenities and transport links nearby.

Location
Bisley village sits conveniently for access to both Woking (3.4 Miles) and Guildford (7.7 miles) whilst the M3 is approximately 2 miles. There is a Primary school in the village with secondary schools being easily accessible in West End (Gordons) and St Johns (Winston Churchill). There is a local Sainsburys within the village as well as an excellent continental butcher. A larger Sainsburys superstore is within a mile in nearby Knaphill. For those who enjoy the outdoors Bisley village is surrounded by acres of common land at nearby Brentmoor Heath as well as Stafford Lake. Nearby Brookwood station provides a regular direct service to Waterloo.

N.B The vendor of this property is a connected person with the meaning of the Estate Agents Act and a declaration to that effect is hereby made in accordance with section 21 of The Act.

Important Information

  • This is a Freehold property.

Property Ref: KNA250361

Share:

Similar Properties

Knaphill, Woking, Surrey, GU21

3 Bedroom Detached Bungalow | Offers in excess of £550,000

Situated just a short walk from the heart of Knaphill village and with a convenience store quite literally across the ro...

Knaphill, Woking, GU21

4 Bedroom Semi-Detached House | £550,000

Situated on the sought-after Brookwood Farm Development in Knaphill, this spacious semi detached home offers a prime loc...

Woking, Surrey, GU21

4 Bedroom Semi-Detached House | Guide Price £550,000

Spacious 4-Bedroom Family Home Within Walking Distance of Hermitage SchoolsEasy Access to Brookwood Mainline StationIdea...

West End, Woking, Surrey, GU24

3 Bedroom Semi-Detached House | £556,500

A stunning semi-detached home located in the sought after village of West End. The property is offered to the market in...

West End, Woking, Surrey, GU24

3 Bedroom Detached House | £560,000

Offered to the market in the highest order, this beautifully renovated detached home is ideally located within approxima...

West End, Woking, Surrey, GU24

3 Bedroom Semi-Detached House | £565,000

An extremely well presented semi detached family home located in a pleasant courtyard style environment, on the highly s...

Seymours (Knaphill)

Knaphill, Surrey, GU21 2PP

01483 798969

How much is your home worth?

Use our short form to request a valuation of your property.

Request a Valuation

Mortgage Calculator

Amount Borrowed: £
Total Amount Repayable: £
Total Monthly Payment: £
©2026 The Guild of Property Professionals. All rights reserved. Terms and Conditions | Privacy Policy | Cookie Policy | Complaints Policy | Members Login
The Guild of Property Professionals Trading Address: 121 Park Lane, London W1K 7AG. GPEA Limited. Registered in England & Wales.  Company No: 02819824.  Registered Office Address: 2 St. Stephen's Court, St. Stephen's Road, Bournemouth, Dorset, England, BH2 6LA.  VAT Registration No: 576 8795 61
Book a Property Valuation Update Cookies Preferences