- Prime Commercial Opportunity in the Heart of the historic Wymondham Town Centre
- Offered with vacant possession, this mid-terrace building occupies a prominent position on Fairland Street.
- Benefiting from strong footfall and high visibility, ideal for a variety of business uses.
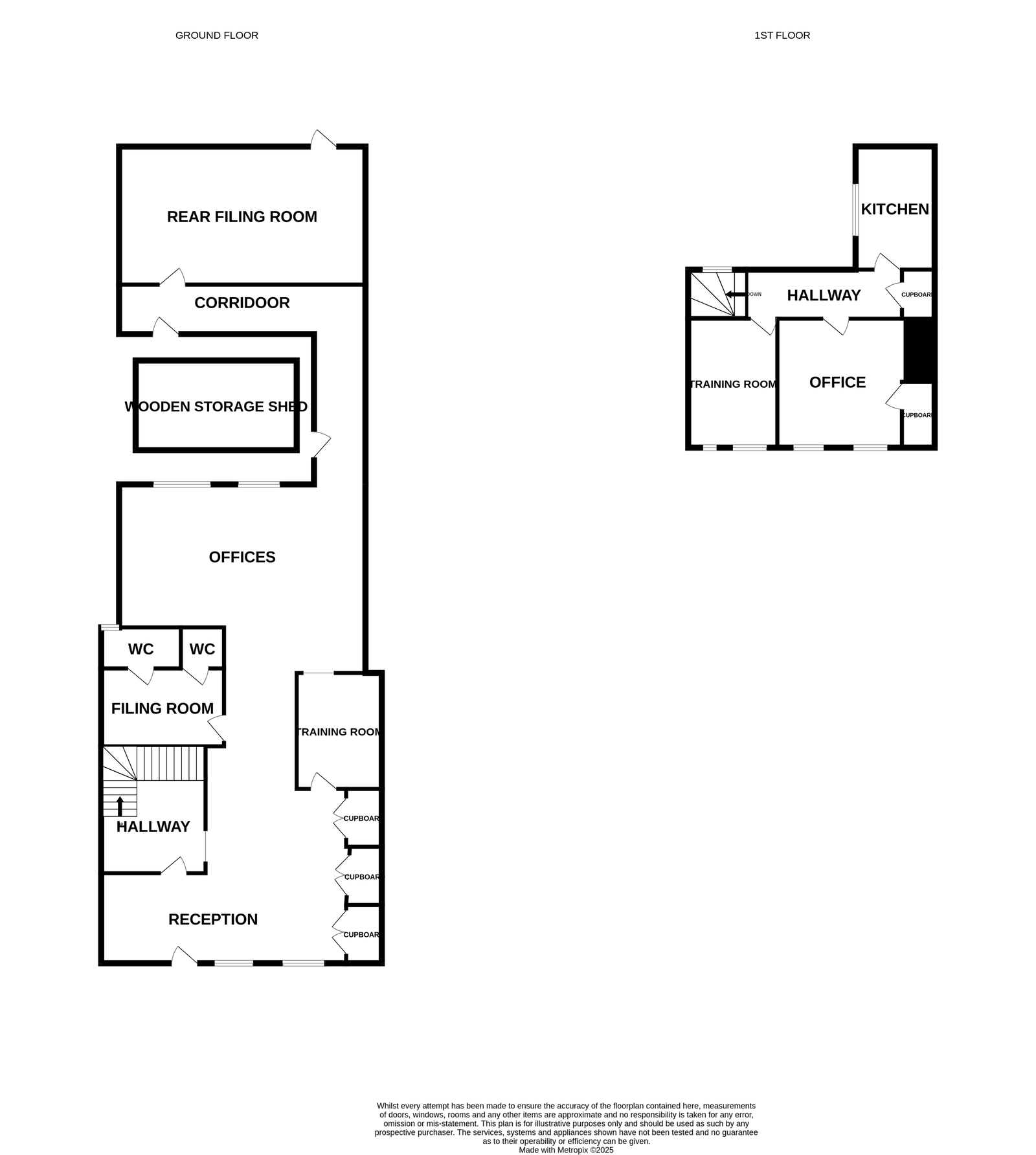
- The property extends to approximately 1,500 sq. ft with another 400 sq ft of storage space to the rear
- Scope to develop the first floor and rear to residential us and profit from a lucrative 10% return on investment
- The current offices could accommodate up to 10 people working together plus more if rear used
- Wymondham Town Centre is still vibrant especially on a Friday when it is Market Day.
- The property has been well maintained over the past twenty years by a reputable business
- Tenure: Freehold / EPC rating E / Current rateable value (1 April 2023 to present): £7,300
- See our full online listing for further details including flood risk, broadband speed and other material information