- A rare opportunity to acquire a unique commercial property in the heart of Wymondham
- Rich in character and local history this versatile property comes to market for the first time since 1930
- Prominently positioned on the corner of Church Street and Damgate Street could be converted into two premises
- This distinctive building was originally formed from two adjoining public houses dating back to early 1700's
- The Goat on Church Street and The Rose and Crown facing Market Street on Damgate Street hence the two entrances
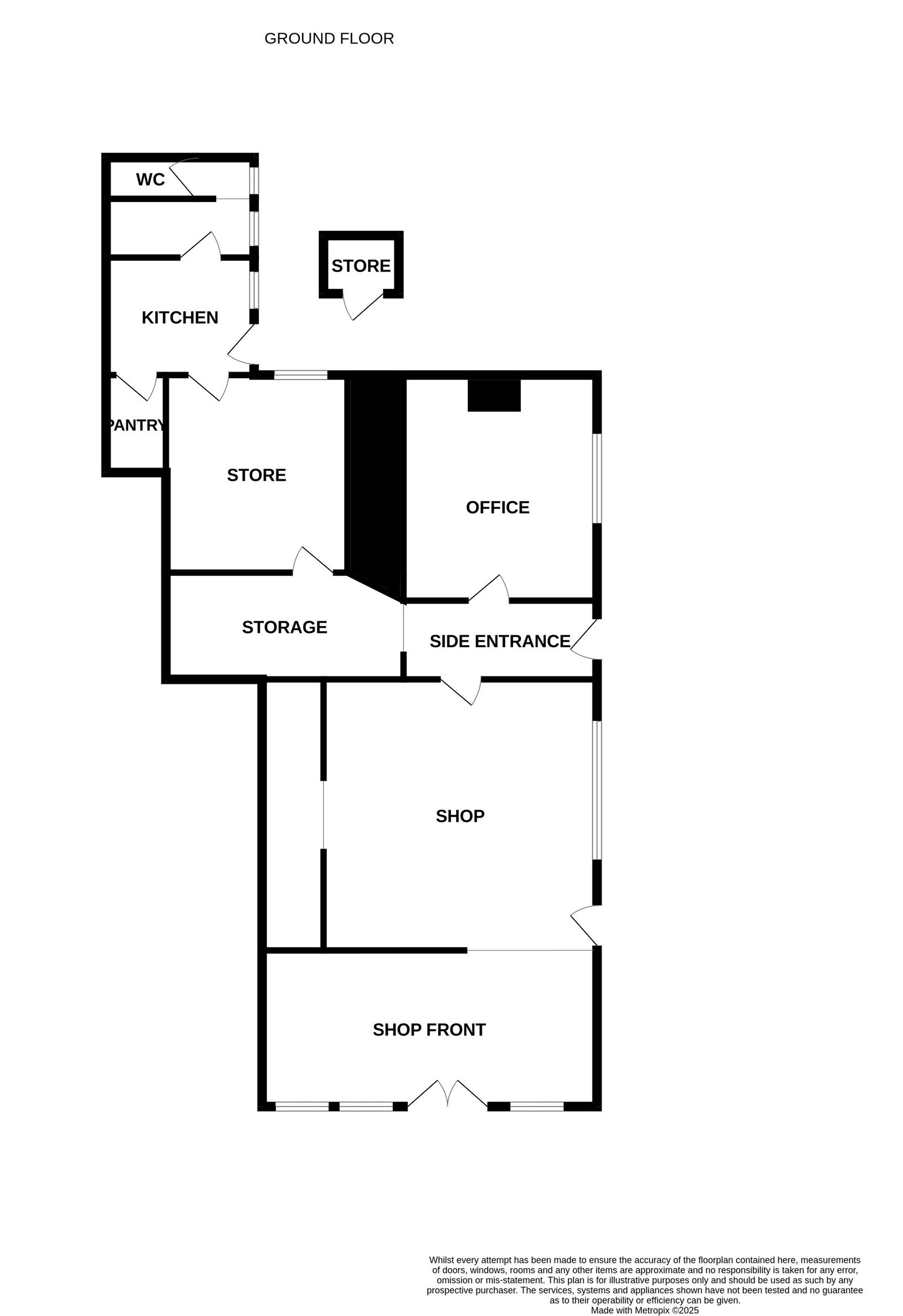
- The property offers approximately 1200 sq ft comprising of two shop areas, two offices, storage, kitchen and cloakroom
- There is also an entrance to the rear and passage onto Damgate Street, there is no parking with the property
- Ideally placed for the three town centre car parks, close to local bus and rail services to Norwich and Cambridge
- Excellent access to the main A11 and A47 truck roads a minutes walk from the Wymondham Abbey and Market Cross
- See our full online listing for further details including flood risk, broadband speed and other material information