Hackford Road, Wicklewood, NR18

Offers in region of
£580,000
SSTC
This property listing is now SSTC

4 Bedroom Bungalow for sale in Wymondham

3 4 3
  • Spacious four double bedroom detached family home
  • Located on a quiet cul de sac
  • Within ease of access to the market town of Wymondham
  • Comes to market with no-onward chain
  • Endless potential with its versatile layout
  • 21ft garden room with annexe potential
  • Large, private and well-maintained garden
  • Double garage with off-road parking
  • Must be viewed to fully appreciate
  • See our online listing for further details including flood risk, broadband speed and other material information.


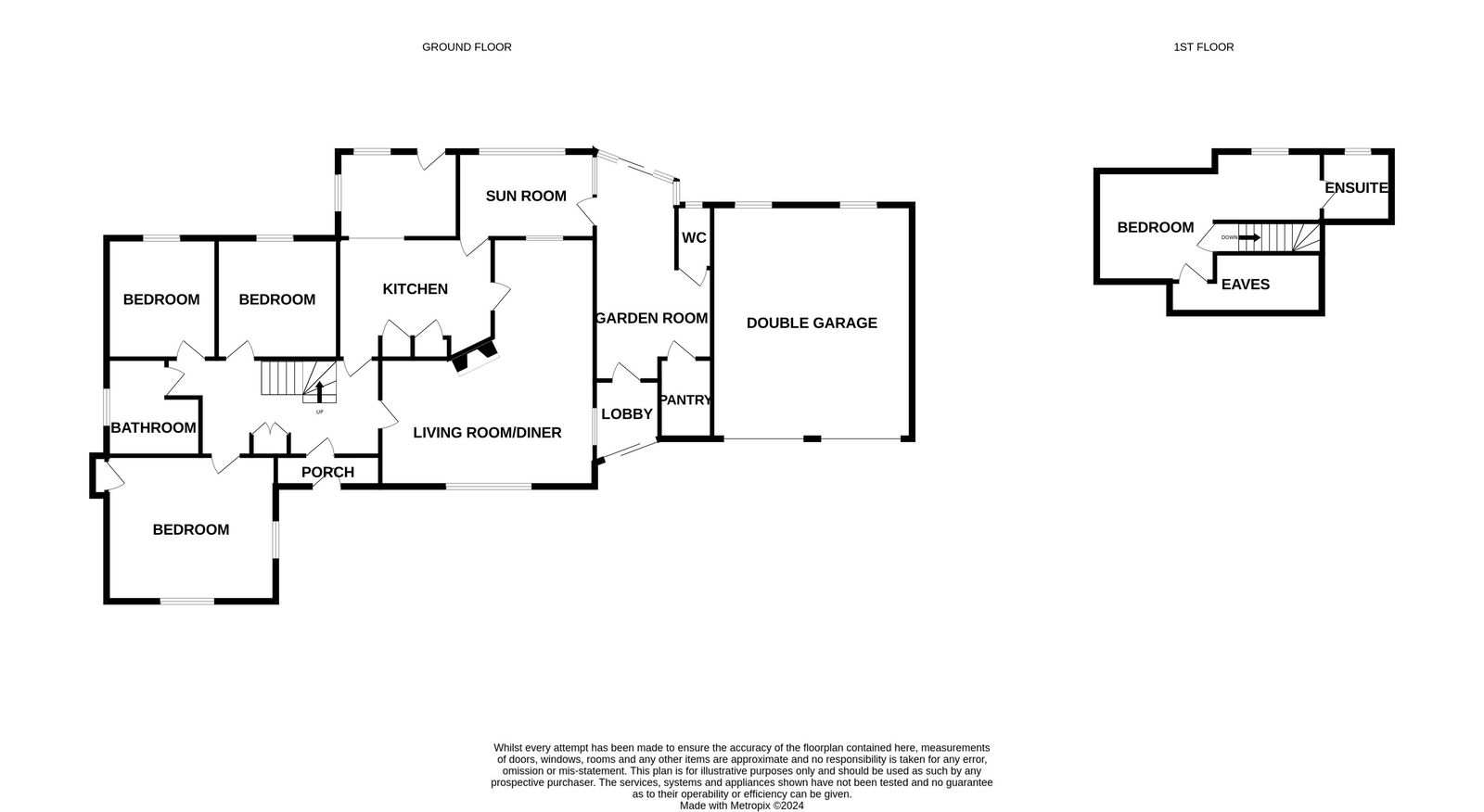
Moneyproperties are delighted to be marketing this generous family home occupying a large plot in the popular village of Wicklewood. Located on a private cul de sac the property depicts everything you would want from countryside living whilst only being a short drive to the market town of Wymondham. The versatile accommodation comprises of an entrance porch, spacious L-shaped living room/diner, kitchen, 11ft sun room, three double bedrooms and a bathroom to the downstairs. The downstairs also benefits from a 21ft garden room creating the ideal space for entertaining with its own front entrance, wc and pantry. Depending on buyer requirements this room also lends itself perfectly for an annexe (stpp) for those looking for somewhere to provide multi-generational living. Furthermore, the upstairs provides another spacious bedroom with its own ensuite.


Outside the property enjoys a large, private, and well-maintained rear garden that could be manipulated into different sections for example to house a hot tub area to enjoy the summer evenings. The front of the property also benefits from a well-presented garden area, double garage, and ample off-road parking.


With endless potential this fantastic property is one not to be missed. Please call us today to book your viewing.



Porch - 2.13m x 1.45m (7'0" x 4'9")


Entrance Hall


Living Room - 7.06m x 6.65m (23'2" x 21'10")


Maximum measurement (L-shaped)

Kitchen - 5.66m x 4.19m (18'7" x 13'9")


Maximum measurement (L-shaped)

Sun Room - 3.56m x 2.34m (11'8" x 7'8")


Bedroom One - 4.5m x 3.91m (14'9" x 12'10")


Bedroom Two - 3.28m x 3.28m (10'9" x 10'9")


Bedroom Three - 3.28m x 2.97m (10'9" x 9'9")


Bathroom - 2.64m x 2.54m (8'8" x 8'4")


Maximum measurement (L-Shaped)

Garden Room/Annexe - 6.2m x 3.89m (20'4" x 12'9")


Maximum measurement

Upstairs


Bedroom - 4.9m x 4.6m (16'1" x 15'1")


Maximum measurement

Ensuite - 1.91m x 1.88m (6'3" x 6'2")


Double Garage - 5.51m x 5.38m (18'1" x 17'8")


AGENT’S NOTES -


Planning :  Details, if any, can be found on the South Norfolk Council Planning website.


Covenants, Rights and Restrictions:  Please enquire with the selling agents for any information.


Broadband :  Ultrafast. FTTP. See Ofcom checker and Openreach website for more details.


Mobile phone :  See Ofcom checker for coverage details.


Flood risk :  Very low risk surface, rivers and seas according to Gov.uk website


Services :  Mains Electricity, water and Sewerage. Oil Heating. 


Local authority :  Norfolk County Council and South Norfolk Council


Council Tax Band :  E


Tenure :  Freehold


EPC : D

Important Information

  • This is a Freehold property.
  • This Council Tax band for this property is: E

Property Ref: 680_708920

Share:

Similar Properties

The Compasses, (a unique piece of Wymondham’s heritage) Burnthouse Lane, Silfield, Wymondham, NR18 9NP

3 Bedroom Detached House | Offers in region of £575,000

A rare opportunity to own a unique piece of Wymondham’s heritage, dating back to 1789. Formerly known as the Rule & Comp...

Vimy Drive, Wymondham, NR18

4 Bedroom Detached House | Offers in region of £525,000

Moneyproperties are thrilled to bring to market this well-presented and deceptively spacious four bedroom detached famil...

Baker Drive, Hethersett, NR9

4 Bedroom Detached House | £465,000

Moneyproperties are thrilled to be marketing this immaculately presented four-bedroom detached family home in the popula...

Carrs Hill Close, Costessey, Norwich NR8 5DW

4 Bedroom Detached House | Offers in region of £600,000

A rare opportunity to acquire a spacious four-bedroom detached bungalow offered with no forward chain, allowing for a sw...

Hale Road, Ashill, IP25

5 Bedroom Detached House | Guide Price £625,000

Moneyproperties are thrilled to present this this brand new five-bedroom detached house set in the beautiful Norfolk cou...

Church Road, Deopham, Wymondham, Norfolk, NR18 9DT

5 Bedroom Barn Conversion | Offers in region of £645,000

Unique Five-Bedroom Barn Conversion – Deopham. A rare opportunity to acquire this stunning five-bedroom barn conversion,...

Money Properties (Wymondham)

17/18 Market Place, Wymondham, Norfolk, NR18 0AX

01953 423 006

How much is your home worth?

Use our short form to request a valuation of your property.

Request a Valuation

Mortgage Calculator

Amount Borrowed: £
Total Amount Repayable: £
Total Monthly Payment: £
©2025 The Guild of Property Professionals. All rights reserved. Terms and Conditions | Privacy Policy | Cookie Policy | Complaints Policy | Members Login
The Guild of Property Professionals Trading Address: 121 Park Lane, London W1K 7AG. GPEA Limited. Registered in England & Wales.  Company No: 02819824.  Registered Office Address: 2 St. Stephen's Court, St. Stephen's Road, Bournemouth, Dorset, England, BH2 6LA.  VAT Registration No: 576 8795 61
Book a Property Valuation Update Cookies Preferences