Flat B, 22 Brecon Road, Abergavenny, NP7 5UG

£140,000
SSTC
This property listing is now SSTC

2 Bedroom Flat for sale in Abergavenny

1 2 1
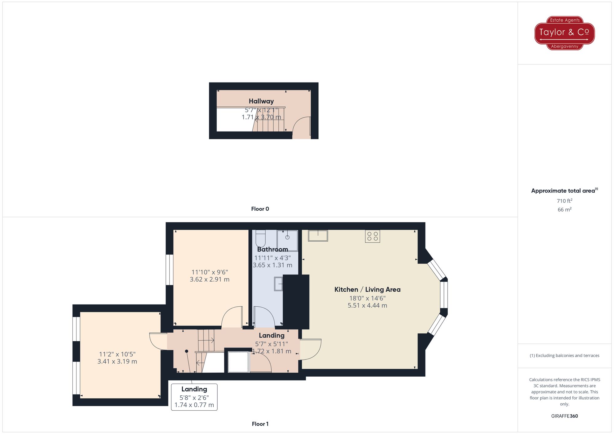
  • Grade II Listed two double bedroom split level first floor flat
  • Recently modernised throughout
  • Spacious open living room / kitchen / diner
  • White shower suite | Useful private ground floor entrance hallway
  • Residents off street parking area at the rear of the property
  • Walking distance to the high street, pubs & restaurants
  • Ideal first time buy | Long 999 year Lease and a Share of Freehold
  • No connected chain

Offering spacious accommodation, a modern kitchen and a white shower suite with electric heating, this unusual split level first floor flat enjoys ground floor access into a private, stone flagged hallway with a staircase leading to the first floor.   With two double bedrooms and a generous open plan kitchen/living room/diner featuring a bay window to the front, this flat will also have a new 999 year lease plus a share of the freehold when the last remaining flat is sold.  When parking is at a premium in the town, there is a residents’ parking area at the rear, and the added benefit of no connected chain with the sale of this home.  

Important Information

  • This is a Leasehold property.
  • The annual service charges for this property is £400
  • EPC Rating is E

Property Ref: 9a90b2e0-49dd-493b-9e4e-be278eb36ebd

Share:

Similar Properties

Brecon Road, Abergavenny, NP7

2 Bedroom Flat | £135,000

Brecon Road, Abergavenny, NP7

2 Bedroom Flat | £135,000

20 Brecon Road, NP7

2 Bedroom Flat | £135,000

Nevill Street, Abergavenny, NP7

2 Bedroom Flat | £150,000

Two bed, split-level first-floor apartment situated in a Grade II Listed former Gentry House in Abergavenny. Recently re...

Priory Gardens, Abergavenny, NP7

2 Bedroom Flat | £185,000

Lion Street, Newmarket Court Lion Street, NP7

2 Bedroom Apartment | £185,000

Taylor & Co (Abergavenny)

24 Lion Street, Abergavenny, Monmouthshire, NP7 5NT

01873 564424

How much is your home worth?

Use our short form to request a valuation of your property.

Request a Valuation

Mortgage Calculator

Amount Borrowed: £
Total Amount Repayable: £
Total Monthly Payment: £
©2026 The Guild of Property Professionals. All rights reserved. Terms and Conditions | Privacy Policy | Cookie Policy | Complaints Policy | Members Login
The Guild of Property Professionals Trading Address: 121 Park Lane, London W1K 7AG. GPEA Limited. Registered in England & Wales.  Company No: 02819824.  Registered Office Address: 2 St. Stephen's Court, St. Stephen's Road, Bournemouth, Dorset, England, BH2 6LA.  VAT Registration No: 576 8795 61
Book a Property Valuation Update Cookies Preferences