The Jetty, Plot 3, Ogston View, Woolley Moor, Derbyshire, DE55 6FG

£765,000

4 Bedroom House for sale in Alfreton

2 4 3
  • 4 bedroom contemporary barn new build home
  • Karl Benz island kitchen with hi-spec integrated appliances, quartz worktops and separate utility room
  • 3 fully tiled bathrooms including 1 en-suite with Grohe sanitary wear
  • Adjoining double garage
  • Impressive master suite with dressing room and en-suite bathroom
  • Constructed in natural stone
  • Solar panels and double glazed aluminium windows as standard
  • A distinctively unique development of 4 luxury contemporary barn style new build homes, built by locally renowned home builder Briddon Homes
  • Tenure - Freehold. EPC Rating - A
  • Anticipated completion - Late 2024 / Early 2025

Welcome to Ogston View, a distinctively unique development of 4 luxury contemporary barn style new build homes, built by locally renowned home builder Briddon Homes, in the beautiful rural village setting of Woolley Moor.

Sustainably built using natural stone and the highest of quality materials, Ogston View is constructed taking carbon emissions and efficiency into consideration. Each home will be fitted with solar panels and aluminium windows and doors as standard.

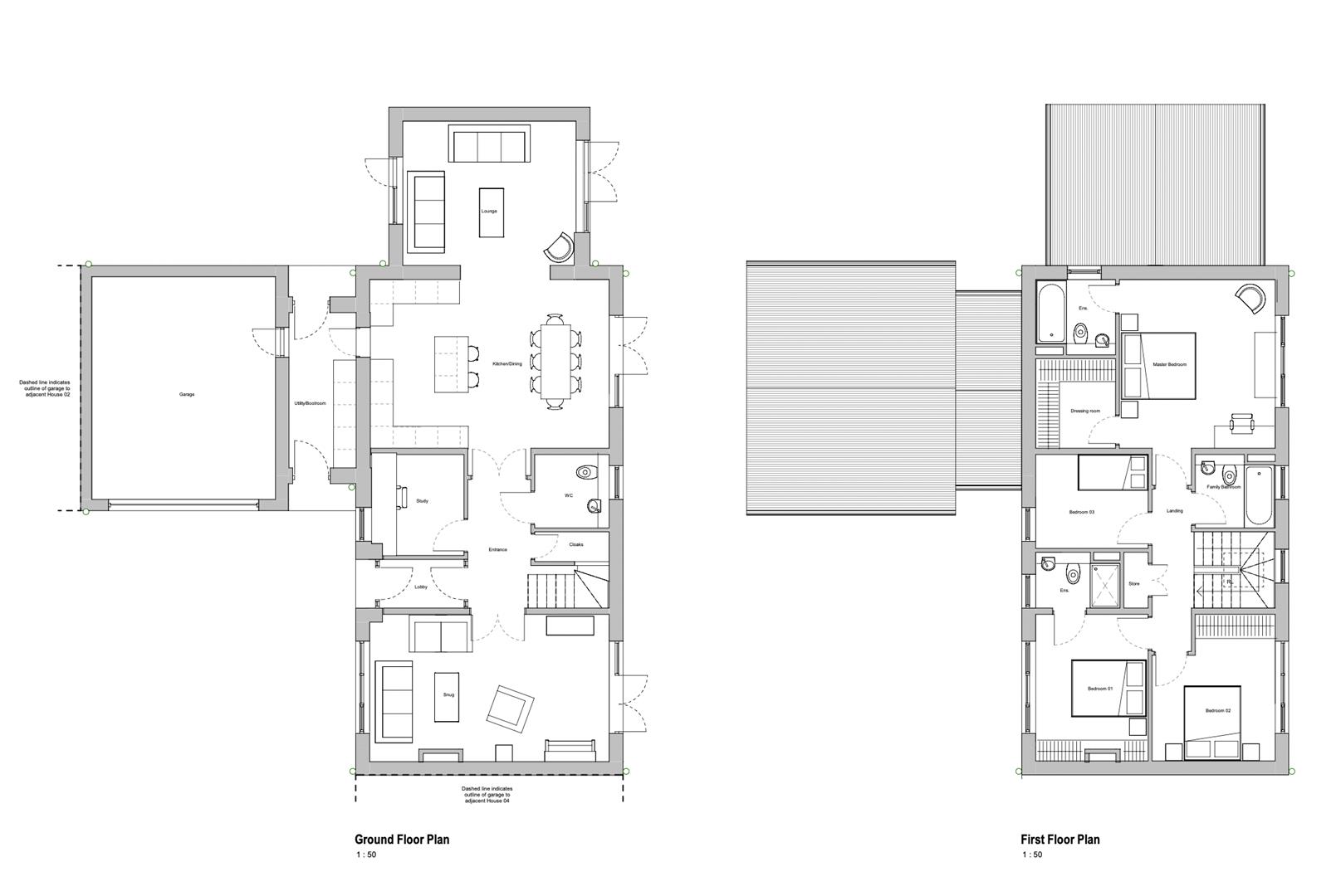
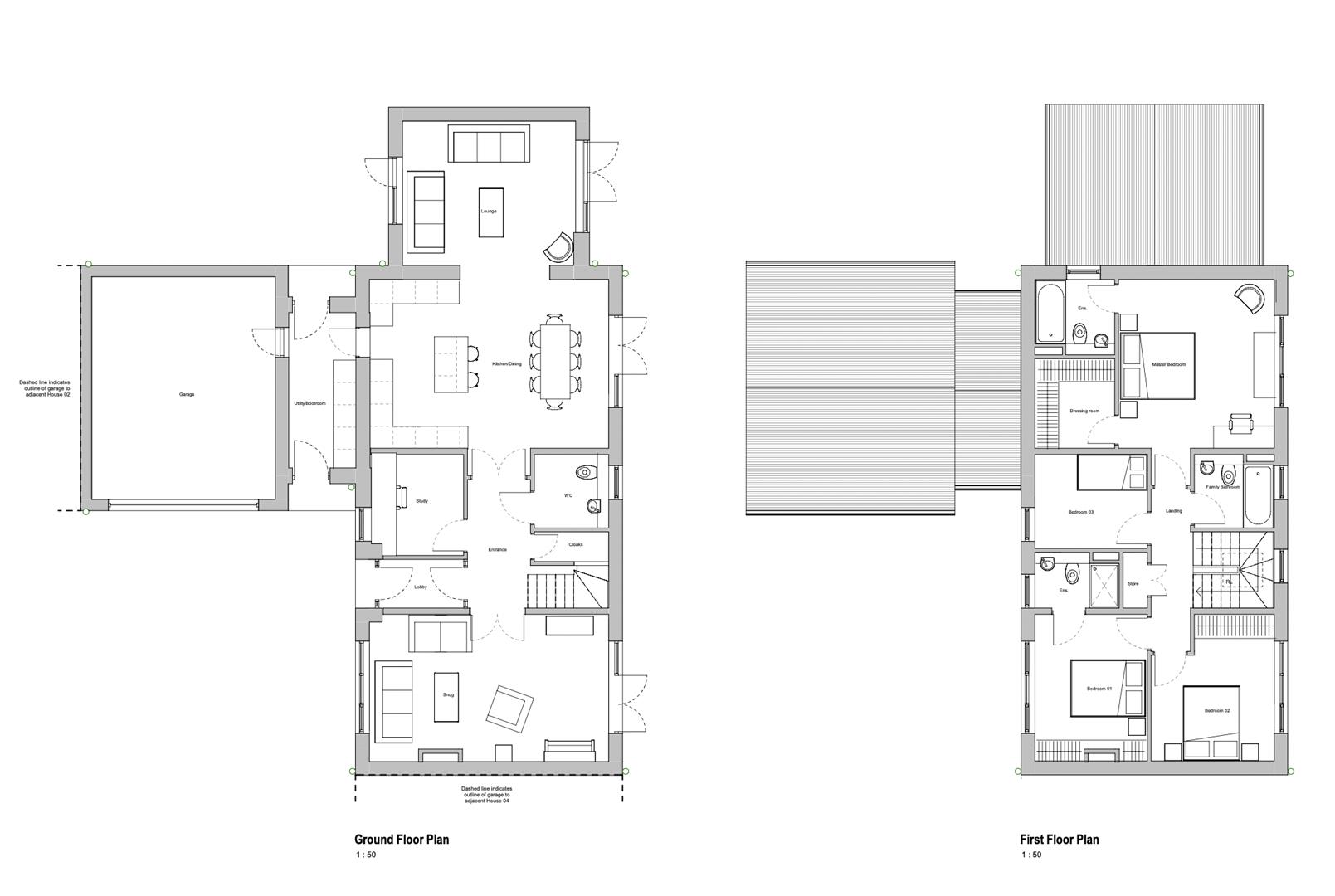
The Jetty offers a spacious 2179 sqft of accommodation over 2 storeys, Designed around social space, flexibility and ideal for modern life, the property features a social, open plan Karl Benz dining kitchen with adjoining family lounge, a further separate formal reception room, ample work-from-home space with a designated ground floor study, 4 spacious bedrooms including the master suite with dressing room and 3 stylish bathrooms including 2 en-suites. The Jetty has a large rear garden, ample off road parking and an adjoining single garage.

For full spec details, get in touch.

Property Ref: 7689458_32946949

Share:

Similar Properties

The Hawthornes, New Road, Holymoorside, Chesterfield, S42 7EW

6 Bedroom Detached House | Guide Price £750,000

£750,000 - £775,000 (Guide price) Centrally located in the pretty and exceptionally sought after village of Holymoorside...

Plot 6 - Twilight House, Meadow View, Peartree Lane, Teversal, Sutton-In-Ashfield, NG17 3LE

5 Bedroom Detached House | £715,000

Welcome to Meadow View, a luxurious development of seven 5 bedroom detached homes, situated in this tranquil location, b...

Somersall Lane, Somersall, Chesterfield, S40 3NA

4 Bedroom Detached House | £699,500

Situated in unarguably one of the most desirable address in the area, this stylish 4 bedroom detached house offers a per...

The Hollies, Middle Road, Hardwick Wood, Wingerworth, Chesterfield, S42 6RH

5 Bedroom Detached Bungalow | £799,950

Situated in the exceptionally special Hardwick Wood, an area situated on the outskirts of Wingerworth and just minutes f...

Avonlea, Somersall Lane, Chesterfield, S40 3LA

5 Bedroom Detached House | Guide Price £800,000

£800,000 - £840,000 (Guide price) Located in unarguably one of the most desirable postcodes in Chesterfield, situated on...

Handley House, Handley Lane, Handley, Derbyshire, S45 9AT

7 Bedroom Detached House | £850,000

Welcome to Handley House - A Rare Countryside Residence with Heritage, Heart and Unrivalled Views.Set in the peaceful ha...

Dales and Peaks (Chesterfield)

Brampton, Chesterfield, S40 2AP

01246 567540

How much is your home worth?

Use our short form to request a valuation of your property.

Request a Valuation

Mortgage Calculator

Amount Borrowed: £
Total Amount Repayable: £
Total Monthly Payment: £
©2025 The Guild of Property Professionals. All rights reserved. Terms and Conditions | Privacy Policy | Cookie Policy | Complaints Policy | Members Login
The Guild of Property Professionals Trading Address: 121 Park Lane, London W1K 7AG. GPEA Limited. Registered in England & Wales.  Company No: 02819824.  Registered Office Address: 2 St. Stephen's Court, St. Stephen's Road, Bournemouth, Dorset, England, BH2 6LA.  VAT Registration No: 576 8795 61
Book a Property Valuation Update Cookies Preferences