Wapplington Lane, Allerthorpe

Guide Price
£150,000

2 Bedroom Park Home for sale in Allerthorpe

1 2 2
  • Impressive Golf & Country Park Resort
  • Two Double Bedrooms
  • Surrounded By Lawn & Trees
  • Currently A Successful Holiday Retreat
  • Easy Access Into The Historic City Of York
  • Onsite Amenities Including The 9 Hole Golf Course
  • 5 Minute Walk Into Allerthorpe Village

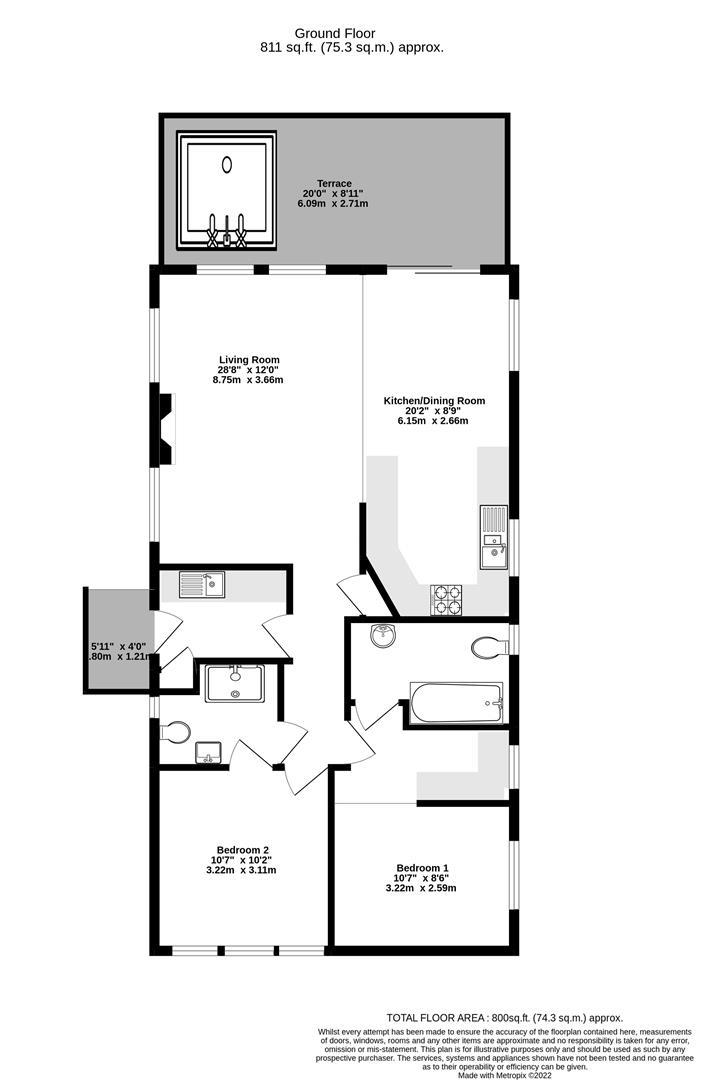
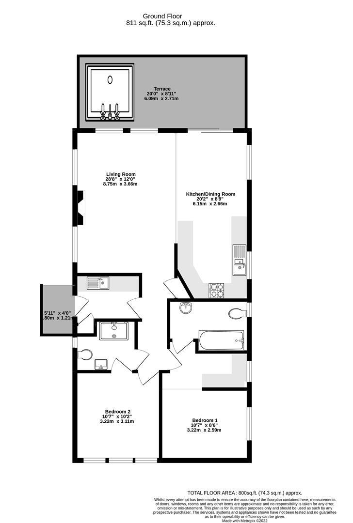
Located within this impressive Golf and Country Park Resort in the quiet East Yorkshire countryside, this highly impressive two bedroom lodge is offered for sale in 'move-in' condition. Nestled within the park on a favourable plot surrounded by lawn and trees, the property is currently a successful holiday retreat but would also be very suitable as a second home. It is perfectly situated for easy access into the historic City of York and the market town of Pocklington as well as a short drive over the picturesque Yorkshire Wolds to the stunning east coast. There are also onsite amenities including the 9 hole golf course and is just a 5 minute walk into Allerthorpe village with its excellent amenities and country pub. The internal accommodation fully comprises hallway and utility, living room, dining kitchen with fitted appliances, master bedroom with dressing area & en-suite, second double bedroom and bathroom. To the outside is a raised decked area with hot tub, perfect for outdoor relaxing.

Hallway/Utility Room -

Living Room -

Dining Kitchen -

Bedroom 1 -

Dressing Area -

En-Suite -

Bedroom 2 -

Shower Room -

Terrace -

Property Ref: 564471_32736594

Share:

Similar Properties

Allerthorpe Golf and Country Club

2 Bedroom Park Home | Guide Price £145,000

LAKESIDE HIGH SPEC LODGE WITH HOT TUB - Located within this impressive golf and country park resort in the quiet East Yo...

Kettlestring Lane, York

1 Bedroom Apartment | £140,000

Located within this well cared for development and very suitable for first time buyers, we are delighted to offer for sa...

Woodlands Grove, Stockton Lane

2 Bedroom Detached House | Guide Price £140,000

NO FORWARD CHAIN - IDEAL INVESTMENT. A large, two bedroom first floor maisonette with garage set in this fantastic locat...

Silverdale Court, Woodthorpe

2 Bedroom Flat | Guide Price £155,000

NO FORWARD CHAIN - SINGLE GARAGE - OPEN VIEWS. A two double bedroom first floor apartment within a small development in...

Aviator Court, Clifton Moor

1 Bedroom Apartment | Guide Price £155,000

Located within this popular development and very suitable for first time buyers we are delighted to offer for sale this...

Fishergate, York

1 Bedroom Studio Apartment | Guide Price £155,000

NO ONWARD CHAIN - ADJACENT TO YORK'S HISTORIC CITY WALLS - DESIGNATED PARKING SPACE. This impressive studio apartment, p...

Churchills Estate Agents (York)

Bishopthorpe Road, York, Yorkshire, YO23 1NA

01904 646611

How much is your home worth?

Use our short form to request a valuation of your property.

Request a Valuation

Mortgage Calculator

Amount Borrowed: £
Total Amount Repayable: £
Total Monthly Payment: £
©2025 The Guild of Property Professionals. All rights reserved. Terms and Conditions | Privacy Policy | Cookie Policy | Complaints Policy | Members Login
The Guild of Property Professionals Trading Address: 121 Park Lane, London W1K 7AG. GPEA Limited. Registered in England & Wales.  Company No: 02819824.  Registered Office Address: 2 St. Stephen's Court, St. Stephen's Road, Bournemouth, Dorset, England, BH2 6LA.  VAT Registration No: 576 8795 61
Book a Property Valuation Update Cookies Preferences