Larkfield, Goscombe Lane, Gundleton, Alresford

£695,000

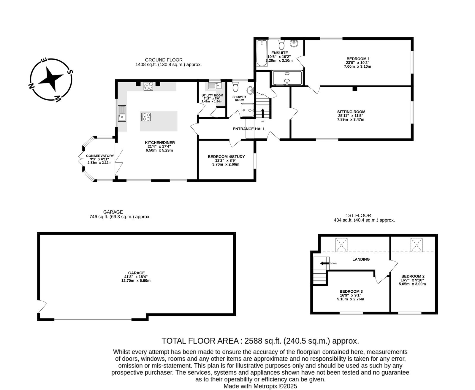
4 Bedroom Detached House for sale in Alresford

2 4 2
  • Detached Triple Garage Over 700sq ft with Inspection Pit
  • Peaceful, Semi-Rural Location 3 Miles From Alresford
  • Ground Floor Shower Room and Ground Floor Master Bedroom with En-suite
  • Two Further Double Bedrooms to the First Floor
  • Catchment for Perins School, free school bus at the end of the road.
  • Stylish Open-plan Kitchen Diner, Utility Room
  • Enclosed Rear Garden with newly fitted decking

Set on a plot of circa 0.25 acres, Larkfield is a deceptively spacious detached four bedroom family home located in the sought-after semi-rural village of Gundleton. Having already been extensively reconfigured by the current owner, there is still scope for further modernising, giving a new owner the opportunity to create their ideal family home. 


The property is accessed via a sizeable gated driveway with ample parking for multiple cars and steps leading down to the front door. Once inside you are greeted by an entrance hall which, if you turn left, leads past the versatile fourth bedroom and onto the modern fitted kitchen/diner, with an attractive range of shaker style base and eye level units.  This light filled room is the hub of the house with plenty of room for a dining table as well as a casual seating area.  There is also a large island, perfect for food preparation and an informal place to eat and entertain.  Just off of the kitchen is a convenient utility room, shower room and a small conservatory that leads into the garden. Going back to the entrance hall, to your right is a doorway that leads into the spacious double aspect sitting room which in turn leads on to the equally impressive principle bedroom, complete with ensuite bathroom. Straight ahead from the hallway are stairs leading up to the versatile first floor landing area that gives access to bedroom two and three.  


Outside, the enclosed rear garden is mainly laid-to-lawn and surrounded by mature hedging. There is also a patio area with space for garden furniture and perfect for al-fresco dining. To the front of the property is another patio area with steps leading up to the driveway. The property benefits further from the extremely versatile triple garage, which has potential to be converted into ancillary accommodation if required (subject to gaining the necessary planning consent).


Gundleton is a village just outside Alresford. Alresford is a beautiful Georgian town known for its variety of independent shops, restaurants and inns located in stunning surroundings on the edge of the South Downs National Park. Attractions include the Watercress steam railway, schools for infant, junior and secondary education, several churches and an active and inclusive community. The cathedral city of Winchester is about 7 miles away and there is easy access to the south coast, the midlands and London via the road network. There is also mainline rail access to London from both Winchester and Alton. Southampton airport is only about half an hour away by car. 


SERVICES
Mains water and electricity connected. Oil-fired central heating. Private drainage system - septic tank.


LOCAL AUTHORITY INFORMATION
Winchester City Council
Council Tax Band: F


 

Important Information

  • This is a Freehold property.
  • This Council Tax band for this property is: F

Property Ref: 420_957967

Share:

Similar Properties

The Old Barn, 19a Mill Hill, Alresford

3 Bedroom Detached House | £695,000

The Old Barn dates from the 1800's and has recently been renovated to an exacting standard. Located in the centre of the...

The Four Horseshoes, Long Sutton, Hook, Hampshire

4 Bedroom Pub | Guide Price £695,000

A freehold public house and inn set in a delightful location on the edge of the charming village of Long Sutton. An exci...

Brook Cottage, Old Alresford, Alresford, SO24 9DH

3 Bedroom Bungalow | £650,000

Situated in the highly desirable village of Old Alresford, this detached bungalow enjoys a prime position overlooking th...

Moulin, Petersfield Road, Ropley, Alresford

3 Bedroom Bungalow | Guide Price £699,950

A spacious and well-presented bungalow set on a 1/3 acre plot, with a secluded south-facing rear garden, excellent parki...

Windermere Gardens, Alresford

4 Bedroom Detached House | £725,000

A spacious four bedroom extended detached family home with an attractive, secluded wrap around garden, parking and a gar...

Gorse Down, Owslebury, Winchester

4 Bedroom Semi-Detached House | Guide Price £750,000

A fantastic opportunity to purchase this spacious 4 bedroom family home situated in the heart of the sought-after villag...

Hellards Estate Agents (Alresford)

11 Broad Street, Alresford, Hampshire, SO24 9AR

01962 736333

How much is your home worth?

Use our short form to request a valuation of your property.

Request a Valuation

Mortgage Calculator

Amount Borrowed: £
Total Amount Repayable: £
Total Monthly Payment: £
©2026 The Guild of Property Professionals. All rights reserved. Terms and Conditions | Privacy Policy | Cookie Policy | Complaints Policy | Members Login
The Guild of Property Professionals Trading Address: 121 Park Lane, London W1K 7AG. GPEA Limited. Registered in England & Wales.  Company No: 02819824.  Registered Office Address: 2 St. Stephen's Court, St. Stephen's Road, Bournemouth, Dorset, England, BH2 6LA.  VAT Registration No: 576 8795 61
Book a Property Valuation Update Cookies Preferences