Bishops Sutton, Alresford

Guide Price
£325,000
SSTC
This property listing is now SSTC

2 Bedroom Cottage for sale in Alresford

2 2 1
  • Character Features
  • Extended Kitchen
  • Modern White Bathroom Suite
  • Two Double Bedrooms
  • Private Rear Garden
  • Village Location

This pretty, character cottage has been sympathetically updated to suit the requirements of modern living, whilst retaining some of its period features, which include Victorian style fireplaces. The cottage is centrally located in the popular village of Bishops Sutton, which is just 2 miles from Alresford. Bishops Sutton is on a bus route running between Alton and Winchester.

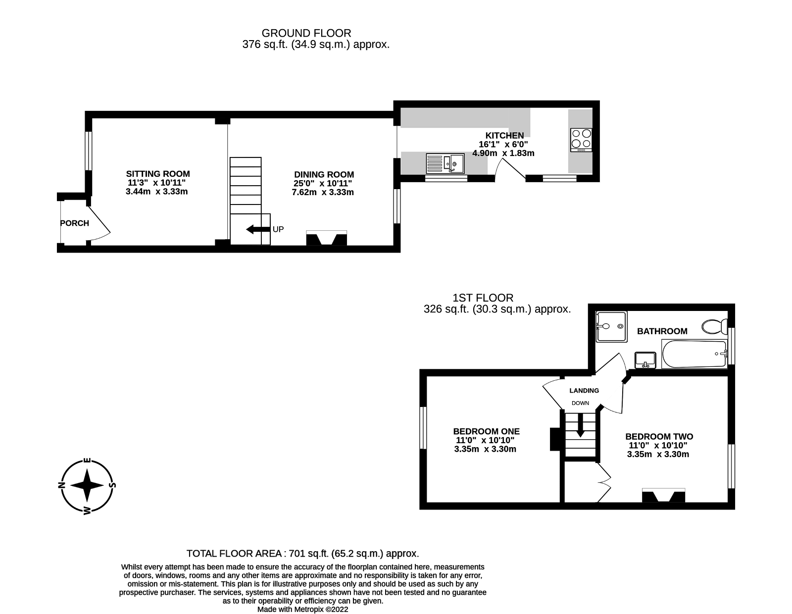
The property has benefited from having an extended kitchen, and is well-presented throughout. It has a flying freehold, with the original loft belonging to the adjoining cottage and the first floor bathroom being over the next door property.

On entering the property via the covered porch you step into the sitting/dining room (previously two rooms) with a central staircase leading to the first floor, thus still providing the property with a defined area for a dining table. This in turn leads through to the kitchen which has ample storage and a door to outside.

The first floor has two good size bedrooms and a newly fitted bathroom with a separate shower and bath.

To the rear of the property there is a shared patio area with steps up to a pathway that leads to the private rear garden, which is mainly laid to lawn with mature hedging.

The village of Bishops Sutton is located just 1.5 miles from the beautiful market town of Alresford with its varied mix of independent shops and businesses. There is a bus service from Bishops Sutton to Alresford, Winchester, Alton and Petersfield. The village is surrounded by lovely Hampshire countryside with a good variety of walks in all directions. There is an active community in the village centred around the village hall and local pub.

AGENTS' NOTE: The property has a flying freehold. Prospective purchasers should seek legal advice before committing to a purchase.

SERVICES Mains electricity and water. Electric heating. Private drainage system shared with No.4 Park View.

LOCAL AUTHORITY INFORMATION Winchester City Council
Council Tax Band: C

Important Information

  • This is a Freehold property.
  • This Council Tax band for this property is: C

Property Ref: 264862

Share:

Similar Properties

Station Road, Alresford

2 Bedroom Ground Floor Flat | £325,000

Situated a stone's throw from the town centre, a spacious two bedroom ground floor maisonette with parking and direct ac...

Stiles Yard, West Street, Alresford

2 Bedroom Maisonette | £325,000

Set in a wonderfully quiet location, just off West Street right in the middle of Alresford, a stylish two bedroom ground...

The Dean, Alresford, Hampshire, SO24 9BQ

1 Bedroom Maisonette | £310,000

Ground Floor Apartment with Private Entrance & Parking Space, perfectly positioned for those seeking elegance, convenien...

The Dean, Alresford

2 Bedroom Bungalow | £335,000

PART-EXCHANGE AVAILABLE - A brand new single storey home located in the centre of Alresford. Designed and built to a hig...

Thornton Close, Alresford

2 Bedroom Coach House | Shared Ownership £340,000

A bright and spacious coach house in a fantastic, quiet location close to the centre of Alresford.  Two double bedrooms,...

Pound Hill, Alresford

1 Bedroom End of Terrace House | £350,000

A delightful period house conveniently located in the centre of Alresford. With character features and a low-maintenance...

Hellards Estate Agents (Alresford)

11 Broad Street, Alresford, Hampshire, SO24 9AR

01962 736333

How much is your home worth?

Use our short form to request a valuation of your property.

Request a Valuation

Mortgage Calculator

Amount Borrowed: £
Total Amount Repayable: £
Total Monthly Payment: £
©2026 The Guild of Property Professionals. All rights reserved. Terms and Conditions | Privacy Policy | Cookie Policy | Complaints Policy | Members Login
The Guild of Property Professionals Trading Address: 121 Park Lane, London W1K 7AG. GPEA Limited. Registered in England & Wales.  Company No: 02819824.  Registered Office Address: 2 St. Stephen's Court, St. Stephen's Road, Bournemouth, Dorset, England, BH2 6LA.  VAT Registration No: 576 8795 61
Book a Property Valuation Update Cookies Preferences