High View Place, Amersham, HP7

£795,000
SSTC
This property listing is now SSTC

3 Bedroom Semi-Detached House for sale in Amersham

1 3 2
  • SEMI DETACHED HOUSE
  • THREE BEDROOMS
  • QUIET CUL DE SAC LOCATION
  • MODERN KITCHEN
  • MODERN AND CONTEMPORARY BATHROOMS
  • GARDEN ROOM
  • PARKING TO FRONT OF PROPERTY
  • NO ONWARD CHAIN

This IMMACULATELY PRESENTED three bedroom house, is conveniently located in a quiet cul-de-sac close to both Amersham on the Hill and Amersham Old Town. The property boasts a modern and contemporary kitchen with integrated appliances, and modern bathroom and ensuite as well as a low maintenance garden, with a spacious GARDEN ROOM. This property is presented in a ready to move in condition with No Onward Chain.The property
You reach the property at the end of a lovely quiet cul-de-sac, with parking directly outside the elegant front door. There is an electric car point to the entrance of the property.

This home boasts a welcoming hallway, with a tiled floor leading into:-

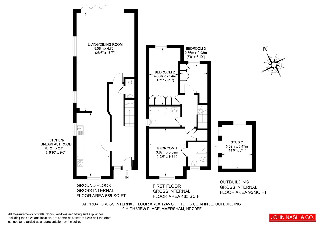
Living/Dining Room – A bright and welcoming space featuring large windows and french doors with a neutral colour palette, ideal for relaxing or entertaining.

Contemporary Kitchen– Fitted with modern cabinetry, ample work surfaces, and integrated Neff convection hob, double oven, dishwasher and washing machine as well as space for a fridge freezer. The kitchen overlooks the front of the property.

To The Upstairs
Three Bedrooms – Includes a generous principal bedroom with ensuite shower room, a second double with two built in double wardrobes, and a versatile third room, perfect for a nursery or home office.

Family Bathroom – Stylish and functional with a full-size bath, overhead shower, and contemporary tiling.

To the Rear
Private Rear Garden – A well-maintained outdoor area offering a perfect setting for summer gatherings. At the top of the raised bed area is a good sized garden room, with multi functional uses as a playroom/gym/study.

Location
Amersham is a popular town, offering excellent facilities for the commuter via the Metropolitan and Chiltern Lines to Central London and the motorway networks. Local schooling for all ages is with walking distance including the highly regarded Dr Challoner's Boys School. The town centre offers a variety of shopping facilities including Waitrose, Marks & Spencers and Boots together with a selection of restaurants and coffee shops. High View also boasts an easy walking distance to Amersham Old Town. Old Amersham boasts the perfect blend of rural charm and cosmopolitan flair being surrounded by boutique shops, upmarket restaurants and independent cafes. There is a regular farmers market, a museum and stunning church surrounded by an award winning garden and grounds. Access to countryside is on your doorstep.

Council Tax Band E - £ 3,002.40 2025/2026 Rates

Private Road Maintenance Charge
circa £400

Important Information

  • This is a Freehold property.

Property Ref: 29344596

Share:

Similar Properties

Acres End, Amersham, HP7

3 Bedroom Detached House | Guide Price £795,000

This three bedroom detached property boasts a modern interior in excellent condition situated on a good size plot with a...

Browns Road, Holmer Green, High Wycombe, HP15

4 Bedroom Detached House | £795,000

This spacious Four Double Bedroom Home offers exceptional space for modernisation and extension (STPP) with its most gen...

6 Church Street, OLD AMERSHAM, HP7

3 Bedroom Cottage | Guide Price £775,000

Something Cottage is a semi detached house ideally set in the Old Town of Amersham just off the picturesque High Street....

Old Saw Mill Place, Little Chalfont, Amersham, HP6

4 Bedroom Semi-Detached House | Guide Price £830,000

A modern and contemporary four bedroom family home with accommodation over three floors and featuring a stunning open pl...

44 Stanley Hill, Amersham, HP7

3 Bedroom Semi-Detached House | Guide Price £850,000

John Nash & Co are pleased to welcome to the market this stunning three bedroom semi detached home, designed and built b...

Kings Lane, South Heath, Great Missenden, HP16

5 Bedroom End of Terrace House | £900,000

Heathfield Cottage is an impressive and generously proportioned five bedroom end of terrace residence, offering versatil...

John Nash & Co (Amersham)

Amersham, Buckinghamshire, HP6 5BX

01494 725005

How much is your home worth?

Use our short form to request a valuation of your property.

Request a Valuation

Mortgage Calculator

Amount Borrowed: £
Total Amount Repayable: £
Total Monthly Payment: £
©2026 The Guild of Property Professionals. All rights reserved. Terms and Conditions | Privacy Policy | Cookie Policy | Complaints Policy | Members Login
The Guild of Property Professionals Trading Address: 121 Park Lane, London W1K 7AG. GPEA Limited. Registered in England & Wales.  Company No: 02819824.  Registered Office Address: 2 St. Stephen's Court, St. Stephen's Road, Bournemouth, Dorset, England, BH2 6LA.  VAT Registration No: 576 8795 61
Book a Property Valuation Update Cookies Preferences