Arundel Road, Angmering, West Sussex, BN16

Guide Price
£530,000

3 Bedroom Semi-Detached House for sale in Angmering

3
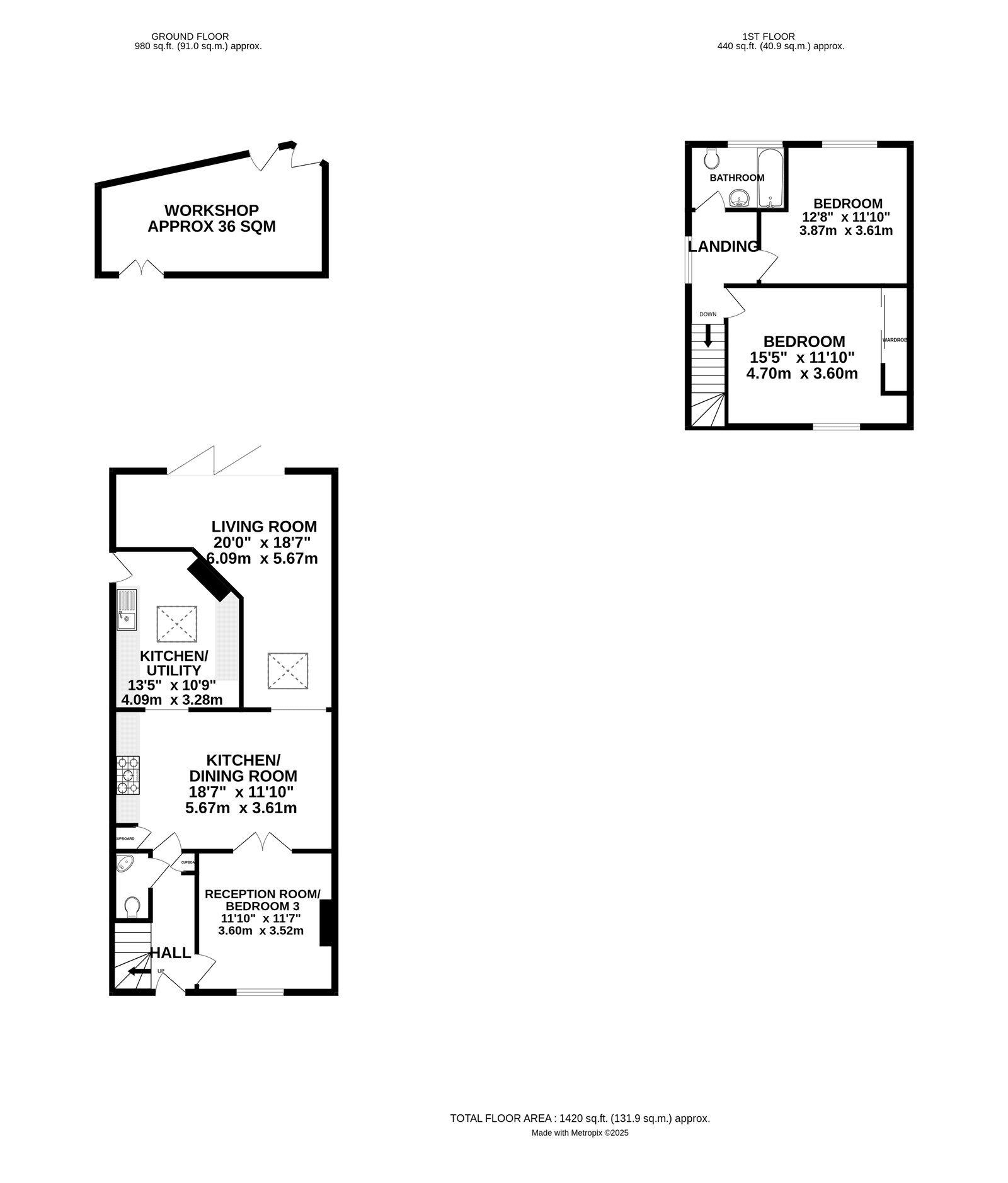
  • Prime central Angmering village location
  • Highly individual and extended character cottage with driveway for parking
  • Spacious living room with log-burning stove & bifolding doors to west-facing garden
  • Versatile second reception room or ground floor bedroom
  • Stunning kitchen, utility, and dining space
  • Two first-floor bedrooms and beautifully refitted bathroom
  • Colourful, idyllic garden with powered workshop
  • Energy Efficiency Rating C. Council Tax Band C

Located in the heart of central Angmering village, this highly individual and extended character cottage offers exceptional space and charm. The ground floor features an impressive main living room with a log-burning stove & bifolding doors opening to a west-facing garden, a versatile second reception room or ground floor bedroom, and a stunning kitchen, utility, and dining area designed for modern living. Upstairs, there are two well-proportioned bedrooms and a beautifully refitted bathroom. The idyllic garden is bursting with colour, and leads to a workshop complete with power and lighting, making this a truly unique and characterful village home.

Welcome to this unique and beautifully extended character cottage, a true hidden gem that seamlessly blends charm with modern living. Conveniently located within the village conservation area, this enchanting home offers a wealth of versatile space, perfect for today's lifestyle.

Step inside to a welcoming hall that leads you to a spacious and flexible reception room, that could also be set up as a bedroom — ideal for guests, a home office, or additional living space. The heart of the home is a stunning open-plan kitchen and dining room, where rustic charm meets contemporary convenience. An adjoining kitchen/utility room adds further practicality, flowing effortlessly into a spectacular living room — a bright and airy space perfect for relaxing or entertaining, with double doors inviting the outside in. Upstairs, the character continues with two generous double bedrooms, complemented by a stylish family bathroom. Every room is thoughtfully designed to maximise comfort while retaining the property's warm, inviting feel.

Important Information

  • This is a Freehold property.

Property Ref: 59426_ANG220184

Share:

Similar Properties

Mill Road Avenue, Angmering, West Sussex, BN16

2 Bedroom Detached Bungalow | £525,000

Boasting a delightful west-facing rear garden, this charming chain-free bungalow is located in the highly sought-after M...

The Pines, Angmering, West Sussex, BN16

3 Bedroom Detached House | £525,000

Sought-after location of The Dell, Angmering. The ever-popular 'Folkestone' chalet home offers a perfect blend of comfor...

Harvest Rise - Redrow Homes, Arundel Road, Angmering, West Sussex, BN164ET

4 Bedroom Detached House | £515,000

*PRICES FROM £515,000* The Stratford is a superb four-bedroom home from our Heritage Collection - promising the perfect...

Quiet Waters Close, Angmering, West Sussex, BN16

4 Bedroom Detached House | £545,000

Tucked away in a quiet and private spot, this beautifully presented townhouse offers the perfect blend of style, space,...

Harvest Rise - Redrow Homes, Arundel Road, Angmering, West Sussex, BN164ET

4 Bedroom Detached House | £545,000

*PRICES FROM £545,000* The Marlows at Harvest Rise are Eco Electric. These homes include air source heat pumps, even thi...

Delfont Grove, Angmering, West Sussex, BN16

3 Bedroom Detached House | Offers Over £550,000

Tucked away on a private road within an exclusive cul-de-sac of just nine homes, this deceptively spacious property must...

Graham Butt Estate Agents (Angmering)

Square, Angmering, West Sussex, BN16 4EA

01903 778877

How much is your home worth?

Use our short form to request a valuation of your property.

Request a Valuation

Mortgage Calculator

Amount Borrowed: £
Total Amount Repayable: £
Total Monthly Payment: £
©2025 The Guild of Property Professionals. All rights reserved. Terms and Conditions | Privacy Policy | Cookie Policy | Complaints Policy | Members Login
The Guild of Property Professionals Trading Address: 121 Park Lane, London W1K 7AG. GPEA Limited. Registered in England & Wales.  Company No: 02819824.  Registered Office Address: 2 St. Stephen's Court, St. Stephen's Road, Bournemouth, Dorset, England, BH2 6LA.  VAT Registration No: 576 8795 61
Book a Property Valuation Update Cookies Preferences