10m South Of, 228 Battleford Road, Armagh

£90,000

Plot for sale in Armagh

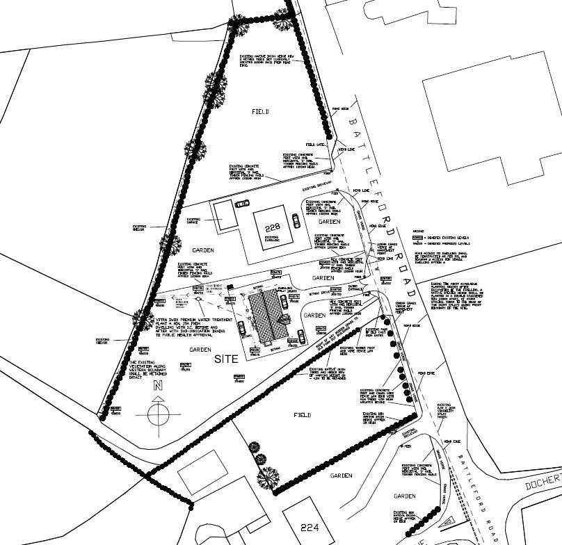
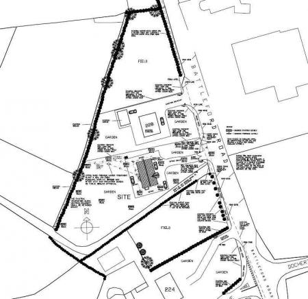
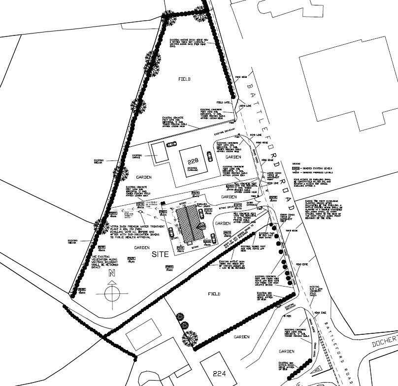
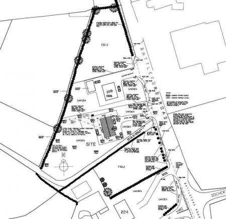
CPS are delighted to have been appointed to list for sale this site for sale with Full Planning Permission, which is circa 0.75 acres located at 10M South of 228 Battleford Road, Armagh, BT61 8BZ.  This site offers an excellent opportunity for someone looking to build a new home. 

LOCATION

The site is located on the main Battleford Road and is accessed off the Cathedral Road via Armagh City and via the Eglish Road from Eglish Village and Dungannon.  The site is ideally located; being in close proximity to local transport roads.

PLANNING

Outline Planning Reference – LA08/2019/0440/O

Site for dwelling

 

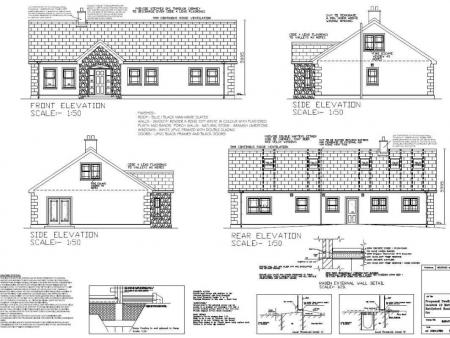
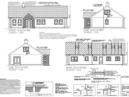
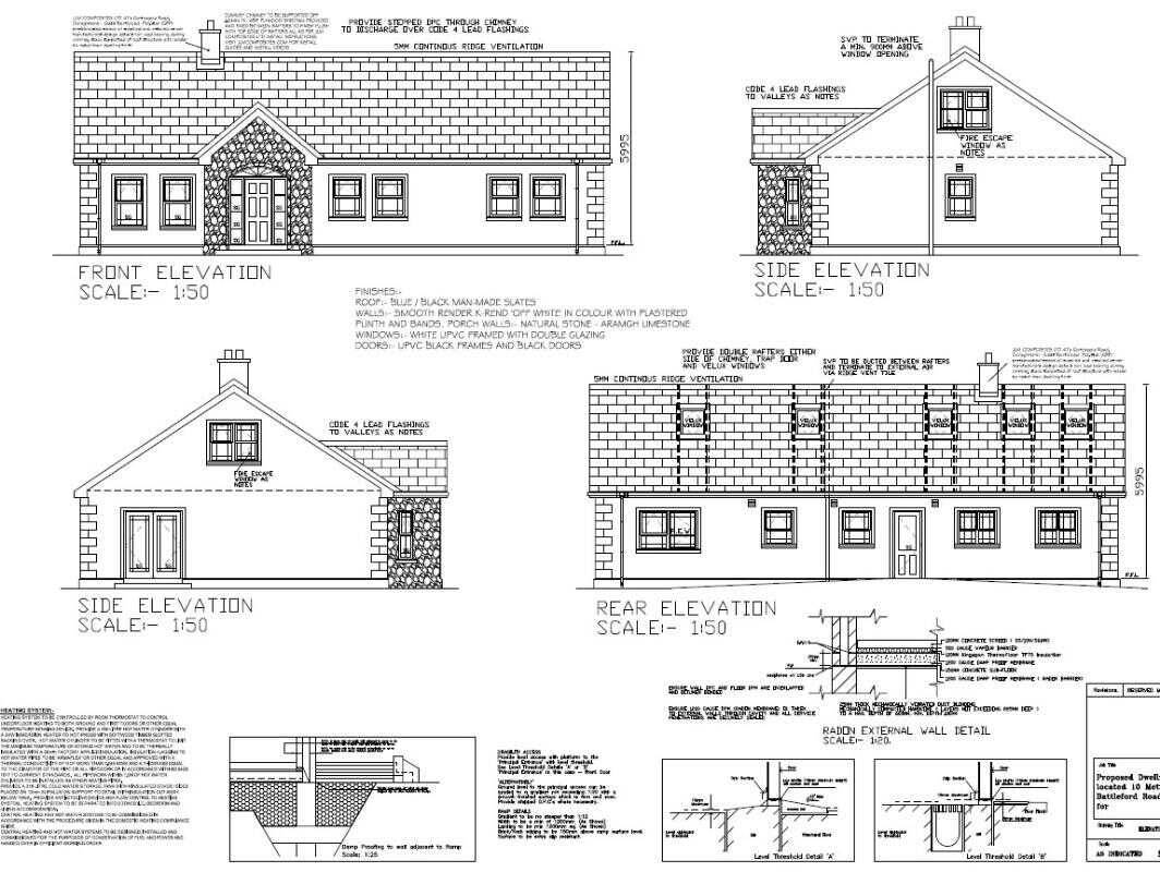
Full Planning Reference – LA08/2024/0324/RM

Erection of dwelling with associated access to public road

  • Comprising a 5-bedroom detached bungalow
Planning pack available upon request

SALES PRICE

We have been instructed to seek an asking price of £90,000 (Ninety Thousand Pounds)

VIEWING INFO

It is advised you carry out your own due diligence on this site and for any further information, please contact our Sales Team on 028 3752 8888

 

Property Ref: 693625

Share:

Similar Properties

1 Ashlea Bend, Markethill

3 Bedroom Terraced House | £85,000

32 Mullacreevie Park, Armagh

3 Bedroom End of Terrace House | £80,000

24 Market Street, Keady

Terraced House | £29,950

29 Callan Bridge Park, Armagh

3 Bedroom End of Terrace House | £95,000

1a Tyross Gardens, Armagh

3 Bedroom Flat | £95,000

94 Drumadd Terrace, Armagh

3 Bedroom Semi-Detached House | £99,000

CPS - Armagh (Armagh City)

43 Upper English Street, Armagh City, County Armagh, BT61 7LA

028 3752 8888

How much is your home worth?

Use our short form to request a valuation of your property.

Request a Valuation

Mortgage Calculator

Amount Borrowed: £
Total Amount Repayable: £
Total Monthly Payment: £
©2026 The Guild of Property Professionals. All rights reserved. Terms and Conditions | Privacy Policy | Cookie Policy | Complaints Policy | Members Login
The Guild of Property Professionals Trading Address: 121 Park Lane, London W1K 7AG. GPEA Limited. Registered in England & Wales.  Company No: 02819824.  Registered Office Address: 2 St. Stephen's Court, St. Stephen's Road, Bournemouth, Dorset, England, BH2 6LA.  VAT Registration No: 576 8795 61
Book a Property Valuation Update Cookies Preferences