Salisbury House Main Street, Askrigg Leyburn DL8 3HG

Guide Price
£750,000

5 Bedroom Semi-Detached House for sale in Askrigg Leyburn

5 6
  • Impressive Grade II Listed Georgian Property Set In 0.36 Acre Plot (Approx)
  • Large House, Cottage & Outbuildings
  • 7 Bedrooms In Main House
  • 2 Bedroom Cottage
  • Flexible Layout Over Three Floors
  • Planning Permission For Rear Extension
  • Sought After Village Location
  • Off Street Parking
  • Extensive Rear Gardens (Approx 0.3 Acre)
  • In Need Of Renovation

Guide Price £650,000 - £750,000

• Impressive Grade II Listed Georgian Property Work in Progress Project. 0.36 Acre Plot (Approx) • Large House, Cottage & Outbuildings • 7 Bedrooms In Main House • 2 Bedroom Cottage • Flexible Layout Over Three Floors • Listed Building Consent For Rear Extension and Conversion of Coach house to make a magnificeint 5 en/suite bedroom home. • Sought After Village Location • Off Street Parking
• Extensive Rear Gardens (Approx 0.3 Acre) • In Need Of Renovation • Fantastic Opportunity

Salisbury House is an impressive period property set in the sought-after Dales village of Askrigg.

Askrigg is a picturesque village with its ancient market cross, notable church and cobbled central 'green'. It has a primary school, good general store, cafe, delicatessen, gift shop as well as 3 good pubs, a number of B&B's and an excellent community life. It is famous for its Herriot connections, being the village where the series All Creatures Great & Small was filmed.

The house is a typical Georgian property and boasts a wealth of original character features including stone flag flooring, deep skirtings, decorative coving and sash windows.

On the ground floor is an impressive entrance hall leading to two good, front reception rooms. To the rear is a kitchen and good size traditional pantry with steps down to a storage cellar with old stone shelves still in place. Upstairs, on the first floor are three, good double bedrooms and a large house bathroom. There are a further four bedrooms on the second floor.

Attached to the house is a separate building/cart house, believed to have been the servant’s quarters, along with the original stables. There is a date stone on the outside wall dated 1818. There is a family dining kitchen with a separate staircase leading to two bedrooms. The traditional cart house has a cobbled floor and two stables, with a ladder staircase to a hayloft. There is a good size coal and potting shed with access to the rear garden.

To the rear, is a large walled garden with mature trees and shrubbery. An avenue of fruit trees leads to the old pig-sty, which makes an ideal garden store. To the rear of the walled garden is a path leading to a large South facing allotment and another lawn garden with mature sycamore tree. There is vehicle access at the rear leading out to ‘Pudding Lane’.

Salisbury House is a truly magnificent property with a flexible layout. Viewing is essential to fully appreciate the extent of the property.

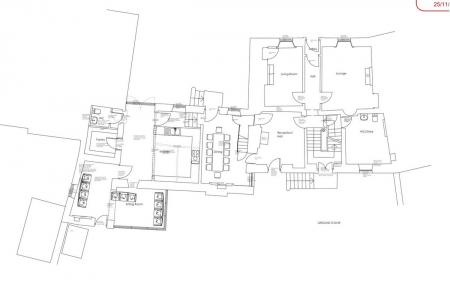
Ground floor

Vestibule

Quarry tiled floor. Front door. Dado rail. Internal door with stained glass.

Hall

Traditional hall. Fitted carpet. Dado rail. Radiator. Feature arch. Turned stone staircase.

Lounge

Lovely front reception room. Fitted carpet. Brick fireplace. Shelved alcove. Radiator. Picture Rail. Sash window to the front.

Dining Room

Fitted carpet. Radiator. Picture rail. Marble fireplace with open fire. Alcove shelved cupboard. Sash window with window seat to front.

Pantry

Steps upto large pantry. Stone flag flooring. Feature fireplace. Window to rear.

Cellar

Stone steps down to storage cellar. Flag flooring. Stone shelving. Original meat hooks. Window to rear.

Kitchen 1

Rear kitchen to main house. Fitted carpet. Radiator. Shelved cupboard. Oil fired Rayburn. Window to rear looking over the garden.

Kitchen 2

Fitted carpet over stone floor. Feature Yorkshire range fire place. 2 Radiators. Basic range of wall and base units. Stainless steel sink unit. Understairs cupboard. Sash window to the front and front door.

Landing

Beautiful turned staircase. Fitted carpet. Dado rail. Double doors out to steps leading to the rear garden.

Bedroom 3

Rear Double bedroom. Fitted carpet. Radiator. Feature fireplace. Sash window to rear.

Bedroom 2

Large front double bedroom. Exposed floorboards. Radiator. Built in cupboard. Feature fireplace. Sash window to front.

Bedroom 1

Front double bedroom. Fitted carpet. Fireplace. Radiator. Coved ceiling. 2 Sash windows to front.

Bathroom

Large rear bathroom. Fitted carpet. Radiator. WC. Wash basin. Bath with electric shower over. Airing cupboard. Window to rear overlooking garden.

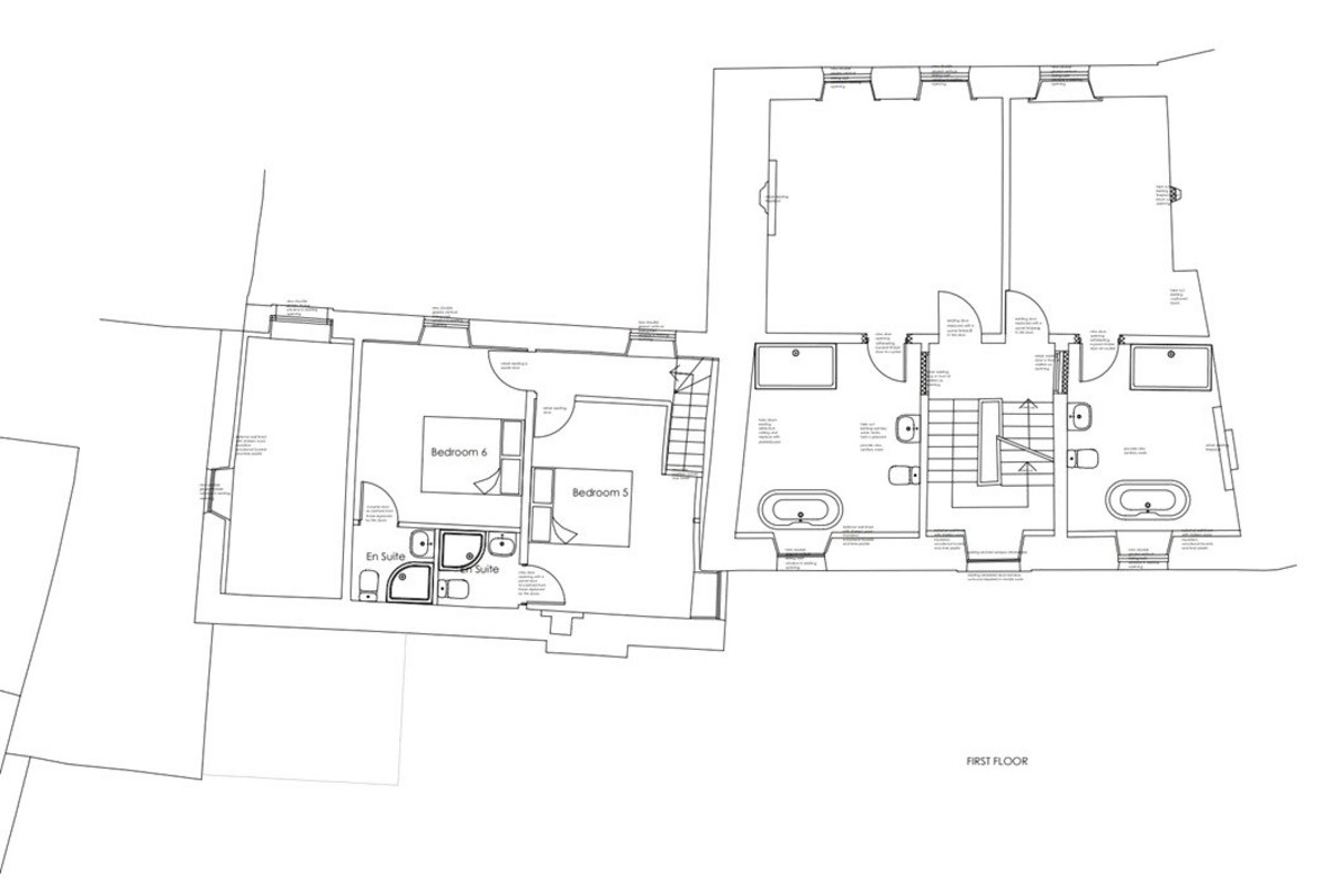
Second Floor

Landing

Turned staircase. Fitted carpet. Arched window to rear overlooking the garden.

Bedroom 6

Exposed floorboards. Feature fireplace.Large shelved cupboard. Window to rear.

Bedroom 4

Front double bedroom. Exposed floorboards. Sash window to front.

Dressing Room

Jack and Jill style dressing room. Exposed floorboards. Sash window to front.

Bedroom 5

Front double bedroom. Exposed floorboards. Marble fireplace. Coved ceiling. Window to front.

Box room

Ideal store room. Floorboards. Window to side.

Bedroom 7

Rear, small double bedroom. Exposed fireplace. Window to rear with long distance views.

Box room

Store room with coat hooks.

Cottage

Previous servants quarters. Accessed via staircase from second kitchen.

Ground Floor

Stables

2 traditional stables with wooden partitioning. Original hay rack and mangers.

Coal store

Cobbled coal store.

Cart house

Stone flagged flooring. Ladder to storage loft. Double timber doors to front.

Potting shed

Stone flagged flooring. Original stone shelving and trough. Yorkshire range fireplace. Window to side. Back door.

First Floor

Servant Room 1

Good size room that would make an ideal guest bedroom. Exposed floorboards. Window to the front.

Servant Room 2

Good size rear room. Old fireplace. Window out to the rear.

Storage Loft

Accessed via ladder from carthouse. Old hay loft. Window and first floor door.

Outside

Front

Cottage style front garden. Wrought iron railings.

Parking to the front of the cottage with gated vehicle access on to the main street.

Rear Gardens

Immediately at the rear is a walled South East facing lawn garden with mature trees and shrubs. A path from the potting shed leads through an orchard of fruit trees towards the pig sty and opens up to an additional garden plot.

The additional plot offers a pleasant walled garden with sycamore tree and a large veg plot and allotment area. There is gated, vehicle access from Silver Street.

Pig sty

Stone built pig sty. Door and windows.

Agents Notes

Two neighbouring properties have pedestrian access Silver Street.

Neighbours have expressed interest in acquiring extra land if new owners were interested in selling.

The seller has applied for planning permission to incorporate the cart house intoaccommodation with a rear extension to provide an open plan living/ dining room.

Listing

ASKRIGG MAIN STREET SD 99 SW (south side) 19/16 Salisbury House and railings GV II 2 houses, now 1, and railings. House to left: early C19. House to right: dated 1818. Coursed rubble, stone slate roofs. House to left: 3 storeys, 3 bays. Central 6-panel door below 3-pane overlight in ashlar surround with splayed bases, basket-arched soffit to lintel, pulvinated frieze and cornice. Sash windows with deep ashlar sills and sill-like lintels. Square gutter brackets. End stack to right. Rear elevation: round-arched landing window in ashlar surround with imposts, keystone and decorative glazing bars. Right return: fluted lead rainwater head. House to right: 2 storeys, 2 first-floor windows. Central studded board door in plain ashlar surround. Above, panel inscribed "J L 1818". To right, board doors below segmental arch of rubble voussoirs with hoodmould. Sash windows with glazing bars with ashlar sills and sill-like lintels. Square gutter brackets. Rear external stack. Above, studded board pitching door in plain ashlar surround. Wrought-iron railings to steps in front of main door of house to right. In front of both houses, ashlar plinth with cast-iron railings with spear finials, and crown finials to standards.

Listing NGR: SD9490291056

Important Information

  • This is a Freehold property.
  • This Council Tax band for this property is: G

Property Ref: RX584907

Share:

Similar Properties

Coldbeck House, Ravenstonedale

7 Bedroom Link Detached House | Guide Price £750,000

Guide Price £750,000–£800,000. Impressive period property set in approx. 1.68 acres on the edge of a village within the...

Mousegill, Barras

3 Bedroom Detached House | Guide Price £725,000

Guide Price £725,000–£750,000. Mousegill is a charming detached home with 7 acres in peaceful Barras near Kirkby Stephen...

Winton House & Dairy Cottage, Winton

6 Bedroom Detached House | Guide Price £700,000

Guide Price £700–£750,000. Detached main house & cottage. 4 dbl bedrooms house and two bed cottage. Farmhouse kitchen di...

Underbanks Farm, Reeth Road, Richmond, DL10 4SE

3 Bedroom Detached House | Guide Price £800,000

Guide Price £800,000 - £850,000. Underbanks Farm is an exceptional smallholding occupying an elevated position on the ed...

Oak Tree House Farm Main Street, West Witton Leyburn DL8 4LR

6 Bedroom Detached House | Guide Price £850,000

Guide price £850,000 - £900,000. Superb detached period home with 2-bed barn conversion and 1-bed annex. Set in generous...

Main Street, West Witton Leyburn, DL8 4

Guest House | Guide Price £850,000

Guide price £850,000 - £900,000. Superb detached period home with 2-bed barn conversion and 1-bed annex. Set in generous...

J R Hopper & Co (Leyburn)

Market Place, Leyburn, North Yorkshire, DL8 5BD

01969 622936

How much is your home worth?

Use our short form to request a valuation of your property.

Request a Valuation

Mortgage Calculator

Amount Borrowed: £
Total Amount Repayable: £
Total Monthly Payment: £
©2026 The Guild of Property Professionals. All rights reserved. Terms and Conditions | Privacy Policy | Cookie Policy | Complaints Policy | Members Login
The Guild of Property Professionals Trading Address: 121 Park Lane, London W1K 7AG. GPEA Limited. Registered in England & Wales.  Company No: 02819824.  Registered Office Address: 2 St. Stephen's Court, St. Stephen's Road, Bournemouth, Dorset, England, BH2 6LA.  VAT Registration No: 576 8795 61
Book a Property Valuation Update Cookies Preferences