Herman Street, Berryfields, Aylesbury

Offers in excess of
£400,000
SSTC
This property listing is now SSTC

3 Bedroom End of Terrace House for sale in Aylesbury

1 3 2
  • POPULAR BERRYFIELDS DEVELOPMENT
  • THREE BEDROOM END-OF-TERRACE HOUSE
  • SET OVER THREE FLOORS
  • MODERN KITCHEN/DINER
  • CLOSE TO SCHOOLS AND AMENITIES
  • LOW MAINTENANCE GARDEN
  • THREE ALLOCATED PARKING SPACES
  • TOP FLOOR DEDICATED TO MASTER BEDROOM

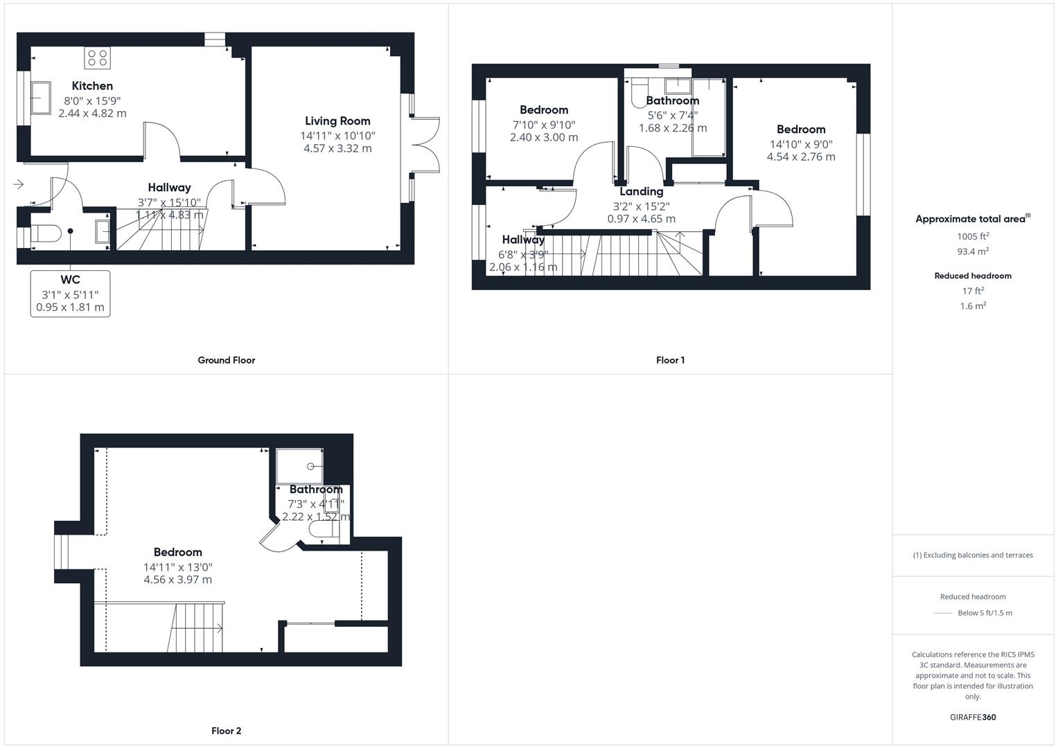
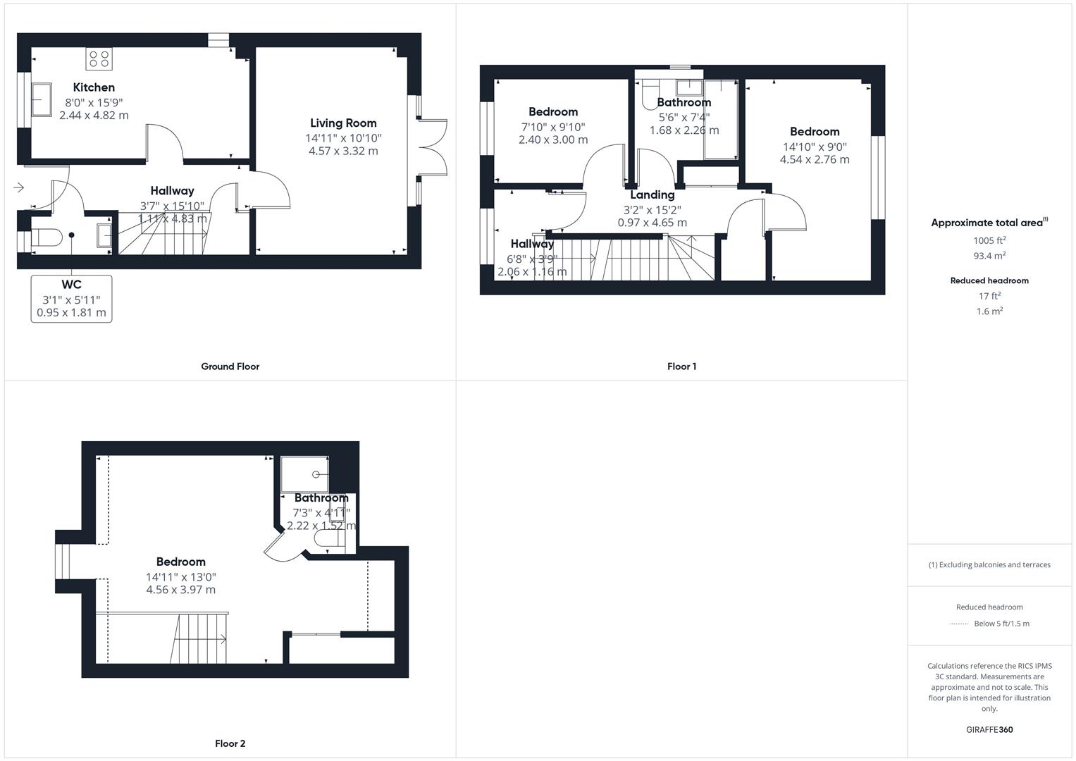
A well presented three bedroom end-of-terrace home arranged over three floors in the popular Berryfields development, close to local schools and amenities. The ground floor offers a kitchen/diner, spacious living room and cloakroom. The first floor features two bedrooms and a family bathroom, while the top floor boasts a master bedroom with en suite. Outside, the property benefits from a low-maintenance garden and three allocated parking spaces.

Location - Berryfields is a modern development situated on the northern outskirts of Aylesbury surrounded by open countryside. The development benefits from good transport links by road towards Bicester/M40 and back to the town centre. The development is home to Aylesbury Parkway Station which offers mainline services into London Marylebone in just under an hour. There is a parade of shops and a Miller and Carter restaurant on the development as well as a secondary school and two primary schools, Berryfields C Of E Primary and Green Ridge Primary Academy.

Accommodation - Upon entering, you are welcomed into an entrance hall featuring a cloakroom, useful under-stairs storage cupboard and stairs leading to the first floor. The modern kitchen/diner is well equipped with integrated appliances including a fridge/freezer, washing machine, dishwasher, oven and grill, inset gas hob and cooker hood, along with space for a dining table. To the rear, the living room provides a comfortable space for relaxation and benefits from double doors opening onto the garden.

The first-floor landing leads to two well proportioned bedrooms and a contemporary family bathroom, as well as airing cupboards offering practical storage.

The top floor is dedicated entirely to the generous master bedroom, complete with built-in wardrobes, en suite shower room, eaves storage and loft access.

Outside, the enclosed rear garden is designed for low maintenance and features a patio area, pergola, garden shed and artificial lawn. The property further benefits from three allocated parking spaces located to the side.

Property Ref: 34308842

Share:

Similar Properties

Broughton Avenue, Broughton, Aylesbury

3 Bedroom Semi-Detached House | £400,000

A three bedroom semi-detached house in the sought-after Broughton area, offered with no upper chain. The property requir...

Old Forge Gardens, Bierton, Aylesbury

2 Bedroom Detached Bungalow | Guide Price £400,000

A two bedroom detached bungalow situated in the village of Bierton, offered to the market with no upper chain. The prope...

Edge Street, Aylesbury, Buckinghamshire

3 Bedroom End of Terrace House | Offers in excess of £400,000

An immaculately presented three bedroom house set over three floors, close to local schools & amenities. The property of...

Bramley Road, Berryfields, Aylesbury

3 Bedroom Semi-Detached House | Offers in excess of £405,000

This three bedroom semi-detached town house, situated in the popular Berryfields development, is offered to the market w...

Austen Place, Haydon Hill, Aylesbury

3 Bedroom Semi-Detached House | Offers in excess of £410,000

A three bedroom semi-detached home situated in the Haydon Hill area, close to local amenities, schools and transport lin...

Paddington Lane, Kingsbrook, Aylesbury

4 Bedroom Semi-Detached House | Guide Price £415,000

A modern 3/4 bedroom semi-detached home located in the new & popular Kingsbrook development. Set over three floors, this...

George David & Co (Aylesbury)

Aylesbury, Buckinghamshire, HP20 1SE

01296 393393

How much is your home worth?

Use our short form to request a valuation of your property.

Request a Valuation

Mortgage Calculator

Amount Borrowed: £
Total Amount Repayable: £
Total Monthly Payment: £
©2026 The Guild of Property Professionals. All rights reserved. Terms and Conditions | Privacy Policy | Cookie Policy | Complaints Policy | Members Login
The Guild of Property Professionals Trading Address: 121 Park Lane, London W1K 7AG. GPEA Limited. Registered in England & Wales.  Company No: 02819824.  Registered Office Address: 2 St. Stephen's Court, St. Stephen's Road, Bournemouth, Dorset, England, BH2 6LA.  VAT Registration No: 576 8795 61
Book a Property Valuation Update Cookies Preferences