Turner Close, Cleveland Park, Aylesbury

£199,950

1 Bedroom Terraced House for sale in Aylesbury

1 1 1
  • ONE BEDROOM TERRACED HOUSE
  • POPULAR LOCATION
  • NO UPPER CHAIN
  • DRIVEWAY PARKING
  • DUAL ASPECT DOUBLE BEDROOM
  • EASY ACCESS TO TOWN CENTRE & STATION
  • BRAND NEW CARPET THROUGHOUT

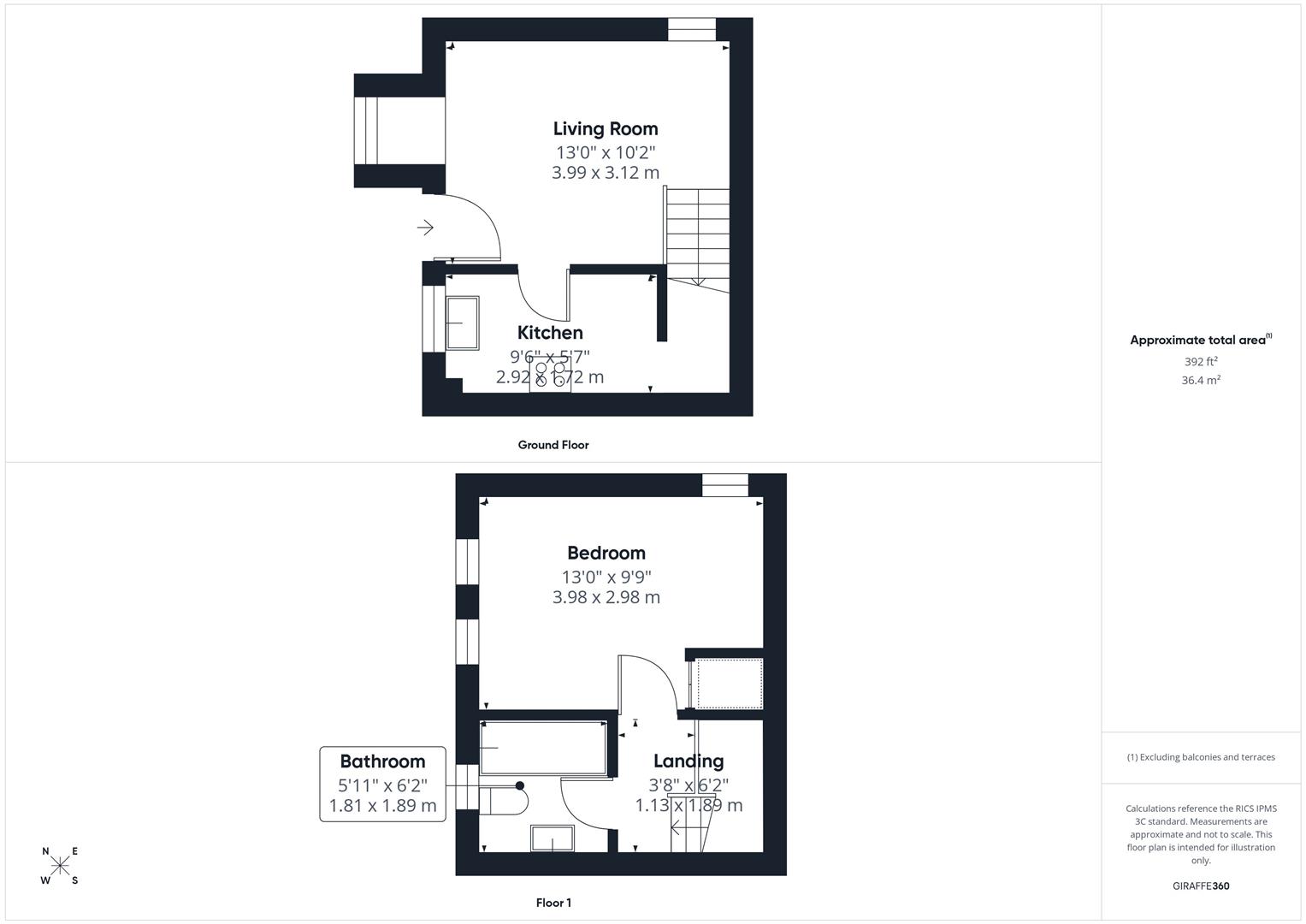
A one bedroom terraced house in Cleveland Park, offering easy access to local amenities, shops and transport links, including the mainline station. This home presents a straightforward purchase with no upper chain. The accommodation comprises a living room, kitchen, double bedroom and bathroom. Externally there is private driveway parking. Ideal for first-time buyers or investors seeking a convenient location.

Location - Cleveland Park is a development to the eastern outskirts of Aylesbury's town centre. Close to fields which offers great opportunity for dog walking and country walks. The location has good transport links by road to the A41 towards London/M25 and the A418 towards Milton Keynes/North bound M1. The town centre and all its amenities are just over a mile walk away.

Accommodation - The accommodation begins with direct access into the living room, a well-proportioned space with room for a range of living and dining furniture. Stairs rise from the living room to the first floor, creating a practical and efficient layout.

The kitchen is fitted with an inset electric hob and oven, with additional space and plumbing for a fridge and washing machine.

On the first floor, the landing provides access to the loft and leads to the main bedroom and bathroom. The dual-aspect double bedroom is bright and airy, offering ample space for bedroom furniture. The bathroom completes the internal accommodation.

Externally, the property benefits from driveway parking to the front for one car.

Property Ref: 34458196

Share:

Similar Properties

Quercetum Close, Aylesbury, Buckinghamshire

2 Bedroom Flat | Offers in excess of £195,000

Located within walking distance of the train station and town centre, this spacious ground floor flat offers convenient,...

Quercetum Close, Aylesbury, Buckinghamshire

2 Bedroom Flat | Offers in excess of £195,000

Ideally situated close to the town centre, train station, and local amenities, this two bedroom first-floor flat offers...

Norwood Close, Oldhams Meadow, Aylesbury

1 Bedroom Maisonette | £190,000

999 YEAR LEASE FROM NEW - PEPPERCORN GROUNT RENT - NO UPPER CHAIN - A very well presented first floor maisonette in Oldh...

Chappell Close, Aylesbury

2 Bedroom Apartment | Offers in excess of £200,000

TWO BEDROOM GROUND FLOOR FLAT - WALKING DISTANCE OF THE TOWN CENTRE - APPROXIMATELY ONE MILE FROM THE TRAIN STATION - NO...

The Warren, Berryfields, Aylesbury

2 Bedroom Flat | £200,000

A two bedroom ground floor flat situated in the popular Berryfields development. The property offers modern open-plan li...

Batchelor Close, Cleveland Park, Aylesbury

1 Bedroom Terraced House | Offers in excess of £200,000

A one bedroom terraced house in Cleveland Park, offering excellent road links and easy access to local amenities, town c...

George David & Co (Aylesbury)

Aylesbury, Buckinghamshire, HP20 1SE

01296 393393

How much is your home worth?

Use our short form to request a valuation of your property.

Request a Valuation

Mortgage Calculator

Amount Borrowed: £
Total Amount Repayable: £
Total Monthly Payment: £
©2026 The Guild of Property Professionals. All rights reserved. Terms and Conditions | Privacy Policy | Cookie Policy | Complaints Policy | Members Login
The Guild of Property Professionals Trading Address: 121 Park Lane, London W1K 7AG. GPEA Limited. Registered in England & Wales.  Company No: 02819824.  Registered Office Address: 2 St. Stephen's Court, St. Stephen's Road, Bournemouth, Dorset, England, BH2 6LA.  VAT Registration No: 576 8795 61
Book a Property Valuation Update Cookies Preferences