Hayloft, Townside, Haddenham

£525,000

2 Bedroom Semi-Detached House for sale in Aylesbury

2 2 1
  • 2 Bedrooms
  • Close to Schools & Amenities
  • Internal Viewings Recommended
  • Kitchen/Breakfast Room
  • Walking Distance to the Station
  • Sought After Village Location
  • Tastefully Presented Throughout
  • Rear Garden

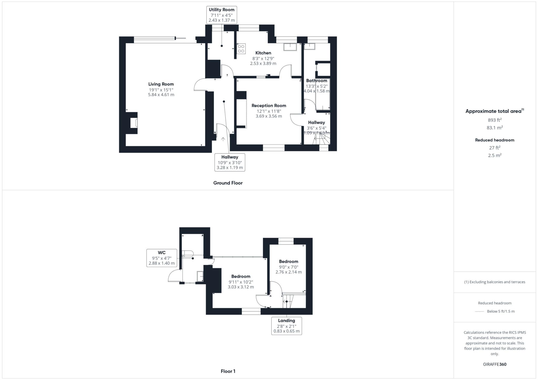
Nestled in the heart of the Haddenham conservation area, this charming semi-detached Wychert cottage dates back over 200 years. Originally a cottage with a barn, the property has been thoughtfully converted to create a unique blend of historic character and practical modern living.

Ground Floor:

A welcoming entrance hall leads into a spacious main reception room, the former barn, full of character with original beams, a vaulted ceiling, log-burning stove, and Velux windows that flood the space with natural light. Sliding patio doors open onto a charming walled garden, offering seamless indoor-outdoor living.

The kitchen is full of period charm and character, while a second reception room with a feature fireplace provides flexible use as a dining room, snug, or home office.

A useful utility room and a well-appointed downstairs bathroom complete the ground floor.

First Floor:

Upstairs features a light-filled principal bedroom with an en-suite WC, along with a second, smaller bedroom ideal as a childs room, dressing room, or study.

Externally, The property features a part-lawned garden with a decked seating area and patio paving ideal for relaxing or entertaining outdoors.

This rare and characterful home offers a unique opportunity to own a piece of Haddenham`s heritage. The walled garden provides a peaceful outdoor haven, enhanced by mature planting and space to relax or entertain.

Notice
Please note we have not tested any apparatus, fixtures, fittings, or services. Interested parties must undertake their own investigation into the working order of these items. All measurements are approximate and photographs provided for guidance only.

Council Tax
Buckinghamshire Council, Band D

Utilities
Electric: Mains Supply
Gas: Mains Supply
Water: Mains Supply
Sewerage: Mains Supply
Broadband: Unknown
Telephone: None

Other Items
Heating: Gas Central Heating
Garden/Outside Space: No
Parking: No
Garage: No

Important Information

  • This is a Freehold property.

Property Ref: 1223

Share:

Similar Properties

Long Furlong, Haddenham

4 Bedroom Detached House | £525,000

Chain-Free - Four-Bedroom Detached Family Home - Generous Wrap-Around Garden - Walking Distance to Amenities and Haddenh...

Hedgehog Way, Haddenham

3 Bedroom Detached House | £525,000

***Stunning, 3 Bedroom Detached Family Home***

Quakers Mede, Haddenham

4 Bedroom Detached House | Offers in region of £525,000

Harpers is pleased to offer this spacious four-bedroom detached home in a sought-after location, close to schools, trans...

Maslin Elms, Haddenham

3 Bedroom Link Detached House | £550,000

***THREE BEDROOM LINK DETACHED HOME, OFF STREET PARKING , GARAGE AND GARDEN***

Stag Row, Shabbington, HP18

3 Bedroom Semi-Detached House | £550,000

An immaculate three bedroom semi-detached family home in the heart of a popular village, boasting beautiful interiors an...

Thame Road, Haddenham

2 Bedroom Detached Bungalow | £550,000

Two-Bedroom Detached Bungalow with Generous Gardens and Extension Potential (STPP)

Harpers Estate Agents (Haddenham)

Haddenham, Buckinghamshire, HP17 8EJ

01844 853888

How much is your home worth?

Use our short form to request a valuation of your property.

Request a Valuation

Mortgage Calculator

Amount Borrowed: £
Total Amount Repayable: £
Total Monthly Payment: £
©2026 The Guild of Property Professionals. All rights reserved. Terms and Conditions | Privacy Policy | Cookie Policy | Complaints Policy | Members Login
The Guild of Property Professionals Trading Address: 121 Park Lane, London W1K 7AG. GPEA Limited. Registered in England & Wales.  Company No: 02819824.  Registered Office Address: 2 St. Stephen's Court, St. Stephen's Road, Bournemouth, Dorset, England, BH2 6LA.  VAT Registration No: 576 8795 61
Book a Property Valuation Update Cookies Preferences