Hayloft, Townside, Haddenham

£525,000

2 Bedroom Semi-Detached House for sale in Aylesbury

2 2 1
  • 2 Bedrooms
  • Close to Schools & Amenities
  • Internal Viewings Recommended
  • Kitchen/Breakfast Room
  • Walking Distance to the Station
  • Sought After Village Location
  • Tastefully Presented Throughout
  • Rear Garden

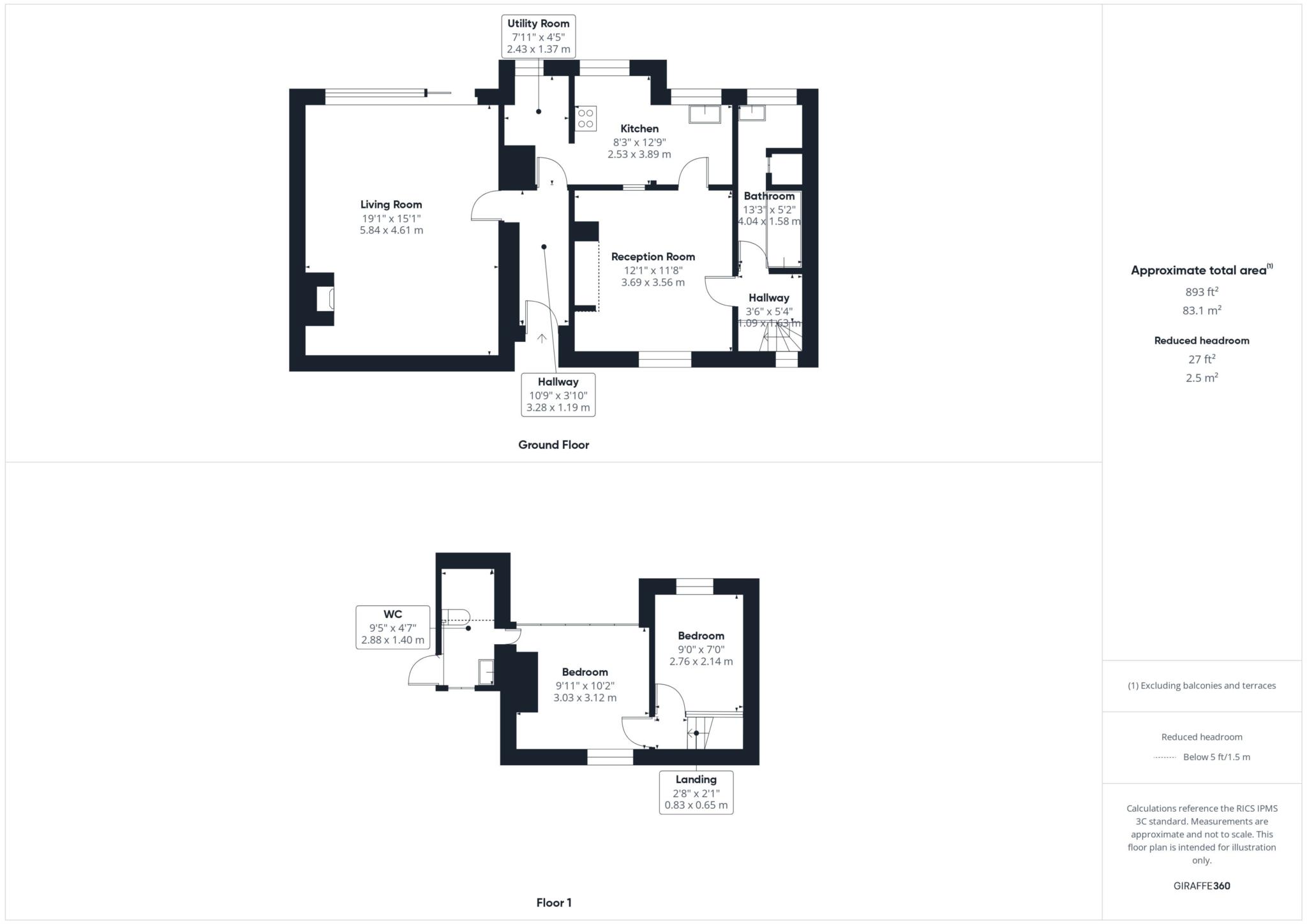
Nestled in the heart of the Haddenham conservation area, this charming semi-detached Wychert cottage dates back over 200 years. Originally a cottage with a barn, the property has been thoughtfully converted to create a unique blend of historic character and practical modern living.

Ground Floor:

A welcoming entrance hall leads into a spacious main reception room, the former barn, full of character with original beams, a vaulted ceiling, log-burning stove, and Velux windows that flood the space with natural light. Sliding patio doors open onto a charming walled garden, offering seamless indoor-outdoor living.

The kitchen is full of period charm and character, while a second reception room with a feature fireplace provides flexible use as a dining room, snug, or home office.

A useful utility room and a well-appointed downstairs bathroom complete the ground floor.

First Floor:

Upstairs features a light-filled principal bedroom with an en-suite WC, along with a second, smaller bedroom ideal as a childs room, dressing room, or study.

Externally, The property features a part-lawned garden with a decked seating area and patio paving ideal for relaxing or entertaining outdoors.

This rare and characterful home offers a unique opportunity to own a piece of Haddenham`s heritage. The walled garden provides a peaceful outdoor haven, enhanced by mature planting and space to relax or entertain.

Notice
Please note we have not tested any apparatus, fixtures, fittings, or services. Interested parties must undertake their own investigation into the working order of these items. All measurements are approximate and photographs provided for guidance only.

Council Tax
Buckinghamshire Council, Band D

Utilities
Electric: Mains Supply
Gas: Mains Supply
Water: Mains Supply
Sewerage: Mains Supply
Broadband: Unknown
Telephone: None

Other Items
Heating: Gas Central Heating
Garden/Outside Space: No
Parking: No
Garage: No

Important Information

  • This is a Freehold property.

Property Ref: 10000143

Share:

Similar Properties

Elm Close, Weston Turville

3 Bedroom Semi-Detached House | Offers in excess of £525,000

**COMPLETE ONWARD CHAIN** An extremely well presented three bedroom semi detached home with open plan kitchen / dining a...

Detached house, Old Farm, Pitstone

3 Bedroom Detached House | £525,000

An extremely well presented and bright three bedroom detached house situated in this very quiet residential location in...

Detached single level bungalow, Aylesbury Road, Wendover

2 Bedroom Detached Bungalow | Offers in excess of £525,000

Available to the market for the first time in 70 years, a two bedroom detached single level bungalow with garage, drivew...

The Strand, Quainton

3 Bedroom Cottage | Guide Price £535,000

Tucked away in the heart of a pretty Buckinghamshire village, this charming three-bedroom cottage brings together classi...

Moor Park, Wendover

3 Bedroom Semi-Detached House | Offers in excess of £535,000

An extremely well presented three bedroom semi detached house, situated in a lovely position overlooking open fields to...

Walnut Close, Stoke Mandeville

4 Bedroom Detached House | Offers in excess of £550,000

A well presented four bedroom detached family home, offered to the market with no upper chain, situated in this quiet cu...

Harpers Estate Agents (Wendover)

Wendover, Buckinghamshire, HP22 6EA

01296 625100

How much is your home worth?

Use our short form to request a valuation of your property.

Request a Valuation

Mortgage Calculator

Amount Borrowed: £
Total Amount Repayable: £
Total Monthly Payment: £
©2026 The Guild of Property Professionals. All rights reserved. Terms and Conditions | Privacy Policy | Cookie Policy | Complaints Policy | Members Login
The Guild of Property Professionals Trading Address: 121 Park Lane, London W1K 7AG. GPEA Limited. Registered in England & Wales.  Company No: 02819824.  Registered Office Address: 2 St. Stephen's Court, St. Stephen's Road, Bournemouth, Dorset, England, BH2 6LA.  VAT Registration No: 576 8795 61
Book a Property Valuation Update Cookies Preferences