Halifax Green, Haddenham

Offers in excess of
£499,950

4 Bedroom Semi-Detached House for sale in Aylesbury

1 4 3
  • 4 Bedrooms
  • Garage
  • Internal Viewings Recommended
  • Walking Distance to the Station
  • Rear Garden
  • Kitchen/Breakfast Room
  • Off Street Parking
  • Downstairs WC

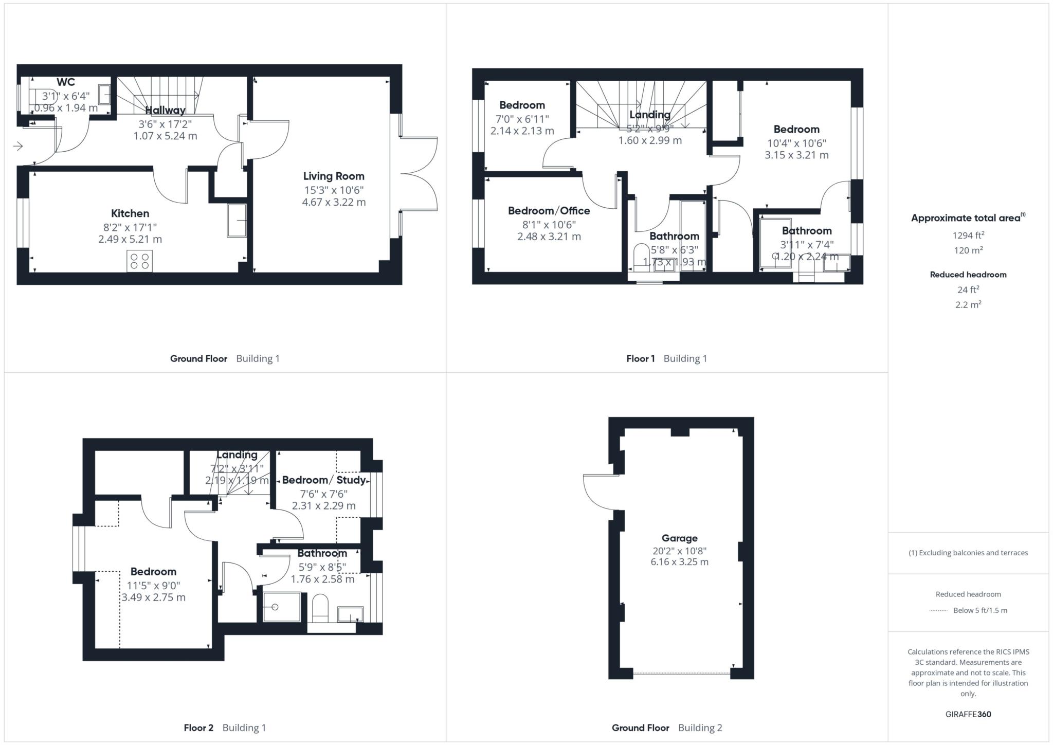
Modern Family Living in the Heart of Haddenham


Built in 2022 - 4 Bedrooms - 3 Bathrooms - Garage & Parking



Just a stone`s throw from the green and approximately an 8-minute walk to the station.

This beautifully presented semi-detached home, built in 2022, offers stylish and spacious living across three floors. Located in the desirable village of Haddenham, it`s an ideal property for families looking for modern comfort and a convenient lifestyle.




Ground Floor Highlights:


Bright and welcoming entrance hall


Cloakroom/WC for added convenience


Contemporary kitchen fitted with quality appliances and generous dining space


Spacious living room with French doors leading to the rear garden and Garage



First Floor:


Master bedroom complete with en-suite shower room


Two further well-proportioned bedrooms


Modern family bathroom



Second Floor:


A large fourth bedroom


Separate shower room


Dedicated study/Bedroom perfect for remote work or use as a hobby space



Outdoor Features:


Low-maintenance rear garden ideal for entertaining or relaxing


Off-street parking and a single garage.
The property is situated next to open green space and playing fields, offering a great environment for families
and play space.
Shops and Amenities are within close proximity to the residence.




Broadband Speeds-The table shows the predicted broadband services in your area. ( Ofcom)
Broadband type Highest available download speed Highest available upload speed Availability
Standard 16 Mbps 1 Mbps Good
Superfast 73 Mbps 17 Mbps Good
Ultrafast 1800 Mbps 1000 Mbps Good
Networks in your area - Openreach, Hyperoptic

Flood Risk- ( Gov.uk)
Surface Water- Very Low
Rivers & Seas - Very Low





Notice
Please note we have not tested any apparatus, fixtures, fittings, or services. Interested parties must undertake their own investigation into the working order of these items. All measurements are approximate and photographs provided for guidance only.

Council Tax
Buckinghamshire Council, Band E

Service Charge
£150.00 Yearly

Utilities
Electric: Mains Supply
Gas: Mains Supply
Water: Mains Supply
Sewerage: Mains Supply
Broadband: Cable
Telephone: Unknown

Other Items
Heating: Gas Central Heating
Garden/Outside Space: No
Parking: Yes
Garage: Yes

Important Information

  • This is a Freehold property.

Property Ref: 4968_10000046

Share:

Similar Properties

Dollicott, Haddenham

3 Bedroom Detached House | £495,000

**Charming Three Bedroom Thatched Cottage Overlooking the Village Green in Haddenham**Detached - Character Features - Ga...

Marriotts Lane, Haddenham

3 Bedroom Detached House | £485,000

***Three Bedroom Detached Family Home***

Bicester Road, Long Crendon

3 Bedroom Cottage | £465,000

Originally believed to be three dwellings, Bertie`s Cottage is an enchanting 3/4 bedroom, part thatch cottage. Combining...

Dovecote, Haddenham

3 Bedroom Semi-Detached House | £500,000

*** THREE BEDROOM FAMILY HOME, WITHIN WALKING DISTANCE TO STATION, OFF STREET PARKING , POTENTIAL AND GARAGE***

Hedgehog Way, Haddenham

3 Bedroom Detached House | £525,000

***Stunning, 3 Bedroom Detached Family Home***

The Gables, Haddenham

4 Bedroom Detached House | £525,000

Spacious Four-Bedroom Family Home Brimming with Potential.....

Harpers Estate Agents (Haddenham)

Haddenham, Buckinghamshire, HP17 8EJ

01844 853888

How much is your home worth?

Use our short form to request a valuation of your property.

Request a Valuation

Mortgage Calculator

Amount Borrowed: £
Total Amount Repayable: £
Total Monthly Payment: £
©2025 The Guild of Property Professionals. All rights reserved. Terms and Conditions | Privacy Policy | Cookie Policy | Complaints Policy | Members Login
The Guild of Property Professionals Trading Address: 121 Park Lane, London W1K 7AG. GPEA Limited. Registered in England & Wales.  Company No: 02819824.  Registered Office Address: 2 St. Stephen's Court, St. Stephen's Road, Bournemouth, Dorset, England, BH2 6LA.  VAT Registration No: 576 8795 61
Book a Property Valuation Update Cookies Preferences