Churchway, Haddenham

Offers in excess of
£450,000

2 Bedroom Cottage for sale in Aylesbury

1 2 1
  • Internal Viewings Recommended
  • Kitchen/Breakfast Room
  • Log Burning Stove
  • Off Street Parking
  • Tastefully Presented Throughout
  • Walking Distance to the Station
  • 2 Bedrooms
  • Close to Schools & Amenities

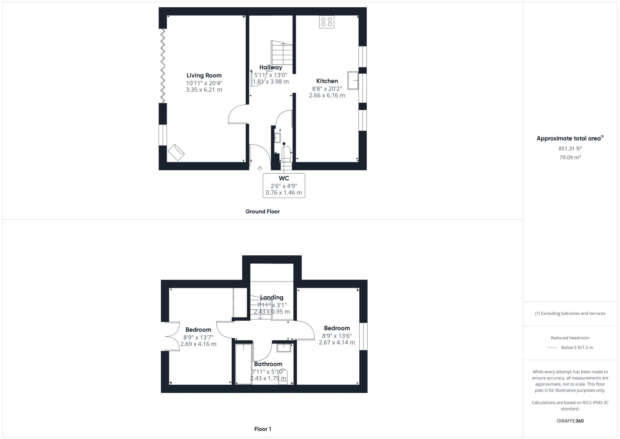
Once a village school, this delightful two-bedroom home offers a unique combination of period charm and contemporary comfort perfect for professional couples and families. Beautifully presented and tastefully decorated by the current owner, it is ready to move into and full of character throughout.



Situated on a sought-after residential road, the property is just a short walk from the local station, offering excellent transport links into both London and Oxford. It`s also conveniently located near a thriving local market town, a range of amenities, and well-regarded schools.



The ground floor features an inviting entrance hall, a bright and airy living room with bi-fold doors that open out to a private rear garden, a downstairs WC, and a stylish kitchen/diner with front-facing views. The kitchen is well-appointed with generous worktop space, ample cabinetry, and a contemporary breakfast bar, along with a practical under-stair storage cupboard.



Upstairs, you`ll find two spacious double bedrooms, one with a Juliette balcony overlooking the garden and the other with under-eaves storage. A modern bathroom completes the first floor, featuring a bath with an overhead shower.



Additional highlights include off-street parking for one vehicle and a peaceful rear garden. Beyond the garden lies a old graveyard, which the current owners appreciate for its open, tranquil setting, though it could be screened for privacy if preferred.

This is a rare opportunity to own a home that combines character, comfort, and excellent connectivity in a desirable location..

Notice
Please note we have not tested any apparatus, fixtures, fittings, or services. Interested parties must undertake their own investigation into the working order of these items. All measurements are approximate and photographs provided for guidance only.

Council Tax
Buckinghamshire Council, Band E

Utilities
Electric: Mains Supply
Gas: Unknown
Water: Mains Supply
Sewerage: None
Broadband: None
Telephone: None

Other Items
Heating: Gas Central Heating
Garden/Outside Space: No
Parking: Yes
Garage: No

Important Information

  • This is a Freehold property.

Property Ref: 4968_579

Share:

Similar Properties

Stanbridge Road, Haddenham

3 Bedroom Semi-Detached House | Offers in excess of £425,000

** Potential**This appealing property is a three bedroom semi-detached family home, nestled in the highly sought-after v...

Stanbridge Close, Haddenham

3 Bedroom Semi-Detached House | £395,000

*** Three Bedroom Family Home within walking distance to schools and local amenities***

Willis Road, Haddenham

2 Bedroom Semi-Detached House | £385,000

*** TWO BEDROOM SEMI DETACHED HOME WITH A WONDERFUL SOUTH FACING GARDEN ***

Bicester Road, Long Crendon

3 Bedroom Cottage | £465,000

Originally believed to be three dwellings, Bertie`s Cottage is an enchanting 3/4 bedroom, part thatch cottage. Combining...

Marriotts Lane, Haddenham

3 Bedroom Detached House | £485,000

***Three Bedroom Detached Family Home***

Dollicott, Haddenham

3 Bedroom Detached House | £495,000

**Charming Three Bedroom Thatched Cottage Overlooking the Village Green in Haddenham**Detached - Character Features - Ga...

Harpers Estate Agents (Haddenham)

Haddenham, Buckinghamshire, HP17 8EJ

01844 853888

How much is your home worth?

Use our short form to request a valuation of your property.

Request a Valuation

Mortgage Calculator

Amount Borrowed: £
Total Amount Repayable: £
Total Monthly Payment: £
©2025 The Guild of Property Professionals. All rights reserved. Terms and Conditions | Privacy Policy | Cookie Policy | Complaints Policy | Members Login
The Guild of Property Professionals Trading Address: 121 Park Lane, London W1K 7AG. GPEA Limited. Registered in England & Wales.  Company No: 02819824.  Registered Office Address: 2 St. Stephen's Court, St. Stephen's Road, Bournemouth, Dorset, England, BH2 6LA.  VAT Registration No: 576 8795 61
Book a Property Valuation Update Cookies Preferences