Willis Road, Haddenham

£400,000

3 Bedroom Semi-Detached House for sale in Aylesbury

1 3 1
  • Close to Schools & Amenities
  • In Need of Modernisation
  • Off Street Parking
  • Potential to Extend stpp
  • Flexible Accommodation
  • Downstairs WC
  • Open Plan Kitchen/ Dining Room
  • Reception/ Living Room
  • Family Bathroom
  • Double Bedroom

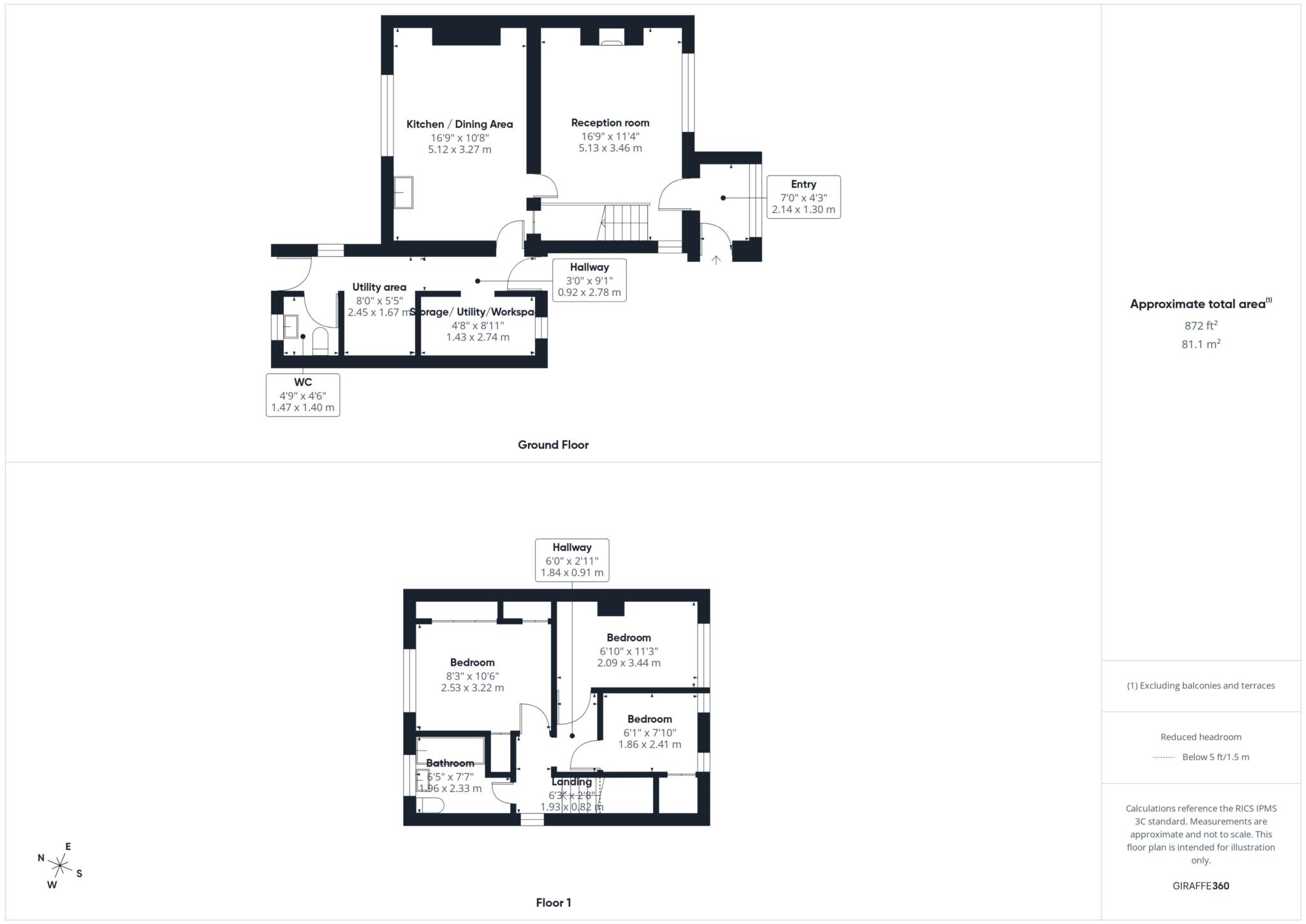
Harpers are delighted to present this charming 3-bedroom family home, brimming with potential and offering an excellent opportunity for those looking to add their own style and stamp.

Entering through the porch, you`re greeted by a bright and generous living/reception room, where a log-burning stove could be added to create a wonderfully cosy focal point. The spacious kitchen/dining area is perfectly sized for transforming into a contemporary family space, and the ground floor is further enhanced by a handy WC and a flexible utility/workroom suited to storage, laundry, or creative projects.

Upstairs, the property offers a generous double bedroom and a second double currently arranged as two separate rooms thanks to a stud partition wall, providing flexibility for those needing an extra bedroom, nursery, or home office. A family bathroom completes the first floor.



Externally, the property boasts off-street parking to the front and a large, mature rear garden an excellent space for children, entertaining, or future landscaping. The home could also benefit from a rear extension, subject to the usual planning permissions, allowing buyers to unlock additional space if desired.



Further benefits include a full rewire carried out last year and a new boiler installed around 2022, offering peace of mind to future owners. The property is perfectly located for short walks to local schools, shops, and everyday amenities, making it an ideal choice for families or those seeking convenience.




Note on layout: Originally built as a 2-bedroom home, this property has been enjoyed as a 3-bedroom dwelling for many decades, and the current layout reflects this long-established use.



Notice
Please note we have not tested any apparatus, fixtures, fittings, or services. Interested parties must undertake their own investigation into the working order of these items. All measurements are approximate and photographs provided for guidance only.

Council Tax
Buckinghamshire Council, Band C

Utilities
Electric: Mains Supply
Gas: Mains Supply
Water: Mains Supply
Sewerage: Unknown
Broadband: Unknown
Telephone: Unknown

Other Items
Heating: Gas Central Heating
Garden/Outside Space: No
Parking: Yes
Garage: No

Important Information

  • This is a Freehold property.

Property Ref: 4968_10000064

Share:

Similar Properties

Stanbridge Close, Haddenham

3 Bedroom Semi-Detached House | £395,000

*** Three Bedroom Family Home within walking distance to schools and local amenities***

Willis Road, Haddenham

2 Bedroom Semi-Detached House | £385,000

*** TWO BEDROOM SEMI DETACHED HOME WITH A WONDERFUL SOUTH FACING GARDEN ***

Alderson Way, Haddenham

2 Bedroom Semi-Detached House | £385,000

Perfectly positioned within this lovely development ` The Grove`, this 2 bedroom family home is within walking distance...

Stanbridge Road, Haddenham

3 Bedroom Semi-Detached House | Offers in excess of £425,000

** Potential**This appealing property is a three bedroom semi-detached family home, nestled in the highly sought-after v...

Bicester Road, Long Crendon

3 Bedroom Cottage | £465,000

Originally believed to be three dwellings, Bertie`s Cottage is an enchanting 3/4 bedroom, part thatch cottage. Combining...

Stokes Croft, Haddenham

3 Bedroom Detached House | £475,000

** 3 Bedroom Family Home, Perfectly Positioned close to Schools, Shops and Amenities..**

Harpers Estate Agents (Haddenham)

Haddenham, Buckinghamshire, HP17 8EJ

01844 853888

How much is your home worth?

Use our short form to request a valuation of your property.

Request a Valuation

Mortgage Calculator

Amount Borrowed: £
Total Amount Repayable: £
Total Monthly Payment: £
©2025 The Guild of Property Professionals. All rights reserved. Terms and Conditions | Privacy Policy | Cookie Policy | Complaints Policy | Members Login
The Guild of Property Professionals Trading Address: 121 Park Lane, London W1K 7AG. GPEA Limited. Registered in England & Wales.  Company No: 02819824.  Registered Office Address: 2 St. Stephen's Court, St. Stephen's Road, Bournemouth, Dorset, England, BH2 6LA.  VAT Registration No: 576 8795 61
Book a Property Valuation Update Cookies Preferences