Hillier Road, Hawkslade, Aylesbury

£225,000
SSTC
This property listing is now SSTC

1 Bedroom Terraced House for sale in Aylesbury

1 1 1
  • POPULAR HAWKSLADE AREA
  • WELL PRESENTED THROUGHOUT
  • OFF-ROAD PARKING SPACE
  • ENCLOSED REAR GARDEN
  • CLOSE TO LOCAL AMENITIES
  • CLOSE TO HOSPITAL
  • BEDROOM WITH BUILT-IN WARDROBE
  • MODERN KITCHEN
  • IDEAL FOR FIRST TIME BUYERS

A well presented one bedroom terraced house in the popular Hawkslade area. The property features a bright living room, modern kitchen, spacious bedroom and a bathroom. Outside benefits include a private garden and off-road parking, making it an ideal opportunity for first-time buyers.

Location - Situated on the southern outskirts of the town with good access towards London, High Wycombe and the M40. This well-regarded area is situated within walking distance of Stoke Mandeville Hospital and borders open countryside. There are two schools within short walking distance as-well as a community centre and convenience store on the estate.

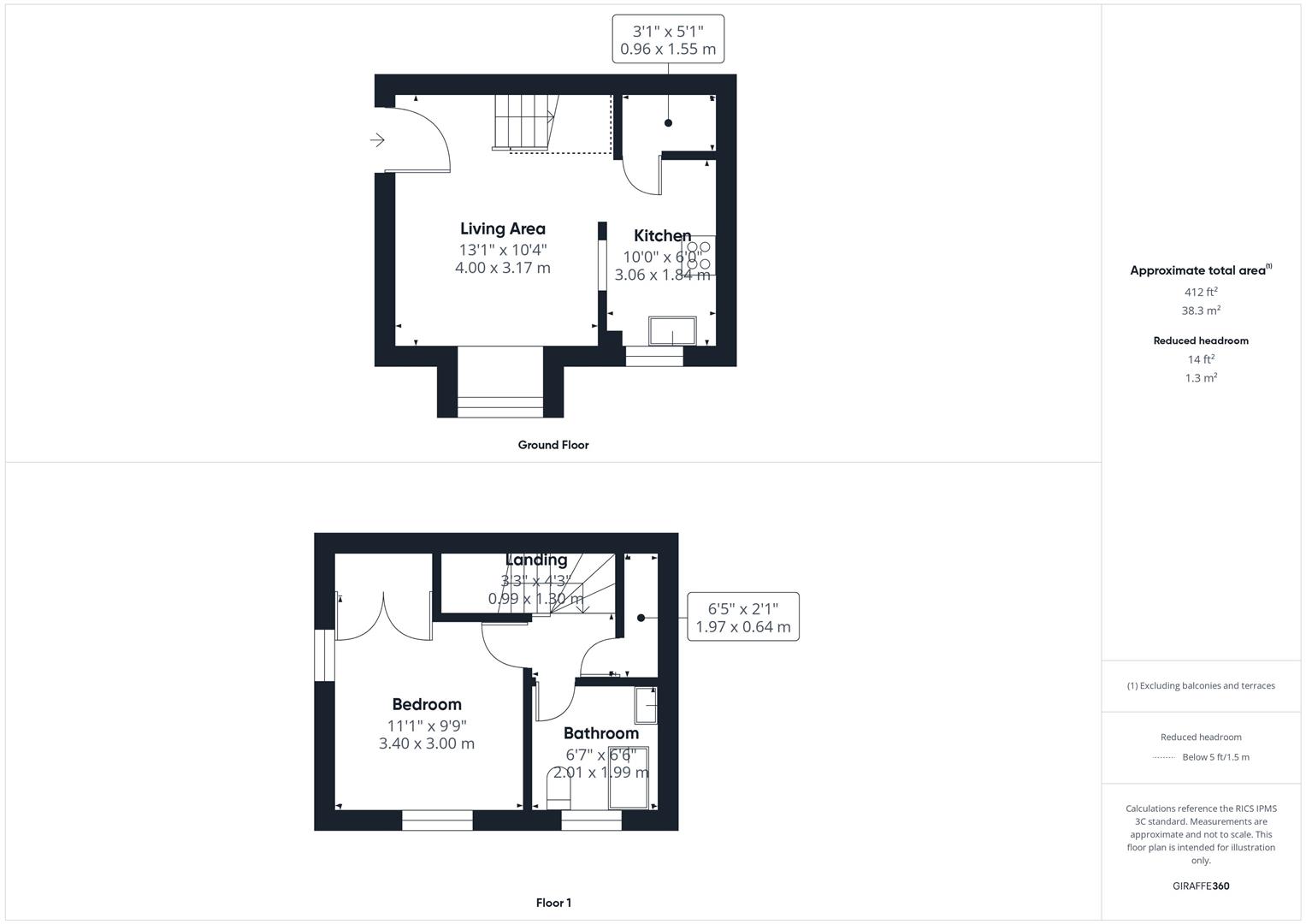
Accommodation - The property is entered via a bright and welcoming living room, featuring a bay window that allows plenty of natural light to fill the space. There is ample room for a range of living and dining furniture, as well as stairs leading to the first floor.

The modern kitchen is fitted with a range of base and wall units, an inset gas hob, oven, and cooker hood, with additional space and plumbing for a washing machine. A utility cupboard provides extra storage space and room for a fridge/freezer.

Upstairs, the landing gives access to the loft and an airing cupboard. The double bedroom benefits from a built-in wardrobe, offering practical storage. The bathroom is fitted with a WC, wash basin, and a corner bathtub with a shower attachment.

Outside, the property features a well-maintained enclosed rear garden with a lawn, small trees, and a garden shed, perfect for outdoor relaxation or storage. To the front, there is off-road parking for one vehicle.

Property Ref: 6584685_34251613

Share:

Similar Properties

Fairford Leys Way, Fairford Leys, Aylesbury

2 Bedroom Maisonette | Offers in excess of £225,000

A two bedroom first-floor maisonette located in the popular Fairford Leys development. Offered with no upper chain, this...

Sharp Close, Lavender Grange, Aylesbury

1 Bedroom Terraced House | Offers in excess of £225,000

Offered with no upper chain, this one bedroom terraced home is ideally located just over a mile from Aylesbury town cent...

Woodmans Croft, Fairford Leys, Aylesbury

2 Bedroom Flat | £215,000

A two bedroom first-floor flat situated within the popular Fairford Leys development, offered with no upper chain. The p...

Coxhill Way, Aylesbury, Buckinghamshire

2 Bedroom Flat | £230,000

A well presented two bedroom third floor flat located in a central area, within walking distance to the town centre and...

Old Burrs, Hawkslade, Aylesbury

1 Bedroom Terraced House | Offers in excess of £235,000

A well presented one bedroom terraced house in a popular location close to local amenities. Offered with no upper chain,...

Ingram Avenue, Bedgrove, Aylesbury

2 Bedroom Maisonette | £240,000

A very well presented two bedroom GROUND FLOOR MAISONETTE situated within walking distance of Jansel Square shopping par...

George David & Co (Aylesbury)

Aylesbury, Buckinghamshire, HP20 1SE

01296 393393

How much is your home worth?

Use our short form to request a valuation of your property.

Request a Valuation

Mortgage Calculator

Amount Borrowed: £
Total Amount Repayable: £
Total Monthly Payment: £
©2026 The Guild of Property Professionals. All rights reserved. Terms and Conditions | Privacy Policy | Cookie Policy | Complaints Policy | Members Login
The Guild of Property Professionals Trading Address: 121 Park Lane, London W1K 7AG. GPEA Limited. Registered in England & Wales.  Company No: 02819824.  Registered Office Address: 2 St. Stephen's Court, St. Stephen's Road, Bournemouth, Dorset, England, BH2 6LA.  VAT Registration No: 576 8795 61
Book a Property Valuation Update Cookies Preferences