Stag Row, Shabbington, HP18

£550,000

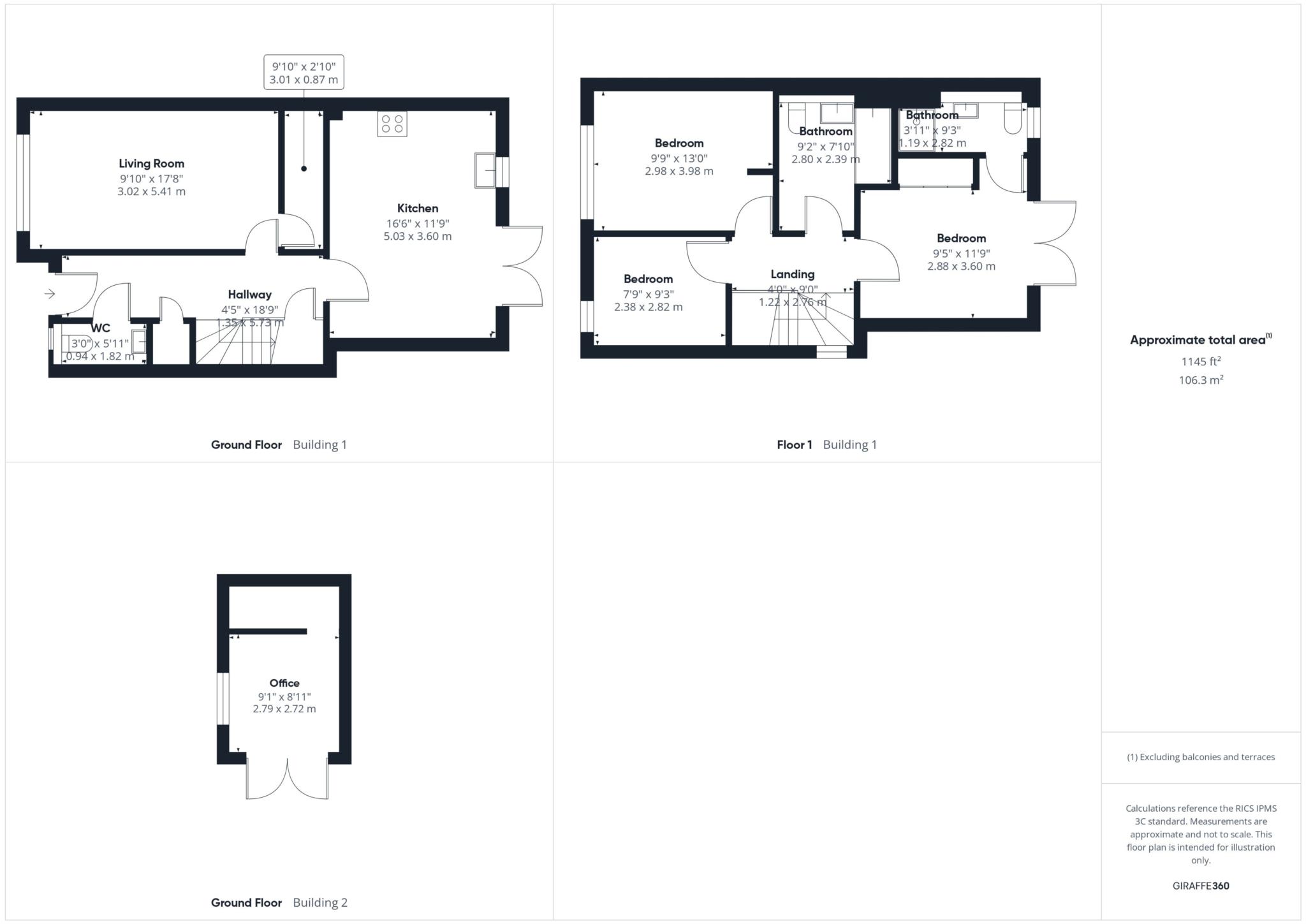
3 Bedroom Semi-Detached House for sale in Aylesbury

1 3 3
  • BUCKINGHAMSHIRE VILLAGE LOCATION
  • THREE BEDROOMS
  • OPEN PLAN LIVING
  • FARM VIEWS
  • REMAINDER OF NHBC WARRANTY
  • ADDITIONAL SUMMER HOUSE IN GARDEN

A stunning thred bedroom semi-detached family home, constructed in 2021 and forming part of an exclusive development of just eight properties, discreetly positioned on a private road in the heart of the desirable Buckinghamshire village of Shabbington. Finished to a high standard throughout, the property enjoys far reaching views over open farmland and represents an exceptional opportunity for those seeking modern living within a traditional village setting.

The home further benefits from the remainder of a 10 year NHBC warranty, providing peace of mind for the new owners.


The ground floor is approached via a welcoming entrance hallway with cloakroom and generous built-in storage. A spacious sitting room is situated to the front, with the addition of a bespoke utility area created by the current owners. To the rear, the impressive kitchen/dining room provides a superb family and entertaining space, benefiting from French doors opening directly to the garden.



On the first floor, the principal bedroom is a particular feature, complete with Juliette balcony overlooking the garden, en suite shower room and fitted storage. A further double bedroom, a well proportioned single bedroom (ideal as a study or nursery), and a contemporary family bathroom complete the first floor.



Outside
To the rear, the property enjoys a private, enclosed garden, laid principally to lawn with a useful garden room, ideal as a home office, studio or additional storage. To the front there are two allocated parking spaces together with ample visitor parking.



The property is served by an energy-efficient electric air source heat pump, providing underfloor heating to the ground floor and radiators to the first floor. This eco-friendly system ensures year-round comfort with reduced environmental impact and lower running costs compared to traditional heating methods.

Shabbington is a highly sought after Buckinghamshire village, offering a traditional rural atmosphere whilst being ideally situated for modern family life and commuting. The village itself boasts a welcoming community, a popular gastro pub, and delightful countryside walks.

Excellent transport connections are close at hand, with the M40 (Junction 8A) providing swift access to Oxford, London and the Midlands. For rail links, Haddenham & Thame Parkway station is approximately 5 miles away, offering regular direct services to London Marylebone in under 40 minutes. A range of amenities, schooling and shopping facilities can be found in nearby Thame, whilst the historic city of Oxford is within easy reach.



This property presents a rare opportunity to acquire a beautifully presented home in a private and exclusive development, combining the very best of contemporary living with the charm of village life.

Flood risk (according to Gov.uk website) :
Surface water: Very low risk.
Rivers and sea: Very low risk.
Groundwater flooding unlikely in this area.
Reservoirs: Flooding from reservoirs is unlikely in this area..
Covenants: No.
Broadband: Superfast 80 Mbps download and 20 Mbps upload available.
See Ofcom checker for more details.


Notice
Please note we have not tested any apparatus, fixtures, fittings, or services. Interested parties must undertake their own investigation into the working order of these items. All measurements are approximate and photographs provided for guidance only.

Council Tax
Buckinghamshire Council, Band D

Service Charge
£50.00 Yearly

Utilities
Electric: Mains Supply
Gas: None
Water: Mains Supply
Sewerage: Private Supply
Broadband: Cable
Telephone: Landline

Other Items
Heating: Electric Storage Heaters
Garden/Outside Space: Yes
Parking: Yes
Garage: No

Important Information

  • This is a Freehold property.

Property Ref: 4968_10000034

Share:

Similar Properties

Hayloft, Townside, Haddenham

2 Bedroom Semi-Detached House | £550,000

*** TWO BEDROOM COTTAGE, CONTAINING A UNIQUE BLEND OF HISTORIC CHARACTER & MODERN LIVING***

Hayloft, Townside, Haddenham

2 Bedroom Semi-Detached House | £550,000

*** TWO BEDROOM COTTAGE, CONTAINING A UNIQUE BLEND OF HISTORIC CHARACTER & MODERN LIVING***

Thame Road

4 Bedroom Semi-Detached House | Guide Price £550,000

*** FOUR BEDROOM FAMILY HOME, WALKING DISTANCE TO THE STATION , NO CHAIN & AMPLE PARKING***

Cricketers Way, Haddenham

3 Bedroom Detached House | £575,000

*** Three Bedroom Detached Family Home ***

Hedgehog Way, Haddenham

3 Bedroom Detached House | £585,000

*** Three Bedroom Detached, Ex Show-Home Available ***

Willis Road, Haddenham

5 Bedroom Detached House | Offers in excess of £650,000

****FIVE BEDROOM FAMILY HOME OFFERING AN ABUNDANCE OF SPACE, NATURAL LIGHT AND COMFORT...****

Harpers Estate Agents (Haddenham)

Haddenham, Buckinghamshire, HP17 8EJ

01844 853888

How much is your home worth?

Use our short form to request a valuation of your property.

Request a Valuation

Mortgage Calculator

Amount Borrowed: £
Total Amount Repayable: £
Total Monthly Payment: £
©2025 The Guild of Property Professionals. All rights reserved. Terms and Conditions | Privacy Policy | Cookie Policy | Complaints Policy | Members Login
The Guild of Property Professionals Trading Address: 121 Park Lane, London W1K 7AG. GPEA Limited. Registered in England & Wales.  Company No: 02819824.  Registered Office Address: 2 St. Stephen's Court, St. Stephen's Road, Bournemouth, Dorset, England, BH2 6LA.  VAT Registration No: 576 8795 61
Book a Property Valuation Update Cookies Preferences