Ceely Road, Southcourt, Aylesbury

Guide Price
£375,000
SSTC
This property listing is now SSTC

3 Bedroom End of Terrace House for sale in Aylesbury

2 3 1
  • POPULAR SOUTHSIDE LOCATION
  • THREE BEDROOM HOUSE
  • LARGER THAN AVERAGE GARDEN
  • DRIVEWAY PARKING
  • CLOSE TO SCHOOLS
  • CLOSE TO LOCAL AMENITIES
  • CONSERVATORY
  • BRIGHT DUAL ASPECT LIVING ROOM

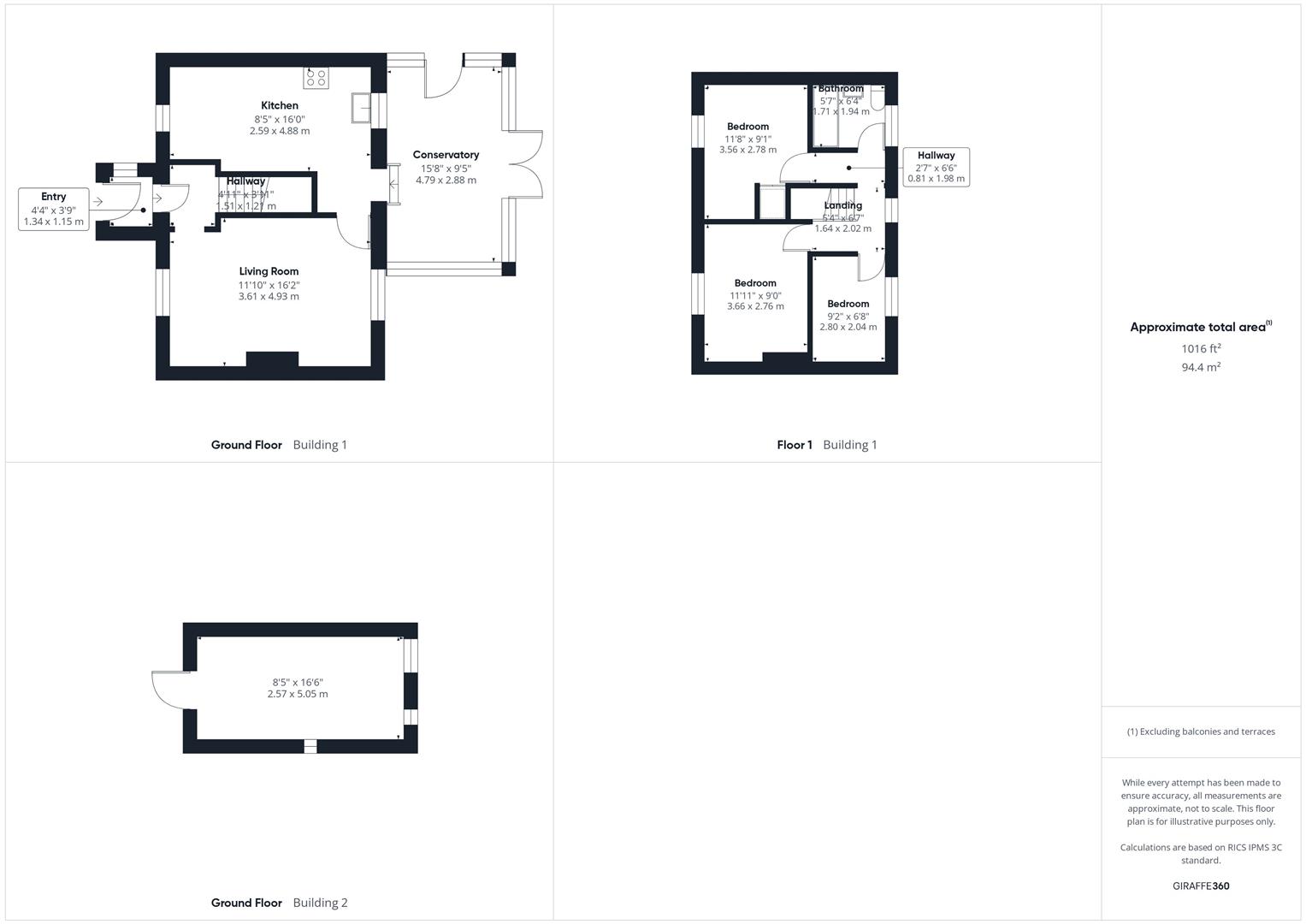
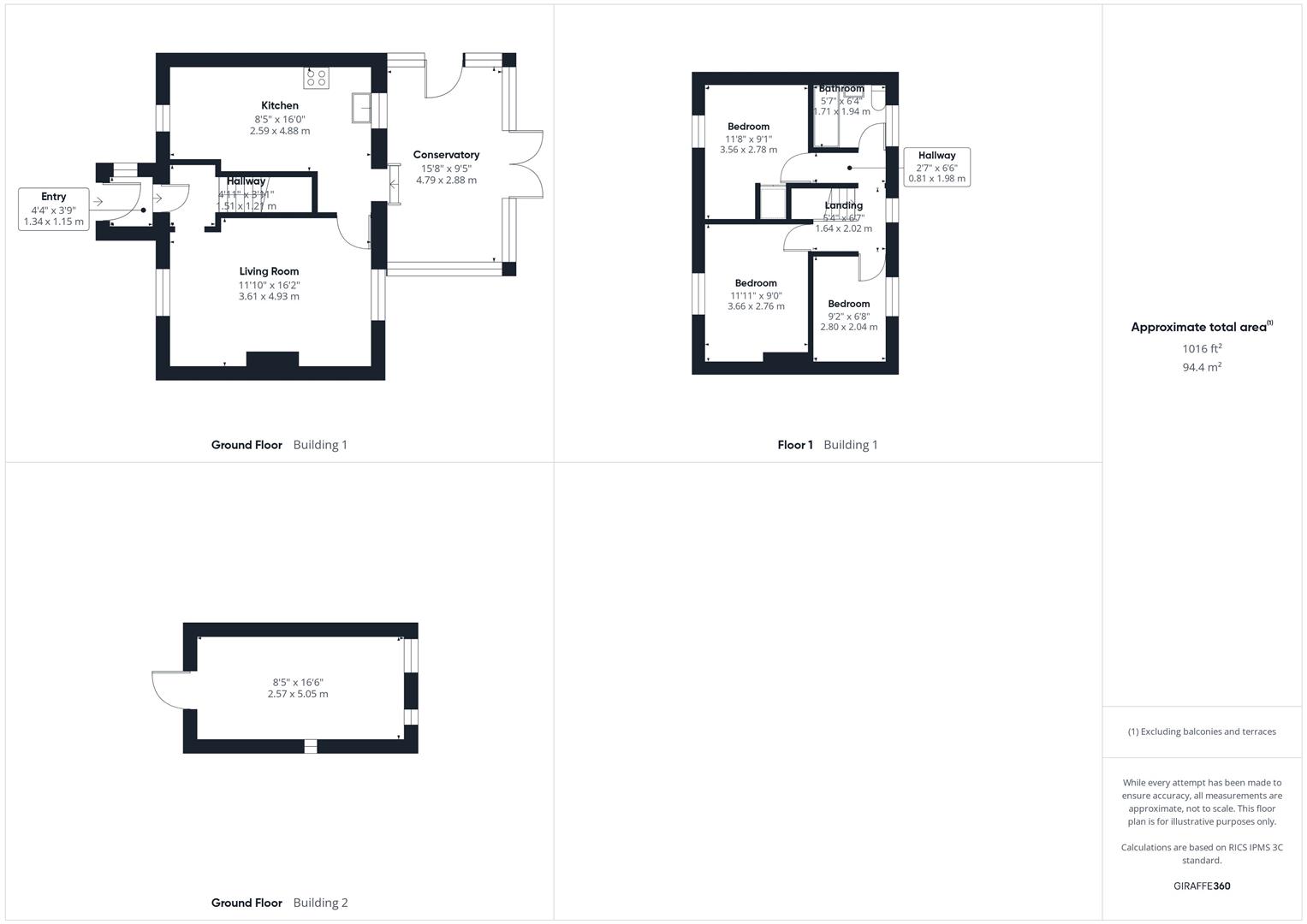
A three bedroom end-terrace house located in a popular southside residential area, ideally situated close to schools and local amenities. The property features a bright living room, modern kitchen, conservatory, three bedrooms and a family bathroom. Externally, it benefits from a larger than average garden and driveway parking, making it an ideal family home.

Location - A family-based estate, very well established with some parts dating back to the 1930's. The area offers shopping facilities in a number of locations within the estate as well as fast food restaurants, religious centres, community halls and regular bus services reaching in and around the town. The new pedestrian bridge by the Railway Station links the heart of the town centre and Southcourt making all amenities very accessible by foot or cycle. There is a primary school and secondary school on the estate and the area forms part of the Aylesbury Grammar school catchment.

Accommodation - Upon entering, you are greeted by an entrance hall that leads through to the principal living areas. The dual-aspect living room is bright and airy, featuring windows to both the front and rear that flood the space with natural light. A stylish electric fireplace serves as a focal point, adding warmth and character to the room.

The kitchen is well-proportioned and offers ample space for freestanding appliances, with plenty of worktop and cupboard space to meet daily needs. Adjoining the kitchen is a delightful conservatory, providing a versatile additional living area and direct access to the garden.

Upstairs, the property has three bedrooms and a family bathroom.

One of the standout features of this property is the larger-than-average rear garden, offering a wonderful outdoor space with an expanse of lawn, mature plants, shrubs, and established trees providing privacy and greenery. There is an outhouse with lighting and power.

To the front, the property benefits from driveway parking, complemented by a lawned area and bordered by a neat fence, adding curb appeal and privacy.

Property Ref: 6584685_33868610

Share:

Similar Properties

Delamere Close, Elmhurst, Aylesbury

3 Bedroom End of Terrace House | £375,000

A well presented three bedroom end-terrace house located in a popular residential area, conveniently close to the town c...

Sandhill Way, Fairford Leys, Aylesbury

3 Bedroom Detached House | Offers in excess of £375,000

A three bedroom detached house located in the popular Fairford Leys development, offered with no upper chain. The proper...

Aplin Road, Bedgrove, Aylesbury

3 Bedroom Semi-Detached House | Offers in excess of £375,000

A three bedroom semi-detached home, situated in the highly sought-after Bedgrove area. The property features a spacious...

Baker Street, Waddesdon, Aylesbury

3 Bedroom Semi-Detached House | £385,000

A well presented three bedroom semi-detached home in the sought-after village of Waddesdon, within walking distance of t...

Bicester Road, Aylesbury, Buckinghamshire

3 Bedroom End of Terrace House | Offers in excess of £385,000

** SOLD BEFORE COMING TO MARKET ** A three bedroom terraced house arranged over three floors, ideally located in a centr...

Prince Rupert Drive, Buckingham Park, Aylesbury

3 Bedroom Semi-Detached House | Offers in excess of £385,000

RECENTLY REDECORATED - NO UPPER CHAIN - GARAGE AND PARKING - TWO EN-SUITES PLUS MAIN BATHROOM - THREE/BEDROOMS - Located...

George David & Co (Aylesbury)

Aylesbury, Buckinghamshire, HP20 1SE

01296 393393

How much is your home worth?

Use our short form to request a valuation of your property.

Request a Valuation

Mortgage Calculator

Amount Borrowed: £
Total Amount Repayable: £
Total Monthly Payment: £
©2025 The Guild of Property Professionals. All rights reserved. Terms and Conditions | Privacy Policy | Cookie Policy | Complaints Policy | Members Login
The Guild of Property Professionals Trading Address: 121 Park Lane, London W1K 7AG. GPEA Limited. Registered in England & Wales.  Company No: 02819824.  Registered Office Address: 2 St. Stephen's Court, St. Stephen's Road, Bournemouth, Dorset, England, BH2 6LA.  VAT Registration No: 576 8795 61
Book a Property Valuation Update Cookies Preferences