Oxford Road, Stone, Aylesbury

£750,000

3 Bedroom Detached Bungalow for sale in Aylesbury

2 3 3
  • STONE VILLAGE
  • NO UPPER CHAIN
  • THREE BEDROOM DETACHED BUNGALOW
  • LARGE DRIVEWAY WITH GARAGE
  • MULTIPLE RECEPTION ROOMS
  • KITCHEN/DINER
  • BI FOLDING DOORS TO GARDEN
  • WET ROOM, EN SUITE AND CLOAKROOM

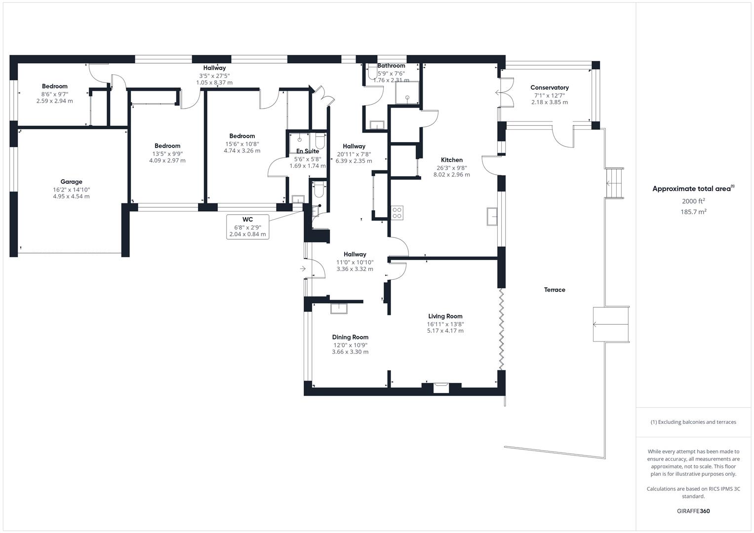
Spacious three bedroom detached bungalow located in the desirable village of Stone. Offered with no upper chain, this property features multiple reception rooms, a kitchen/diner, three bedrooms with en suite to the master, wet room, cloakroom and a generous garden. Benefits include a large driveway, garage, and a peaceful village setting-ideal for those seeking single-level living with ample space both inside and out.

Location - Stone is situated to the south west of Aylesbury and has good transport links by road to the M40 and by rail into London Marylebone at nearby stations in Aylesbury and Haddenham. Stone has a well-regarded combined Church of England School and amenities in the village including a convenience store, petrol station, Indian restaurant and local pub. The village is surrounded by open countryside with many opportunities for dog walking.

Accommodation - Upon entering the bungalow, you're welcomed into a generously sized hallway featuring multiple built-in storage cupboards, providing plenty of space to keep the home neat and organised.

The living accommodation includes a bright and airy dining room, perfect for entertaining, and a spacious living room with bi-fold doors opening directly onto the rear garden, seamlessly blending indoor and outdoor living.

The kitchen/diner is well-equipped with an inset gas hob, oven and splashback, with ample space for appliances. A dining area within the kitchen includes additional built-in storage cupboards, making it both practical and welcoming for everyday family meals.

A charming conservatory adds further living space and offers lovely views of the garden, ideal as a sitting room or home office.

The property comprises three well-proportioned bedrooms, all of which benefit from built-in wardrobes, providing ample storage solutions. The main bedroom has an en suite shower room.

A wet room offers easy-access shower facilities, while a cloakroom adds further convenience for family living.

Externally, the bungalow boasts an attractive rear garden with a large patio area, lawn, and well-established trees and shrubs, creating a peaceful and private outdoor space. The front garden is equally generous, featuring a combination of lawn, gravelled and patio areas, along with a large driveway offering off-street parking for multiple vehicles and access to a garage.

Property Ref: 6584685_33932349

Share:

Similar Properties

Bicester Road, Aylesbury, Buckinghamshire

4 Bedroom Detached House | £695,000

Fully renovated and extended 1930s detached home set on a generous plot approaching 250ft. Featuring four double bedroom...

Marston Gate, Kingsbrook, Buckinghamshire

4 Bedroom Detached House | £685,000

An impressive four bedroom detached family home located in the sought-after Kingsbrook development. This spacious proper...

Clayfield Road, Weston Turville, Aylesbury

5 Bedroom Detached House | Offers in excess of £675,000

A spacious five bedroom detached family home situated in the sought after village of Weston Turville. The property offer...

Bishops Meadow, Bierton, Aylesbury

5 Bedroom Detached House | £795,000

An impressive, fully 4/5 bed detached family home situated in a CUL-DE-SAC location in the sought after village of BIERT...

Lower Street, Quainton, Aylesbury

5 Bedroom Detached House | Guide Price £850,000

A brand new five bedroom detached home in the sought-after village of Quainton, within the desirable Waddesdon school ca...

Lower Street, Quainton, Aylesbury

5 Bedroom Detached House | Guide Price £850,000

A brand new five bedroom detached home in the highly sought-after village of Quainton, within the desirable Waddesdon sc...

George David & Co (Aylesbury)

Aylesbury, Buckinghamshire, HP20 1SE

01296 393393

How much is your home worth?

Use our short form to request a valuation of your property.

Request a Valuation

Mortgage Calculator

Amount Borrowed: £
Total Amount Repayable: £
Total Monthly Payment: £
©2025 The Guild of Property Professionals. All rights reserved. Terms and Conditions | Privacy Policy | Cookie Policy | Complaints Policy | Members Login
The Guild of Property Professionals Trading Address: 121 Park Lane, London W1K 7AG. GPEA Limited. Registered in England & Wales.  Company No: 02819824.  Registered Office Address: 2 St. Stephen's Court, St. Stephen's Road, Bournemouth, Dorset, England, BH2 6LA.  VAT Registration No: 576 8795 61
Book a Property Valuation Update Cookies Preferences