Cuddington Court, The Green

£1,150,000

5 Bedroom Detached House for sale in Aylesbury

3 5 2

A rare opportunity to purchase a recently renovated 5 bedroom barn conversion, finished to an exceptional standard and set within an exclusive development of just four bespoke barn conversions. This outstanding home effortlessly blends luxurious modern living with timeless rural character, offering the perfect balance of style, comfort, and practicality in a sought after village setting.

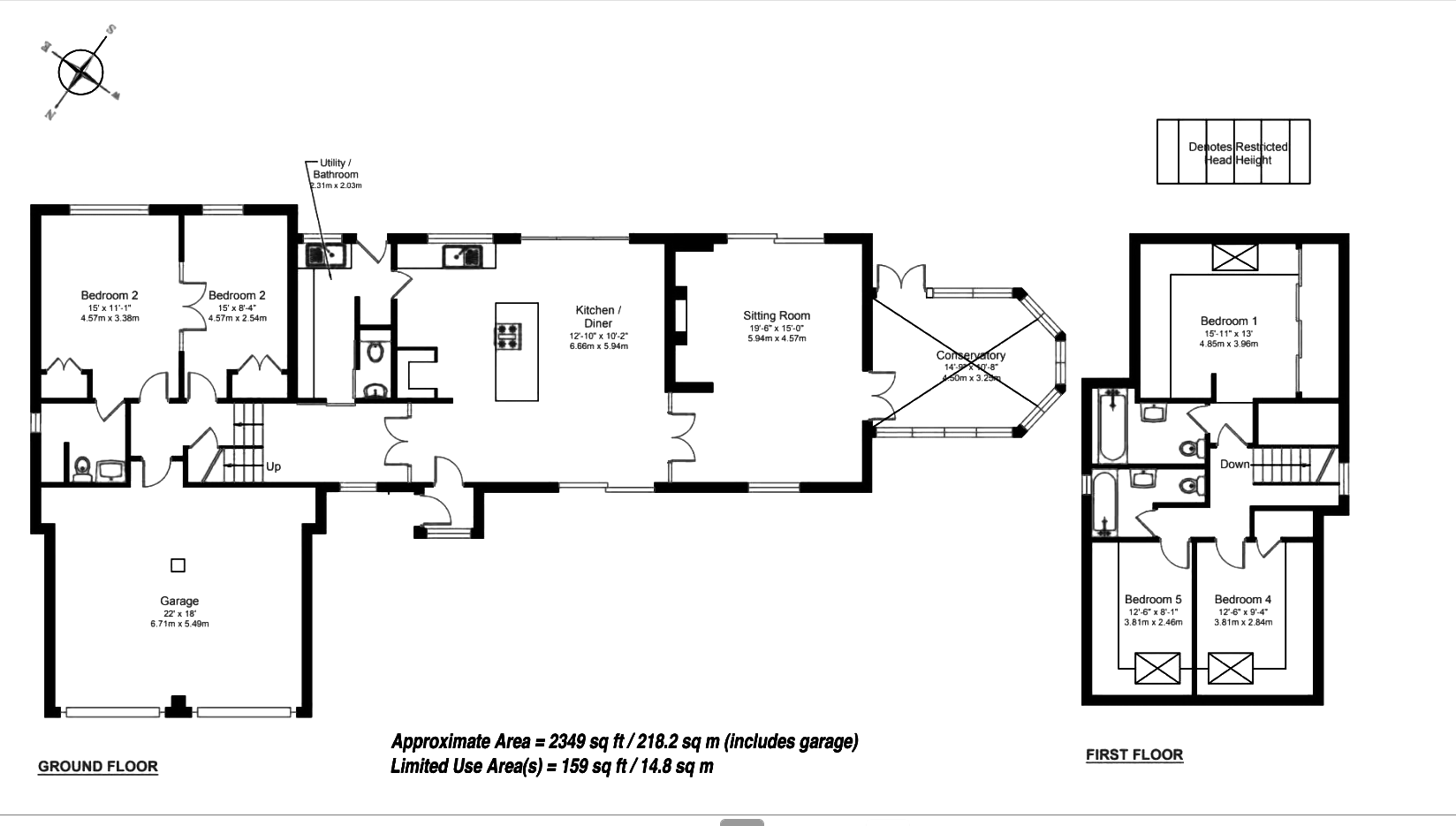
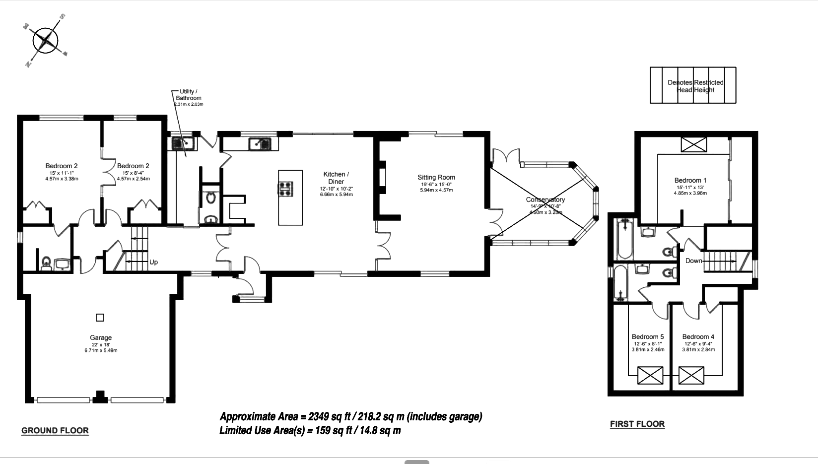
The property has been fully refurbished throughout, featuring beautiful oak flooring and showcasing its original beams and timbers. Upon entering through a welcoming porch, you`re greeted by a stunning open plan kitchen and dining area with a Mediterranean feel. The bespoke kitchen includes a micro-cement island and counter tops, complemented by a bifolding window behind the butler`s sink, seamlessly connecting the indoors to the garden. Large sliding doors open directly onto the terrace, creating a wonderful flow for indoor-outdoor living and entertaining.

Steel framed glazed doors lead into the inviting living room, where the impressive inglenook fireplace forms the heart of the space perfect for cosy evenings. Beyond, a bright and airy conservatory offers a peaceful spot to relax while overlooking the garden.

Behind the kitchen lies a beautifully designed wooden-clad utility and boot room, complete with garden access, a downstairs WC, utility sink, plumbing for a washing machine and tumble dryer, and ample storage space.

The main bedroom is conveniently located on the ground floor and benefits from a stylish recently refurbished en suite. A second bedroom is currently used as a dressing room but could easily serve as a nursery or be reinstated as a fifth bedroom.

Upstairs, there are three generous double bedrooms. One benefits from its own en suite, while the remaining two share a well appointed family bathroom. The first floor also includes extensive loft storage running the full width of the barn.

Externally, the property occupies a generous corner plot extending to approximately 0.3 acres. The wraparound garden enjoys a sunny southerly aspect and offers a high degree of privacy, with mature trees, shrubs, and two lawned areas. Thoughtfully landscaped for outdoor living, the garden features a covered terrace ideal for al fresco dining, a dedicated barbecue patio, and a raised covered upper deck, the perfect spot to take in the evening sunsets and the distant views towards the hills of Upper Winchendon.

To the front, there are two private parking spaces as well as an integral double garage with power, lighting, and internal access to the hallway. The property also benefits from a new external oil-fired combi boiler fitted in 2023, PV solar panels, and an electric car charging point. Additional touches include an external hot and cold water tap in the rear garden and outdoor power outlets for convenient use around the driveway and garden.

This exceptional home combines character, craftsmanship, and contemporary convenience, a truly rare find in an exclusive rural setting.

Location:

Cuddington is an award-winning village renowned for its beauty, heritage, and strong community spirit home to around 550 residents and a multiple winner of the Best Kept Village Award. Nestled amidst rolling Buckinghamshire countryside, the village combines idyllic rural living with easy access to nearby towns and transport links.

Footpaths lead in four directions directly from the property, offering a variety of scenic circular walks through open fields and along the River Thame just a 20-minute stroll away via a picturesque track and footbridge.

The village offers an excellent range of local amenities within easy walking distance, including The Crown, a popular village pub, a well stocked Village Store, St Nicholas Church, and the Village Hall, all less than five minutes away.

For leisure, the playing fields, children`s playground, and tennis club are within a 10-minute walk.

For families, Cuddington and Dinton C of E School is just a five-minute walk across the field and over a small stream to the infant site, with a school bus serving the junior site in nearby Dinton. The property also falls within the highly sought-after Aylesbury Grammar School catchment area.

Excellent transport links include Thame & Haddenham Parkway Station, just a 5-minute drive away, offering direct services to London Marylebone in under 40 minutes. The market town of Thame is a 7-minute drive, while Aylesbury lies only 10 minutes away, providing extensive shopping, dining, and recreational facilities.

With its rare combination of countryside tranquillity, village charm, and modern convenience, this exceptional barn conversion in Cuddington offers an outstanding lifestyle opportunity.

Additional information
EPC rating F
Flood risk (according to Gov.uk website)
Surface water - Very low
Rivers and the sea Very low
Flooding from groundwater is unlikely in this area.
Flooding from reservoirs is unlikely in this area.
Covenants: The vendor has not made us aware of any known covenants nor restrictions relating to the property.
Broadband type: Cable (fibre)
Standard - Highest Download 12 Mbps Highest Upload 1 Mbps
Superfast Highest Download 71mbps Highest Upload 18 Mbps
Ultrafast - Highest Download 1800 Mbps Highest Upload 220 Mbps
Networks in your area: Openreach
See Ofcom checker for more details

Notice
Please note we have not tested any apparatus, fixtures, fittings, or services. Interested parties must undertake their own investigation into the working order of these items. All measurements are approximate and photographs provided for guidance only.

Council Tax
Buckinghamshire Council, Band G

Utilities
Electric: Unknown
Gas: Unknown
Water: Unknown
Sewerage: Unknown
Broadband: Unknown
Telephone: Unknown

Other Items
Heating: Oil Central Heating
Garden/Outside Space: Yes
Parking: Yes
Garage: Yes

Important Information

  • This is a Freehold property.

Property Ref: 1337

Share:

Similar Properties

Lower Road, Hardwick

5 Bedroom Detached House | Offers in region of £1,150,000

Balebeck is an impressive five bedroom detached house, situated in the peaceful village of Hardwick, offering a serene r...

Perivale, Nightingale Road, Wendover

6 Bedroom Semi-Detached House | Offers in excess of £1,150,000

An attractive Edwardian residence offering exceptional family living in a peaceful no through road setting near the vill...

Bushmead Road, Whitchurch

4 Bedroom Detached House | Offers in excess of £1,000,000

**VIEWINGS FROM SATURDAY 2nd MAY STRICTLY BY APPOINTMENT ONLY** An exciting opportunity to acquire this beautifully pres...

Brook House, Tring Road, Wendover

4 Bedroom Semi-Detached House | £1,250,000

**VIRTUAL TOUR AVAILABLE** An elegant and spacious individual property, situated in the very heart of Wendover is one of...

Biggs Lane, Dinton

5 Bedroom Detached House | £1,250,000

A quintessential Grade II listed thatched cottage of exceptional charm, offering five beautifully appointed bedrooms, a...

Dobbins Lane, Wendover

5 Bedroom Detached House | £1,300,000

A superb opportunity to acquire this well presented five bedroom detached family home, situated on an excellent plot in...

Harpers Estate Agents (Wendover)

Wendover, Buckinghamshire, HP22 6EA

01296 625100

How much is your home worth?

Use our short form to request a valuation of your property.

Request a Valuation

Mortgage Calculator

Amount Borrowed: £
Total Amount Repayable: £
Total Monthly Payment: £
©2026 The Guild of Property Professionals. All rights reserved. Terms and Conditions | Privacy Policy | Cookie Policy | Complaints Policy | Members Login
The Guild of Property Professionals Trading Address: 121 Park Lane, London W1K 7AG. GPEA Limited. Registered in England & Wales.  Company No: 02819824.  Registered Office Address: 2 St. Stephen's Court, St. Stephen's Road, Bournemouth, Dorset, England, BH2 6LA.  VAT Registration No: 576 8795 61
Book a Property Valuation Update Cookies Preferences