Buckingham Road, Aylesbury, Buckinghamshire

£325,000

2 Bedroom Semi-Detached House for sale in Aylesbury

2 2 1
  • TWO BEDROOM SEMI-DETACHED HOUSE
  • CENTRAL LOCATION
  • WALKING DISTANCE OF TOWN CENTRE & STATION
  • GOOD-SIZED REAR GARDEN
  • LIVING ROOM AND SEPARATE DINING ROOM
  • FAMILY BATHROOM
  • IDEAL FOR FIRST-TIME BUYERS, SMALL FAMILIES OR COMMUTERS
  • TWO DOUBLE BEDROOMS

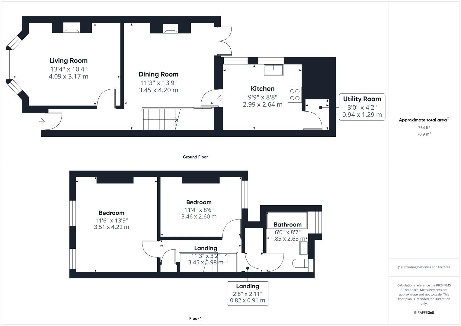
A charming two bedroom semi-detached house set in a central location, within easy walking distance of the town centre and train station. The property features a living room, separate dining room, kitchen and a useful utility area. Upstairs offers two double bedrooms and a bathroom. Outside, there is a good-sized rear garden, ideal for outdoor entertaining or family use. This home combines convenience with comfortable living - perfect for professionals, small families or commuters.

Location - Aylesbury town centre is within walking distance, with an excellent range of shopping and recreational facilities, numerous restaurants and a main line rail station (Marylebone 1 hour). Aylesbury is particularly well served by three of the area's top performing Grammar Schools- Aylesbury Grammar School for boys, High School for Girls and Sir Henry Floyd (mixed). Inspired by the rolling Chiltern Hills, the Aylesbury Waterside Theatre provides an entertaining evening out at the heart of the Canalside and beautiful outdoor purpose-built restaurant and entertainment. Short walking distance to Aquavale swimming & fitness centre, Tesco superstore & the mainline line rail station (Marylebone 1 hour) & there is good access by road onto the A41 leading towards London/M25.

Accommodation - Upon entering the property, you are greeted by an entrance hall leading into the living room featuring a bay window that fills the space with natural light and a feature fireplace that creates a warm and inviting focal point.

The bright dining room offers ample space for family meals and entertaining, complete with stairs leading to the first floor, under-stairs storage cupboards and French doors opening onto the garden.

The kitchen has plenty of workspace and storage, offering space for a fridge, cooker and dishwasher, while a separate utility cupboard provides additional convenience with space for a washing machine.

Upstairs, the first-floor landing provides loft access and built-in cupboards for extra storage. There are two double bedrooms, both offering comfortable accommodation, and a family bathroom fitted with a bathtub with shower, WC and wash basin.

Outside, the property boasts a good-sized rear garden featuring a patio area, lawn, and a decking area ideal for outdoor dining and relaxation. The garden also includes a shed and is bordered by fencing and mature hedges, providing a good degree of privacy.

This charming home combines character features with modern practicality, offering an excellent opportunity for first-time buyers, small families or anyone looking to live close to the heart of town.

Property Ref: 6584685_34252382

Share:

Similar Properties

Willow Road, Aylesbury, Buckinghamshire

3 Bedroom Terraced House | £325,000

A three bedroom end terraced house set within walking distance to Aylesbury Train Station and the town centre. Offered c...

Albion Street, Aylesbury, Buckinghamshire

2 Bedroom Terraced House | £325,000

This charming home is ideally situated within walking distance of the town centre, train station and local amenities. Th...

Park Street, Aylesbury, Buckinghamshire

3 Bedroom End of Terrace House | £325,000

This three bedroom end-terrace house offers a spacious rear garden, fitted kitchen with utility and both a living room a...

Highbridge Walk, Aylesbury, Buckinghamshire

2 Bedroom Terraced House | £335,000

A well presented two bedroom terraced house in a central location, conveniently close to the town centre and grammar sch...

Windmill Close, Fairford Leys, Aylesbury

3 Bedroom End of Terrace House | Offers in excess of £340,000

This three bedroom end-of-terrace house, located in the popular Fairford Leys development, offers a comfortable and conv...

Hulcombe Walk, Elmhurst, Aylesbury

3 Bedroom Semi-Detached House | Offers in excess of £340,000

A well presented three bedroom semi-detached house situated in a popular residential location close to the town centre,...

George David & Co (Aylesbury)

Aylesbury, Buckinghamshire, HP20 1SE

01296 393393

How much is your home worth?

Use our short form to request a valuation of your property.

Request a Valuation

Mortgage Calculator

Amount Borrowed: £
Total Amount Repayable: £
Total Monthly Payment: £
©2025 The Guild of Property Professionals. All rights reserved. Terms and Conditions | Privacy Policy | Cookie Policy | Complaints Policy | Members Login
The Guild of Property Professionals Trading Address: 121 Park Lane, London W1K 7AG. GPEA Limited. Registered in England & Wales.  Company No: 02819824.  Registered Office Address: 2 St. Stephen's Court, St. Stephen's Road, Bournemouth, Dorset, England, BH2 6LA.  VAT Registration No: 576 8795 61
Book a Property Valuation Update Cookies Preferences