Grecian Street, Aylesbury, Buckinghamshire

Offers in excess of
£270,000

2 Bedroom Terraced House for sale in Aylesbury

1 2 1
  • CENTRAL LOCATION
  • TWO BEDROOM TERRACED HOUSE
  • OFFERED WITH NO UPPER CHAIN
  • SPACIOUS LOUNGE/DINER WITH BRICK BUILT FIREPLACE
  • CLOAKROOM WITH UTILITY SPACE
  • CLOSE TO AYLESBURY GRAMMAR SCHOOL
  • REFITTED KITCHEN
  • LOFT FULLY BOARDED

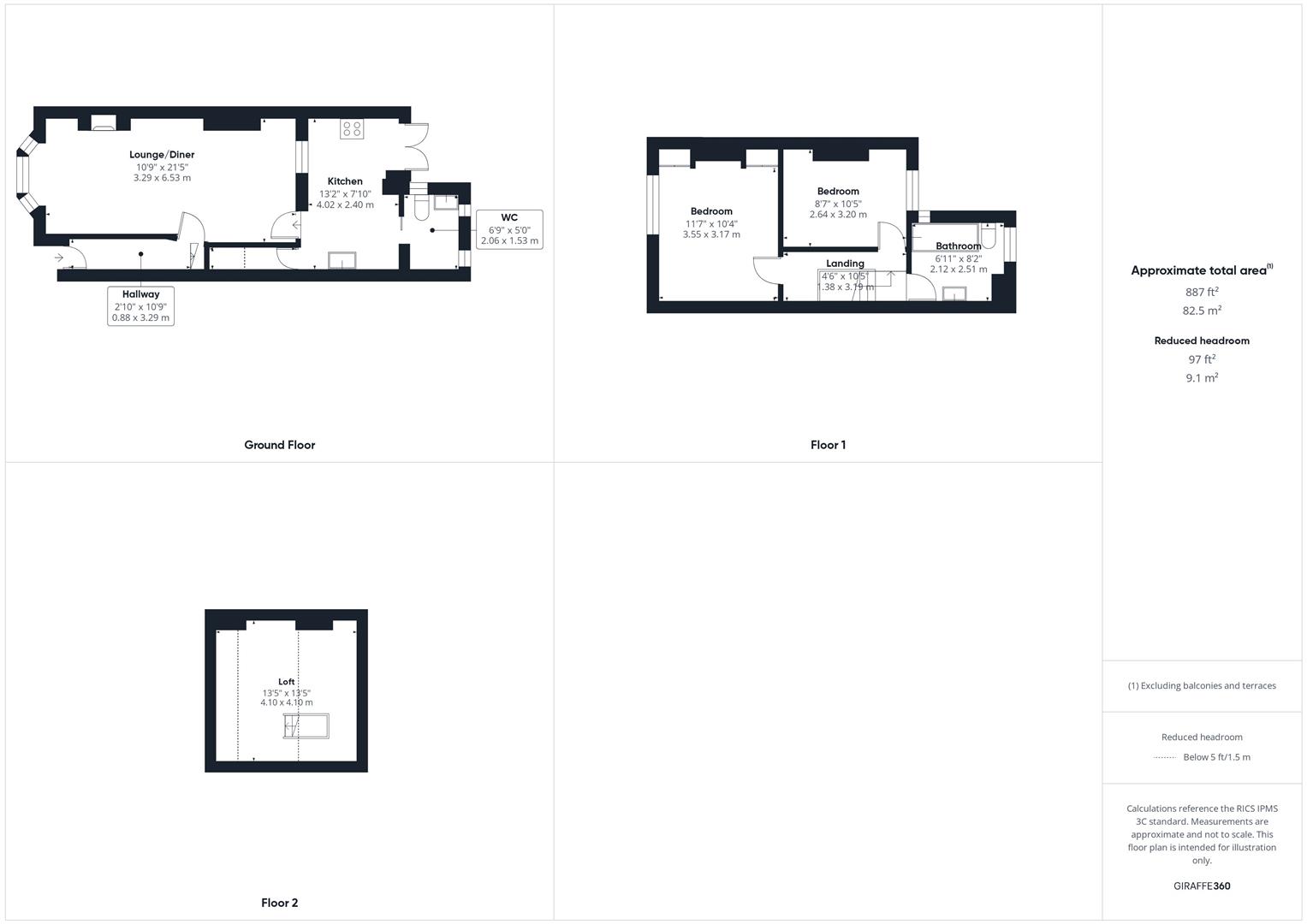
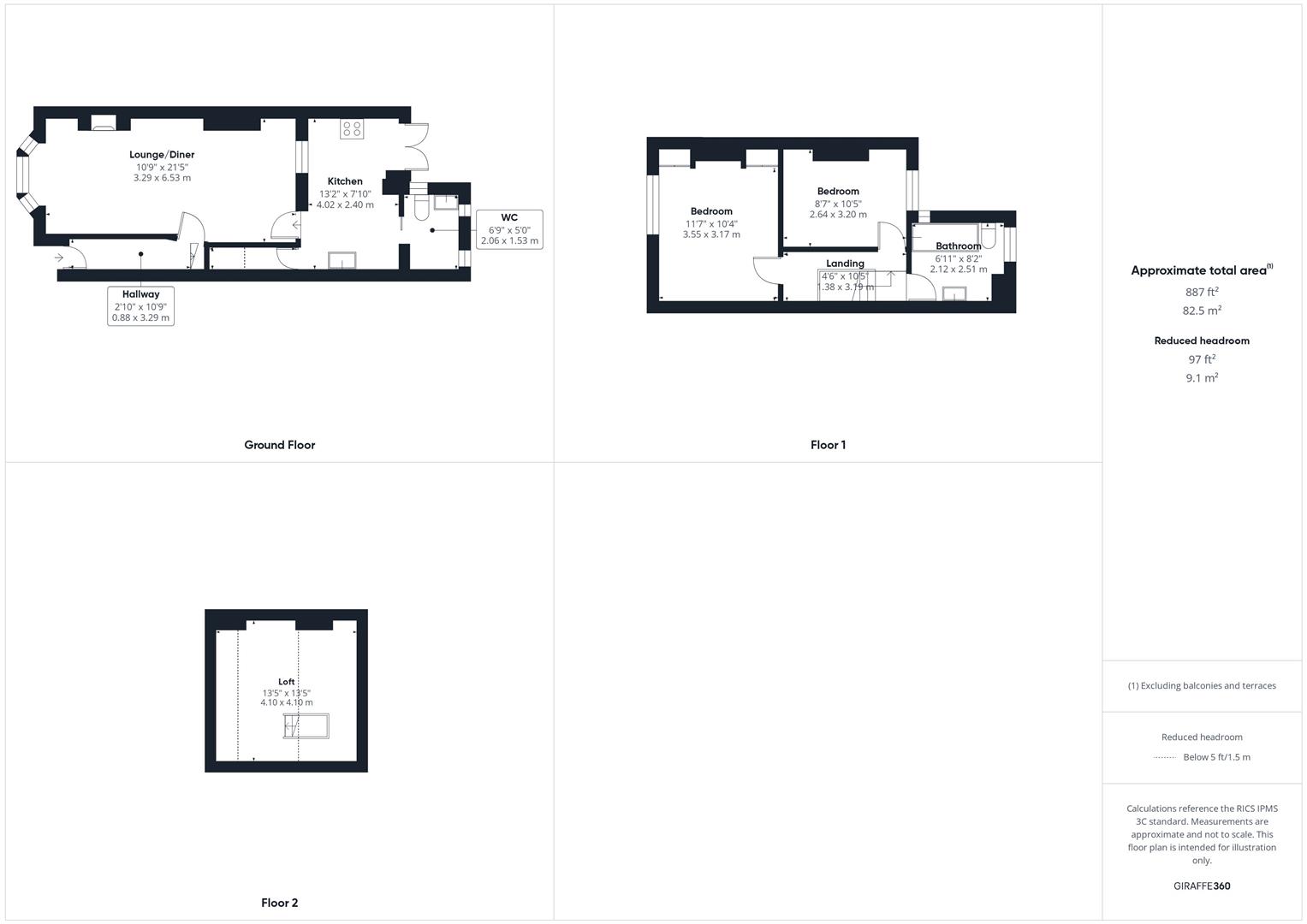
A two bedroom mid terrace house set in a central location within walking distance to town, local amenities and Aylesbury Grammar School. The property offers a spacious lounge/diner, refitted kitchen, cloakroom with utility space, two bedrooms, bathroom and garden.

Location - Aylesbury town centre is within walking distance, with an excellent range of shopping and recreational facilities, numerous restaurants and a main line rail station (Marylebone 1 hour). Aylesbury is particularly well served by three of the area's top performing Grammar Schools- Aylesbury Grammar School for boys, High School for Girls and Sir Henry Floyd (mixed). Inspired by the rolling Chiltern Hills, the Aylesbury Waterside Theatre provides an entertaining evening out at the heart of the Canalside and beautiful outdoor purpose-built restaurant and entertainment. Short walking distance to Aquavale swimming & fitness centre, Tesco superstore & the mainline line rail station (Marylebone 1 hour) & there is good access by road onto the A41 leading towards London/M25.

Accommodation - The property is ideally situated close to the town centre, local amenities, and the highly regarded Aylesbury Grammar School, making it an excellent choice for first-time buyers, small families or investors. Offered with no upper chain, this home is ready for immediate occupation.

Upon entering, you are greeted by a welcoming entrance hall with stairs to the first floor, leading into a spacious lounge/diner featuring a beautiful brick-built fireplace with a log burner, creating a warm and inviting focal point.

The refitted kitchen is well appointed with an inset gas hob, oven and extractor fan, along with space for a fridge and a convenient breakfast bar. A door provides direct access to the rear garden.

A cloakroom with utility space offers additional practicality, with plumbing and space for both a washing machine and tumble dryer.

Upstairs, the property offers two well proportioned bedrooms and a family bathroom. There is also loft access, with the loft being fully boarded, providing useful storage or potential for further development (subject to planning).

Outside, the rear garden enjoys a patio area leading onto a lawned area bordered by fencing.

Property Ref: 34218588

Share:

Similar Properties

Albert Street, Aylesbury, Buckinghamshire

2 Bedroom Terraced House | £270,000

A two bedroom terraced home ideally situated in a central location, within easy walking distance of the town centre and...

Whaddon Chase, Aylesbury, Buckinghamshire

3 Bedroom Maisonette | Offers in excess of £250,000

A well presented three bedroom first-floor maisonette ideally located close to the town centre, schools and train statio...

Baker Street, Waddesdon, Aylesbury

2 Bedroom End of Terrace House | Offers in excess of £250,000

WADDESDON VILLAGE - FREEHOLD CHARACTER HOME - NO UPPPER CHAIN. A fantastic opportunity to purchase a two bedroom home in...

Waivers Way, Elm Farm, Aylesbury

2 Bedroom Terraced House | Guide Price £285,000

A two bedroom terraced house in the popular Elm Farm area, offered with no upper chain. Ideally located close to local s...

Wedgewood Street, Fairford Leys, Aylesbury

2 Bedroom Terraced House | £285,000

A two bedroom terraced house located in the popular FAIRFORD LEYS development. The property benefits from: GARAGE AND DR...

Fairford Leys Way, Fairford Leys, Aylesbury

2 Bedroom End of Terrace House | Offers in excess of £300,000

A well presented two bedroom end-of-terrace house located on the popular Fairford Leys development. The property feature...

George David & Co (Aylesbury)

Aylesbury, Buckinghamshire, HP20 1SE

01296 393393

How much is your home worth?

Use our short form to request a valuation of your property.

Request a Valuation

Mortgage Calculator

Amount Borrowed: £
Total Amount Repayable: £
Total Monthly Payment: £
©2026 The Guild of Property Professionals. All rights reserved. Terms and Conditions | Privacy Policy | Cookie Policy | Complaints Policy | Members Login
The Guild of Property Professionals Trading Address: 121 Park Lane, London W1K 7AG. GPEA Limited. Registered in England & Wales.  Company No: 02819824.  Registered Office Address: 2 St. Stephen's Court, St. Stephen's Road, Bournemouth, Dorset, England, BH2 6LA.  VAT Registration No: 576 8795 61
Book a Property Valuation Update Cookies Preferences