Chalmers Avenue, Ayr, KA7

Offers Over
£180,000
SSTC
This property listing is now SSTC

3 Bedroom Semi-Detached House for sale in Ayrshire

1 3 1
  • Rarely available three bedroom semi detached villa
  • Situated within a desirable residential area in Ayr
  • Direct access from kitchen to rear garden
  • Three generous double bedrooms
  • Ample off street parking for several vehicles
  • Easy access to railway stations and Prestwick International Airport

Property Matters Online are delighted to bring to the market this rarely available three-bedroom semi-detached villa, ideally positioned within a highly desirable residential area in the sought after coastal town of Ayr.

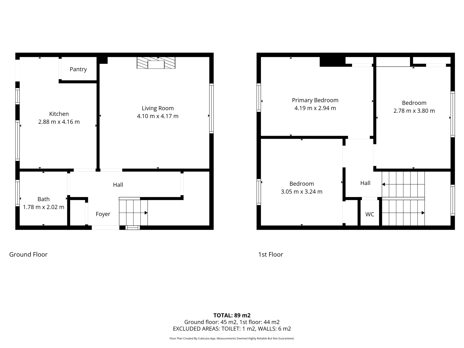
This impressive home offers spacious and well-proportioned family accommodation arranged over two levels. On entering, a welcoming reception hallway provides access to two useful storage cupboards. The bright front facing lounge features a charming traditional alcove, creating a warm and inviting living space. The family bathroom is fitted with a three-piece suite comprising WC, wash hand basin and bath with overhead shower.

The modern fitted kitchen is well equipped with an extensive range of base and wall mounted units, complemented by coordinated worktops and splashback areas. A generous pantry cupboard provides additional storage, and a door from the kitchen leads directly to the rear garden, ideal for everyday family living and entertaining alike.

The upper-level hosts three generously sized double bedrooms, all benefiting from built in storage. A convenient WC completes the accommodation on this floor.

Externally, the property boasts a substantial monobloc driveway to the front, offering ample off-street parking for several vehicles. The rear garden has been designed for ease of maintenance, with paved and chipped areas, a mature shrub border and a garden shed providing further storage.

Locality

Ayr is Ayrshire’s principal town and offers an excellent range of high street shops, supermarkets, leisure facilities and professional services. The area is home to a number of well-regarded restaurants, along with highly respected private education at Wellington School for children aged 3 to 18. Local primary and secondary schooling is also available nearby.

The Ayrshire coastline is renowned worldwide for golf, with championship courses at Royal Troon, Turnberry and Prestwick all within easy reach.

For commuters, the upgraded A77 and M77 road network provides direct links to Kilmarnock, Glasgow and surrounding districts. Both Ayr and Prestwick offer mainline railway stations, while Prestwick International Airport provides travel options further afield.

Room Sizes

Ground Floor
Lounge – 4.26 m x 4.13 m (14 ft 0 in x 13 ft 7 in)
Kitchen – 2.85 m x 4.10 m (9 ft 4 in x 13 ft 5 in)
Bathroom – 1.84 m x 2.09 m (6 ft 0 in x 6 ft 10 in)
Hall – 4.13 m x 2.15 m (13 ft 7 in x 7 ft 1 in)

First Floor
Bedroom 1 – 3.15 m x 3.24 m (10 ft 4 in x 10 ft 8 in)
Bedroom 2 – 4.35 m x 3.06 m (14 ft 3 in x 10 ft 0 in)
Bedroom 3 – 2.91 m x 3.61 m (9 ft 7 in x 11 ft 10 in)

VIEWINGS: Strictly by appointment only.

PARTICULARS: Property Matters Ayrshire Ltd for themselves and for the sellers of this property whose agents they are, give notice that the particulars are produced in good faith, are set out as a general guide only and do not constitute any part of a contract and that no person in the employment of Property Matters Ltd has any authority to make or give any representation or warranty whatever in relation to this property. Intending purchasers must satisfy themselves, by inspection or otherwise, on all matters.

OFFERS: Offers must be submitted in Scottish legal form to the sole selling agents. Formal note of interest should be registered prior to offering. A closing date will only be notified to parties who have registered interest through their solicitors. The seller reserves the right to accept any offer at any time.

Important Information

  • This is a Freehold property.

Property Ref: prmalt_505541202

Share:

Similar Properties

Mount House,Dundonald Road, KA2

3 Bedroom Flat | Offers in excess of £180,000

Property Matters Online are delighted to present Flat 7, Mount House in Kilmarnock to the market for sale. This spacious...

Bridesburn Place, Stewarton, KA3

3 Bedroom Semi-Detached House | Offers Over £180,000

**CLOSING DATE - TUESDAY 7TH APRIL AT 12NOON**

Orkney Drive, Kilmarnock, KA3

3 Bedroom Detached House | Fixed Price £180,000

Property Matters Online are delighted to present to the market this rarelyavailable three-bedroom detached villa, ideall...

Edgar Place, North Newmoor, Irvine, KA11

3 Bedroom Semi-Detached House | Offers Over £185,000

Property Matters Online are thrilled topresent to the market this truly exceptional three-bedroom end-terraced villa,bea...

Willowbank Street, Glasgow, G3

1 Bedroom Flat | Offers Over £190,000

*** CLOSING DATE WEDNESDAY 27TH AT 12 NOON *** Property Matters Online is proud to present to the market this charming a...

John Finnie Street, Kilmarnock,KA1

Commercial Property | Offers Over £199,995

Property Matters Online are delighted to present to themarket this substantial three-storey commercial premises located...

Property Matters Online (Kilmarnock)

Kilmarnock, Ayrshire, KA1 1BG

01563 558877

How much is your home worth?

Use our short form to request a valuation of your property.

Request a Valuation

Mortgage Calculator

Amount Borrowed: £
Total Amount Repayable: £
Total Monthly Payment: £
©2026 The Guild of Property Professionals. All rights reserved. Terms and Conditions | Privacy Policy | Cookie Policy | Complaints Policy | Members Login
The Guild of Property Professionals Trading Address: 121 Park Lane, London W1K 7AG. GPEA Limited. Registered in England & Wales.  Company No: 02819824.  Registered Office Address: 2 St. Stephen's Court, St. Stephen's Road, Bournemouth, Dorset, England, BH2 6LA.  VAT Registration No: 576 8795 61
Book a Property Valuation Update Cookies Preferences