Station Drive, Hurlford, Kilmarnock, KA1

Offers Over
£279,995
SSTC
This property listing is now SSTC

4 Bedroom Detached House for sale in Ayrshire

4 2
  • Stunning family home presented in walk-in condition
  • Quality fixtures and fittings throughout
  • Flexible accommodation
  • Ample off-street parking
  • Contemporary kitchen and bathrooms
  • Situated within an exclusive residential development

Property Matters Online are delighted to present to the market this rarely available four-bedroom DETACHED VILLA Situated within an exclusive residential development and offering flexible living throughout.

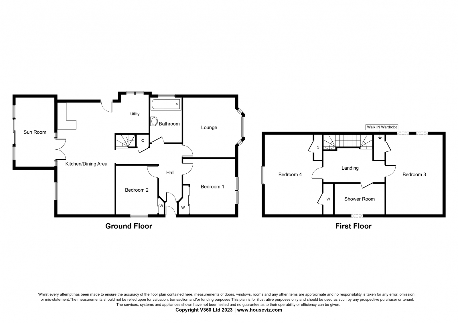
This beautiful family home boasts many quality features and is presented to the market in excellent order throughout. The accommodation is formed over two levels, with the lower level comprising entrance vestibule which leads to the welcoming entrance hallway with under-stairs storage. Well-proportioned lounge with front facing bay window which allows an abundance of natural light to flow through. Modern open archway gives access from the hallway to spacious open-plan dining kitchen. The high-quality kitchen houses an ample range of base and wall units with complementary worktops and splash-back areas, as well as a range of integrated appliances. Utility area with plumbing for an automatic washing machine. French doors open from the dining area to the spacious rear facing sunroom with French doors opening to the enclosed garden. two double bedrooms with fitted wardrobes. Contemporary four-piece bathroom comprising wc, vanity unit with wash hand basin, roll top bath, and double walk-in shower. The upper-level accommodation houses two double bedrooms with storage, and three-piece shower room comprising wc, vanity until with wash hand basin, and double walk-in shower.

The accommodation further benefits from a large mono-bloc driveway to the front and side which allows parking for several vehicles, as well as a detached double garage to the rear. Fully enclosed hard-landscaped garden to the rear, with paved and astroturf areas, as well as a mature shrub border. Double glazing. Gas central heating.

THE LOCALITY

The property is located out with the main centre of the village and remains within walking distance to all amenities. Hurlford has a good range of shops and a regular bus service.

Nearby Kilmarnock also offers many high street shops, supermarkets, including retail parks, cinema and leisure centre and all professional facilities.

Hurlford also has its own primary school and there is an extensive choice of schooling available in nearby Kilmarnock. There is also a college within the town.

The property is situated a short drive to the A77, M77 motorway link and all main arterial routes. This provides easy access for the commuter with links accessing in a Southerly direction towards Ayr and Girvan and the Ayrshire coast and in a Northerly direction toward Glasgow.

Room sizes (approx.)

LOWER LEVEL

ENTRANCE VESTIBULE 1.15m x 1.13m

ENTRANCE HALLWAY 5.33m x 3.77m

LOUNGE 5.43m x 5.23m

DINING KITCHEN 8.05m x 6.35m

SUNROOM 6.09m x 2.50m

BEDROOM 4.50m x 3.50m

BEDROOM 3.19m x 3.02m

BATHROOM 3.73m x 2.07m

UPPER LEVEL

BEDROOM 5.46m x 4.97m

BEDROOM 5.47m x 3.59m

SHOWER ROOM 3.31m x 2.21m

EER - C

Viewings by appointment only contact agent

PARTICULARS Property Matters Ltd for themselves and for the sellers of this property whose agents they are, give notice that the particulars are produced in good faith, are set out as a general guide only and do not constitute any part of a contract and that no person in the employment of Property Matters Ltd has any authority to make or give any representation or warranty whatever in relation to this property. Intending purchasers must satisfy themselves, by inspection or otherwise, on all matters.

OFFERS: - Offers must be submitted in Scottish legal form to the sole selling agents. Formal note of interest should be registered prior to offering. A closing date will only be notified to parties who have registered interest through their solicitors. The seller reserves the right to accept any offer at any time

Important Information

  • This is a Freehold property.

Property Ref: 5555678_prmalt_1760482479

Share:

Similar Properties

Mount Place, Kilmarnock, KA1 1UD

4 Bedroom Detached Bungalow | Offers Over £279,995

Property Matters Online are delighted to present to the market this four-bedroom DETACHED BUNGALOW ideally situated with...

Dundonald Road, Kilmarnock, KA1

4 Bedroom Semi-Detached House | Offers Over £279,995

Property Matters Online are delighted to present to themarket this well presented four bed semi-detached bungalow locate...

Holmes Road, Kilmarnock, KA1

4 Bedroom Detached House | Offers Over £275,000

Property Matters Online aredelighted to present to the market this exceptional FOUR BEDROOM DETACHED VILLAsituated withi...

Cairn View, Muirkirk, KA18

5 Bedroom Detached House | Offers Over £280,000

Welcometo 6 Cairn View, a beautiful detached 4/5-bedroom family home, presented to themarket by Property Matters Online....

Holmlea Place, Kilmarnock

5 Bedroom Detached House | Offers Over £280,000

*** CLOSING DATE SET - WEDNESDAY 21ST AUGUST AT 12 NOON ***

Elm Walk, Stewarton, KA3

5 Bedroom Detached House | Offers Over £284,995

*** CLOSING DATE SET - WEDNESDAY 22ND FEBRUARY AT 12 NOON ***

Property Matters Online (Kilmarnock)

Kilmarnock, Ayrshire, KA1 1BG

01563 558877

How much is your home worth?

Use our short form to request a valuation of your property.

Request a Valuation

Mortgage Calculator

Amount Borrowed: £
Total Amount Repayable: £
Total Monthly Payment: £
©2025 The Guild of Property Professionals. All rights reserved. Terms and Conditions | Privacy Policy | Cookie Policy | Complaints Policy | Members Login
The Guild of Property Professionals Trading Address: 121 Park Lane, London W1K 7AG. GPEA Limited. Registered in England & Wales.  Company No: 02819824.  Registered Office Address: 2 St. Stephen's Court, St. Stephen's Road, Bournemouth, Dorset, England, BH2 6LA.  VAT Registration No: 576 8795 61
Book a Property Valuation Update Cookies Preferences