Macnaughton Drive, Kilmarnock, KA3

Offers Over
£80,000
SSTC
This property listing is now SSTC

3 Bedroom End of Terrace House for sale in Ayrshire

1 3 1
  • Situated within a sought after locale
  • Minutes from M77 motorway links
  • Walking distance to Kilmarnock town centre
  • Enclosed garden

Property Matters Online are delighted to present to the market this well-proportioned three-bedroom END TERRACED VILLA situated within the sought after New Farm Loch area of Kilmarnock.

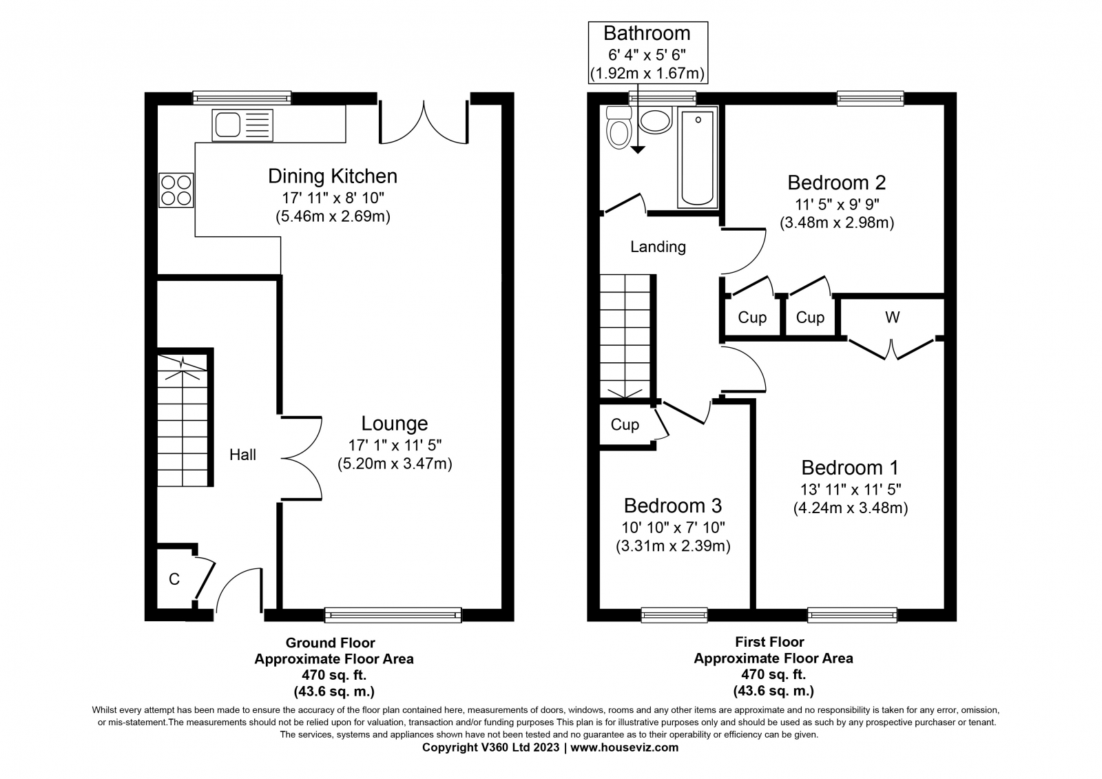
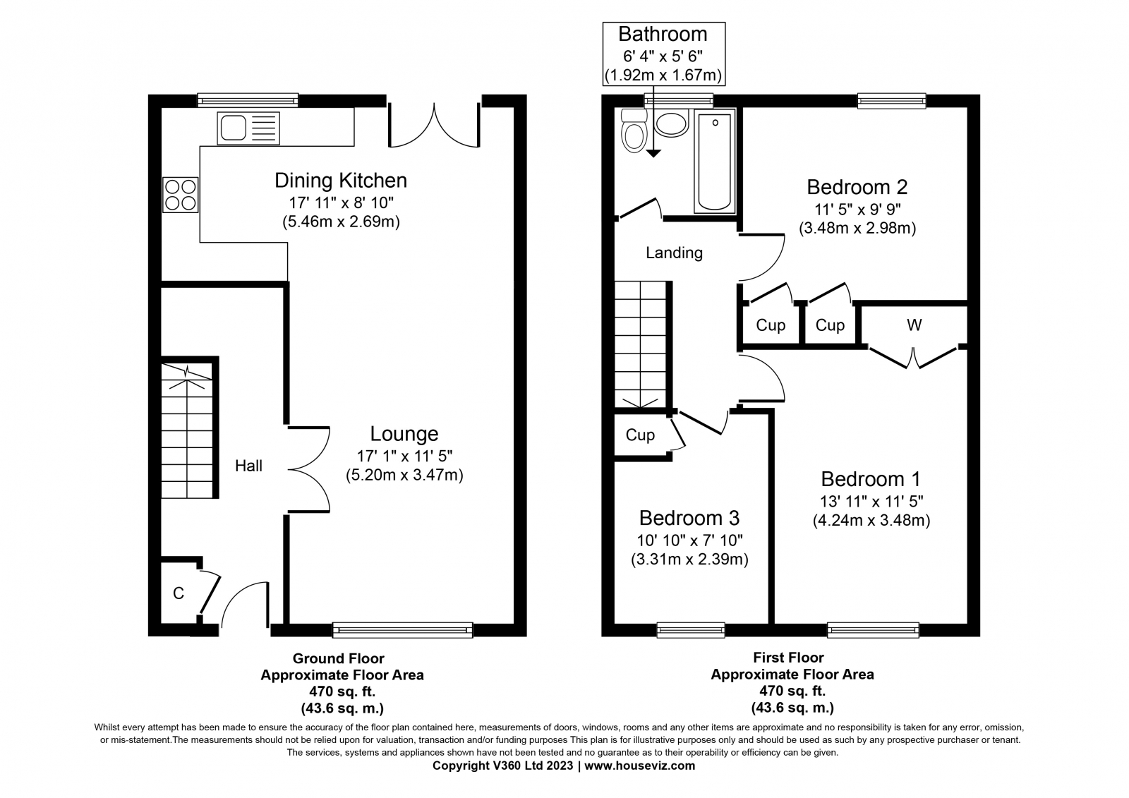
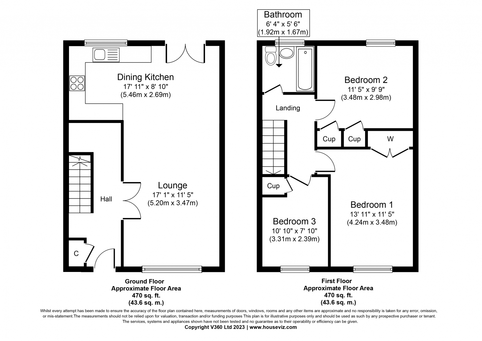
The accommodation is formed over two levels with the ground floor comprising entrance hallway with French doors opening to the spacious open plan living, dining and kitchen area with front facing window and French doors which open from the dining area to the rear garden. The first floor houses the three well-proportioned bedrooms and three-piece family bathroom comprising vanity unit which houses the wc and wash hand basin, and bath with overhead shower.

The property further benefits from hard-landscaped gardens to the front and rear.

LOCATION
The accommodation is situated minutes from the new William McIlvanney Campus, transport links and local Amenities. Kilmarnock town centre is within walking distance and enjoys excellent amenities which include an extensive range of local shops which cater for everyday requirements as well as a choice of banks and supermarkets. For the commuter there are good local transport links which include a rail link from Kilmarnock Town Centre adjoining the area to Glasgow City Centre and the Ayrshire coast. Additionally, there are established road links with the extensive M77 motorway network providing a fast and efficient route to Glasgow, Ayr, Prestwick and Prestwick International Airport. Leisure pursuits can be enjoyed at Dean Castle Country Park, the Galleon Leisure Centre as well as a choice of local golf clubs. This property must be viewed to be full appreciated.

Rooms Sizes (Approx.)

ENTRANCE HALLWAY 5.18m x 1.88m

LOUNGE 5.20m x 3.47m

DINING KITCHEN 5.46m x 2.69m

BEDROOM 4.24m x 3.48m

BEDROOM 3.48m x 2.98m

BEDROOM 3.31m x 2.39m

BATHROOM 1.92m x 1.67m

EER – D

NB***This property is being sold in its present condition and no warranty will be given to any purchaser with regard to the existence or condition of the services or any heating or other system within the property. Any intending purchasers will require to accept the position as it exists since no testing of any services or systems can be allowed. No moveable items will be included in the sale.***

PARTICULARS

Property Matters Ltd for themselves and for the sellers of this property whose agents they are, give notice that the particulars are produced in good faith, are set out as a general guide only and do not constitute any part of a contract and that no person in the employment of Property Matters Ltd has any authority to make or give any representation or warranty whatever in relation to this property. Intending purchasers must satisfy themselves, by inspection or otherwise, on all matters.

Important Information

  • This is a Freehold property.

Property Ref: 5555678_prmalt_37211192

Share:

Similar Properties

Cameron Drive, Kilmarnock, KA3

2 Bedroom Semi-Detached House | Offers Over £80,000

Property Matters Online are delighted to present to the market this rarely available two-bedroom SEMI-DETACHED HOUSE sit...

Foundry Wynd, Kilwinning, KA13

2 Bedroom Flat | Offers Over £80,000

Property Matters Online is delighted to presentthis generously sized two-bedroom ground floor flat within well maintaine...

Auchenharvie Road, Saltcoats, KA21

2 Bedroom Terraced House | Offers Over £80,000

Property Matters is delighted to present 79 Auchenharvie Road, Saltcoats, to the market. This beautifully maintained mid...

Greenside, Newmilns, KA16

3 Bedroom End of Terrace House | Offers Over £82,500

Property Matters Online are delighted to present to the market this well-presented SEMI-DETACHED VILLA nestled in the ev...

Teith Place, Kilmarnock, KA1

2 Bedroom Semi-Detached House | Offers Over £84,995

Property Matters Online are delighted to present to the market this immaculately presented two-bedroom SEMI-DETACHED VIL...

South Dean Road, Kilmarnock, KA3

3 Bedroom Terraced House | Offers Over £84,995

Property Matters Online are delighted to present to themarket this rarely available two bed & box room Terraced villa si...

Property Matters Online (Kilmarnock)

Kilmarnock, Ayrshire, KA1 1BG

01563 558877

How much is your home worth?

Use our short form to request a valuation of your property.

Request a Valuation

Mortgage Calculator

Amount Borrowed: £
Total Amount Repayable: £
Total Monthly Payment: £
©2026 The Guild of Property Professionals. All rights reserved. Terms and Conditions | Privacy Policy | Cookie Policy | Complaints Policy | Members Login
The Guild of Property Professionals Trading Address: 121 Park Lane, London W1K 7AG. GPEA Limited. Registered in England & Wales.  Company No: 02819824.  Registered Office Address: 2 St. Stephen's Court, St. Stephen's Road, Bournemouth, Dorset, England, BH2 6LA.  VAT Registration No: 576 8795 61
Book a Property Valuation Update Cookies Preferences