Foundry Wynd, Kilwinning, KA13

Offers Over
£185,000
SSTC
This property listing is now SSTC

3 Bedroom Detached House for sale in Ayrshire

2 3 2
  • Detached, 3-bedroom family home
  • Generous corner plot offering excellent outdoor space
  • Downstairs WC
  • Driveway, and detached single garage

Welcome to 109 Foundry Wynd, Kilwinning. Proudly presented to the market by Property Matters Online, this beautifully maintained three-bedroom detached family home is set on a generous corner plot in a sought-after residential area.

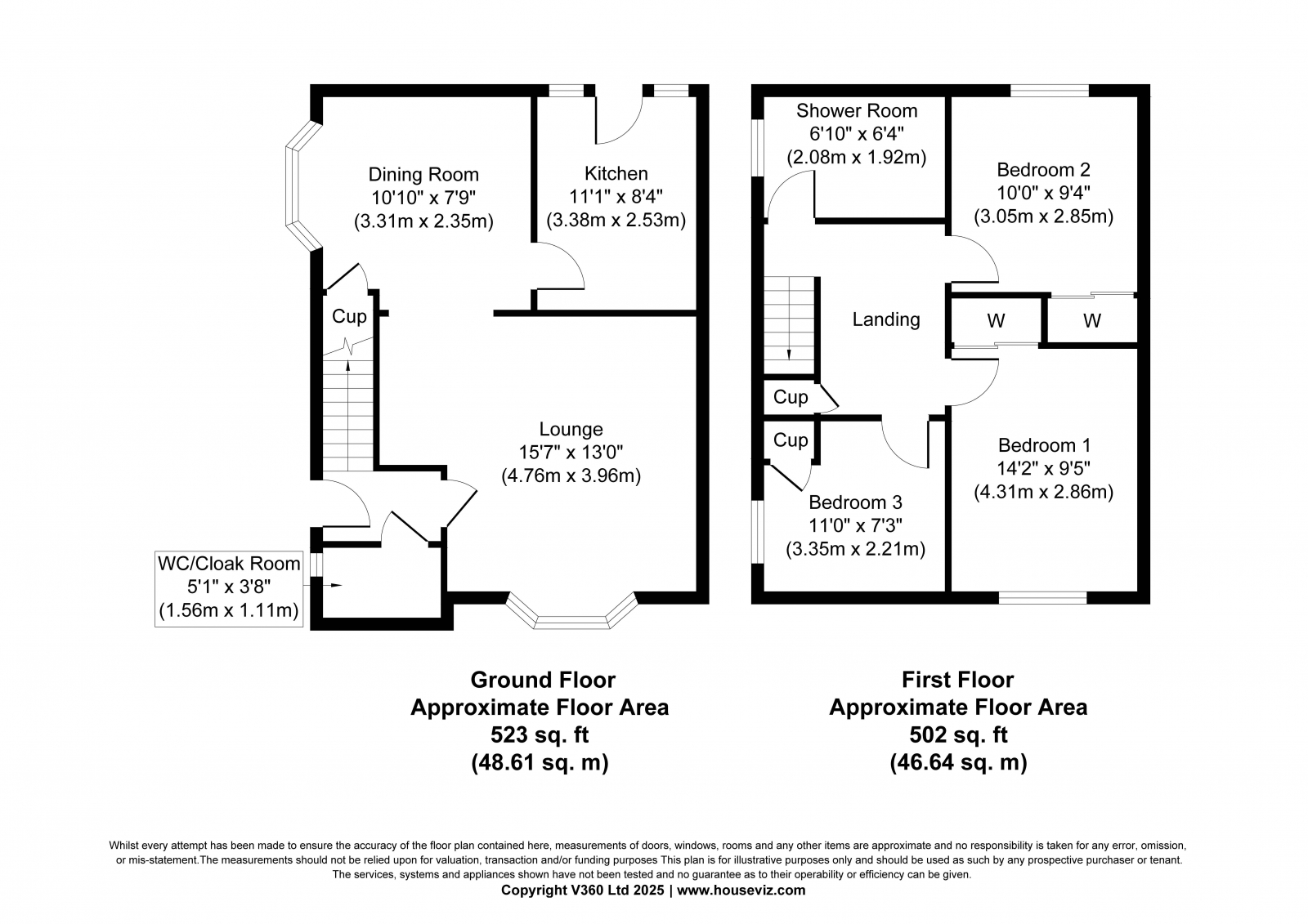
The ground floor offers a welcoming entrance hall with a convenient downstairs WC/cloakroom. The spacious, light-filled lounge flows seamlessly through an archway into the family dining room, which features a handy storage cupboard. The modern kitchen, accessed via the dining room, is fitted with a range of contemporary upper and lower units, a gas hob with built-in oven, an integrated fridge freezer, and space for a freestanding washing machine. A rear door provides access to the enclosed back garden.

Upstairs, the property boasts two well-proportioned double bedrooms and a generous single bedroom, all benefiting from built-in wardrobes. A modern, stylish family shower room completes the upper level.

Additional features include double glazing and gas central heating throughout.

Externally, the home is positioned on a sizeable corner plot with landscaped front and side gardens laid to lawn. A spacious driveway provides off-street parking for multiple vehicles and leads to a detached single garage. The rear garden is fully enclosed and features a low-maintenance combination of paving and decorative chips, ideal for relaxing or entertaining.

Location:

The property is located in Kilwinning, a town in North Ayrshire. Kilwinning is located on the banks of the River Garnock and neighbouring towns are Irvine to the south, and to the west, the coastal towns of Saltcoats, Stevenston, and Ardrossan. Kilwinning benefits from an array of public transport links, with Kilwinning Train Station servicing access to Ayr, Glasgow and Edinburgh and bus routes to nearby towns. For the motorist, Kilwinning has road links to the rest of Ayrshire as the town is bypassed by the A78 dual carriageway which provides connections to the A71 and A77, and the Glasgow-bound M77. Kilwinning has many primary schools available, with secondary schooling available at Kilwinning Academy. Kilwinning is also home to a campus of Ayrshire College, formally known as James Watt College.

Room Dimensions (Approx and taken from the widest point):

· WC: 1.56m x 1.11m

· Lounge: 3.96m x 4.76m

· Dining Room: 2.35m x 3.31m

· Kitchen: 2.53m x 3.38m

· Bedroom 1: 2.86m x 4.31m

· Bedroom 2: 2.85m x 3.05m

· Bedroom 3: 3.35m x 2.21m

· Shower Room: 1.92m x 2.08m

Viewings:- Strictly by appointment

PARTICULARS - Property Matters Ltd for themselves and for the sellers of this property whose agents they are, give notice that the particulars are produced in good faith, are set out as a general guide only and do not constitute any part of a contract and that no person in the employment of Property Matters Ltd has any authority to make or give any representation or warranty whatever in relation to this property. Intending purchasers must satisfy themselves, by inspection or otherwise, on all matters.

OFFERS - Offers must be submitted in Scottish legal form to the sole selling agents. Formal note of interest should be registered prior to offering. A closing date will only be notified to parties who have registered interest through their solicitors. The seller reserves the right to accept any offer at any time.

Important Information

  • This is a Freehold property.

Property Ref: 5555678_prmalt_120354043

Share:

Similar Properties

Heathpark, Ayr, KA8

3 Bedroom Semi-Detached House | Fixed Price £185,000

Property Matters Online aredelighted to present to the market this exceptional extended THREE BEDROOM SEMIDETACHED VILLA...

Windmill Road, Monkton, KA9

3 Bedroom Terraced House | Offers Over £185,000

Property Matters Online are delighted to present to themarket this modern three-bedroom TERRACED VILLA situated within t...

Edradour Road, Kilmarnock, KA3

3 Bedroom Semi-Detached House | Fixed Price £185,000

Property Matters Online aredelighted to present to the market this well-presented three-bedroom SEMIDETACHED VILLA ideal...

Annickbank Wynd, North Newmoor, KA11

3 Bedroom Semi-Detached House | Offers Over £187,500

Property Matters Online aredelighted to present to the market this modern three-bedroom SEMI-DETACHEDVILLA situated with...

Shetland Drive, Kilmarnock, KA3

3 Bedroom Detached House | Offers Over £187,500

Property Matters Online aredelighted to present to the market this extremely well presented three-bedroomdetached villa...

Kilwinning Road, Irvine, KA12

3 Bedroom Semi-Detached House | Offers Over £187,500

Property Matters Online are delighted topresent to the market this rarely available and beautifully proportionedthree-be...

Property Matters Online (Kilmarnock)

Kilmarnock, Ayrshire, KA1 1BG

01563 558877

How much is your home worth?

Use our short form to request a valuation of your property.

Request a Valuation

Mortgage Calculator

Amount Borrowed: £
Total Amount Repayable: £
Total Monthly Payment: £
©2025 The Guild of Property Professionals. All rights reserved. Terms and Conditions | Privacy Policy | Cookie Policy | Complaints Policy | Members Login
The Guild of Property Professionals Trading Address: 121 Park Lane, London W1K 7AG. GPEA Limited. Registered in England & Wales.  Company No: 02819824.  Registered Office Address: 2 St. Stephen's Court, St. Stephen's Road, Bournemouth, Dorset, England, BH2 6LA.  VAT Registration No: 576 8795 61
Book a Property Valuation Update Cookies Preferences