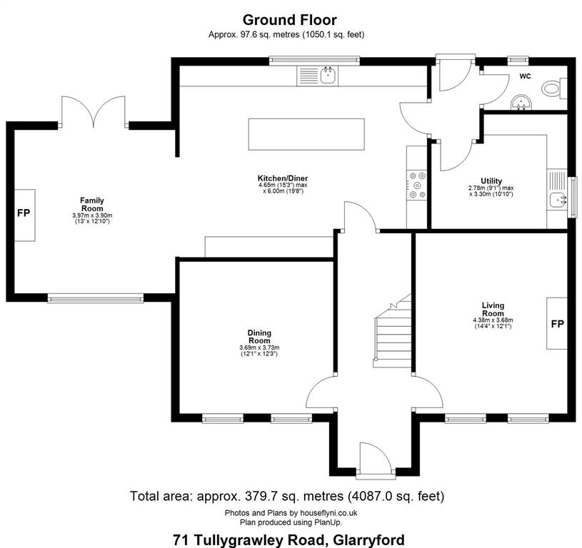
Tullygrawley Road, Glarryford, Ballymena, BT44 9HE

Offers in region of
£445,000

4 Bedroom Detached House for sale in Ballymena

3 4 1
  • Detached family home
  • Four bedrooms (one with en-suite shower room)
  • Living room with fireplace
  • Dining room
  • Family room with multi-fuel burning stove
  • Spacious kitchen/diner
  • Ground floor WC
  • Utility room
  • First floor bathroom with 4-piece white suite
  • Oil fired central heating system

Homes Independent are thrilled to offer for sale this exceptional four-bedroom detached property, located in a desirable rural setting on Tullygrawley Road. This impressive home offers a perfect blend of generous living accommodation, beautifully landscaped outdoor space and the added bonus of a large workshop garage with commercial potential. Internally, the property boasts four spacious bedrooms, one with en-suite facilities. There are three reception rooms, providing versatile spaces for family living, relaxation and entertaining. The heart of the home is the large kitchen/diner, which features ample workspace and storage, making it ideal for both everyday family life and hosting guests. A separate utility room adds to the functionality of the property. The extensive gardens surrounding the property offer a peaceful retreat with manicured lawns and thoughtfully designed outdoor entertaining space. A charming gazebo and a fully equipped garden room create the perfect environment for outdoor dining or relaxing during warmer months. One of the standout features of this property is the large workshop/garage, which includes an office and WC. This versatile space has excellent potential for commercial use or could be adapted for a variety of purposes, making it ideal for those seeking to run a business from home or requiring substantial storage or workspace. Offering the perfect balance of comfort, space and opportunity; 71 Tullygrawley Road is a truly unique property that must be viewed to be fully appreciated.

Property Ref: HIBM_HIBM4573

Share:

Similar Properties

Granagh Road, Cullybackey, BT42 1EQ

4 Bedroom Detached House | Offers in region of £425,000

Homes Independent are delighted to list for sale this exceptional dwelling on the Granagh Road on the edge of Cullybacke...

Burnside Road, Broughshane, BT42 4PB

5 Bedroom Detached Bungalow | Offers in region of £425,000

This exceptionally well-finished detached chalet house extends to over 3,000 sq. feet and includes spacious family livin...

Ballykenver Road, Armoy, BT53 8TR

5 Bedroom Detached House | Offers in region of £420,000

Homes Independent are thrilled to bring to the market 54 Ballykenver Road, Armoy — a truly impressive family home set on...

Lisnahilt Road, Broughshane, BT42 4QT

5 Bedroom Detached House | Offers in region of £450,000

Rarely does a property of this calibre become available on the open market - especially in a superb position on the edge...

Lislaban Road, Cloughmills, BT44 9HZ

6 Bedroom Detached Bungalow | Offers in region of £450,000

Homes Independent are delighted to present this striking family home extending to over 3,400 sq ft and positioned on a m...

Portglenone Road, Randalstown, Ballymena, BT41 3EU

4 Bedroom Detached House | Offers in region of £460,000

Homes Independent are thrilled to list for sale this stunning detached family home constructed in 2021 set back from the...

Homes Independent (Ballymena)

Ballymena, Antrim, BT43 5AA

028 2565 11 11

How much is your home worth?

Use our short form to request a valuation of your property.

Request a Valuation

Mortgage Calculator

Amount Borrowed: £
Total Amount Repayable: £
Total Monthly Payment: £
©2025 The Guild of Property Professionals. All rights reserved. Terms and Conditions | Privacy Policy | Cookie Policy | Complaints Policy | Members Login
The Guild of Property Professionals Trading Address: 121 Park Lane, London W1K 7AG. GPEA Limited. Registered in England & Wales.  Company No: 02819824.  Registered Office Address: 2 St. Stephen's Court, St. Stephen's Road, Bournemouth, Dorset, England, BH2 6LA.  VAT Registration No: 576 8795 61
Book a Property Valuation Update Cookies Preferences