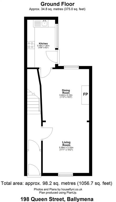
Queen Street, Ballymena, BT42 2BQ

Offers in region of
£80,000
SSTC
This property listing is now SSTC

4 Bedroom Terraced House for sale in Ballymena

4
  • Mid-terrace house
  • Four bedrooms
  • Open plan living/dining room
  • Kitchen
  • First floor bathroom with 3-piece suite
  • Oil fired central heating system
  • PVC double glazed windows
  • PVC front and rear doors
  • On-street parking at front of property
  • Enclosed concrete yard to rear

Homes Independent are pleased to list for sale this four-bedroom mid-terrace property at 198 Queen Street. The accommodation is arranged over three floors and includes an open-plan living and dining area, a kitchen, and a first-floor bathroom. Conveniently located close to local amenities and within walking distance of the town centre, the property requires some modernisation and is ideal for investors or those seeking a renovation project.

Property Ref: HIBM_HIBM5169

Share:

Similar Properties

Coronation Park, Clough, BT44 9RR

3 Bedroom Semi-Detached House | Offers in region of £80,000

Homes Independent are pleased to bring to the market 14 Coronation Park, Clough, a well-located three-bedroom semi-detac...

Site between 2 and 3 Ballyreagh Close, Clough, BT44 9QR

Plot | Offers in region of £80,000

This site of approximately 0.36 acres is located between 2 and 3 Ballyreagh Close, just off the Doury Road, Clough, and...

Neillsbrook Park, Randalstown, BT41 3BG

2 Bedroom Terraced House | Offers in region of £80,000

Situated in this popular residential area, Homes Independent are thrilled to list this two-bedroom property for sale. Co...

Chichester Park Central, Ballymena, BT42 4BE

3 Bedroom Semi-Detached House | Offers in region of £84,950

Set on a site with superb gardens surrounding the property, this 3 bedroom end terrace house is an ideal family home. Of...

Land adjacent to 105 Shankbridge Road, Kells

Not Specified | Offers in region of £85,000

Homes Independent bring to the market this exciting opportunity to purchase approx. 6.08 acres of good agricultural land...

Casement Street, Ballymena, BT42 4BY

2 Bedroom Terraced House | Offers in region of £85,000

Homes Independent are pleased to bring to the market 34 Casement Street, Ballymena, a two-bedroom mid-terrace property o...

Homes Independent (Ballymena)

Ballymena, Antrim, BT43 5AA

028 2565 11 11

How much is your home worth?

Use our short form to request a valuation of your property.

Request a Valuation

Mortgage Calculator

Amount Borrowed: £
Total Amount Repayable: £
Total Monthly Payment: £
©2026 The Guild of Property Professionals. All rights reserved. Terms and Conditions | Privacy Policy | Cookie Policy | Complaints Policy | Members Login
The Guild of Property Professionals Trading Address: 121 Park Lane, London W1K 7AG. GPEA Limited. Registered in England & Wales.  Company No: 02819824.  Registered Office Address: 2 St. Stephen's Court, St. Stephen's Road, Bournemouth, Dorset, England, BH2 6LA.  VAT Registration No: 576 8795 61
Book a Property Valuation Update Cookies Preferences