198 Seacon Road, Ballymoney

Offers in region of
£449,950

5 Bedroom Detached Bungalow for sale in Ballymoney

3 5 2
  • Oil fired heating.
  • Mahogany double glazed windows.
  • Flexible well proportioned living accommodation - 4 or 5 bedroom (1 ensuite), 3 � reception rooms.
  • The property is circa 3000 square feet.
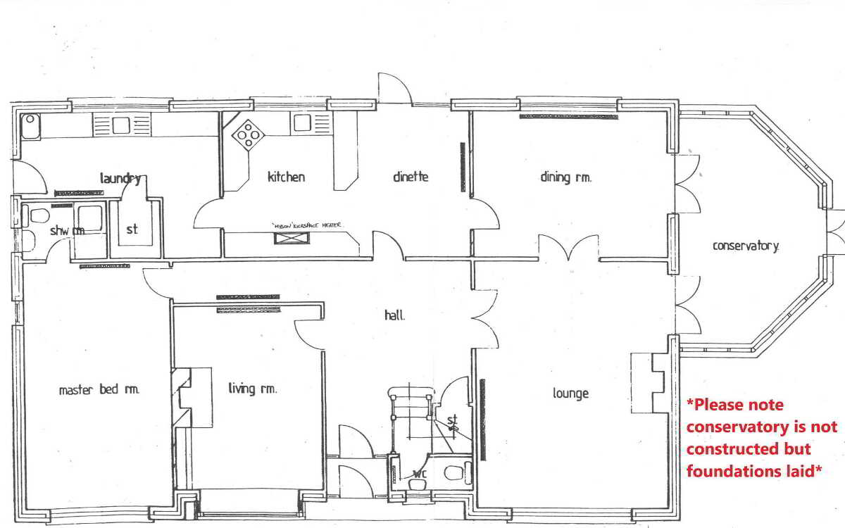
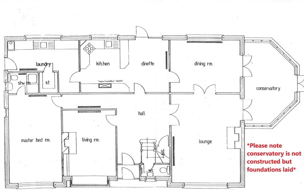
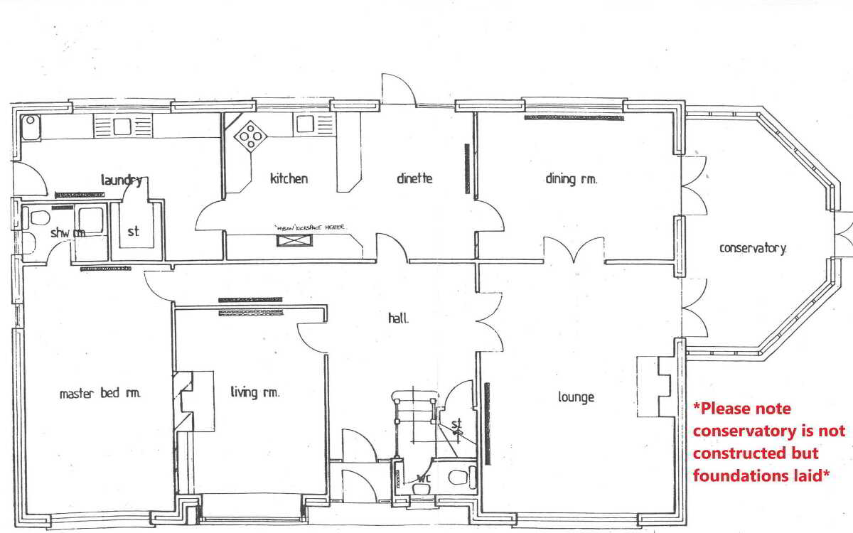
  • Foundations for a conservatory have been laid underground.
  • Set on a spacious private mature landscaped site with delightful elevated views to the rear of the property.
  • Double doors from both the lounge and the dining room to an enclosed side garden.
  • The property was designed and built for the present owners and has been very well maintained over the years.
  • Wired for ultrafast broadband.
  • Burglar alarm.

Set on a choice spacious mature site on the highly regarded Seacon road we are delighted to offer for sale this substantial detached property and garage which provides extensive flexible family living accommodation in this superb location.


Conveniently located to the town centre, local schools and transport links. The property (circa 3,000 sqft) provides 4 or 5 bedroom (1 ensuite), 3 ½ reception room accommodation and was originally designed and built for the present owners and has been exceptionally well maintained over the years.


The house with the nice garden (as it has been previously called) provides mature private landscaped gardens which includes a garden laid in lawn to the front of the property with a delightful variety of paving, hedging and trees. In addition the property has entrance pillars together with a spacious tarmac driveway and parking areas to the front and side of the property. The rear of the property has delightfully landscaped gardens with patio areas and decorative mature bushes/trees and has superb elevated views from this picturesque garden.


Seldom does a property come onto the market on this side of the Seacon road and we as selling agents highly recommend an early internal inspection to fully appreciate the choice location and generous proportions of this quality and well presented family home.


Viewing is strictly by appointment only.

Reception PorchTiled floor, part glass panel door and side panels to:Spacious Reception HallWooden floor, dado rail, ceiling downlights, storage understairs, staircase to first floor accommodation.Lounge6.15m x 4.75m (20'2 x 15'7)
With attractive cast iron fireplace, tiled inset, tiled hearth, wooden surround, mirrored overmantle, coved ceiling and 2 centre pieces, french doors to side garden area.
Double doors to:
Dining Room4.75m x 3.58m (15'7 x 11'9)
Amtico floor, plate rack, french doors to to side garden. Double doors to Lounge.Kitchen/Dinette5.92m x 3.56m (19'5 x 11'8)
With a range of attractive eye and low level units including Zanussi electric ceramic hob, extractor fan, Electrolux double oven including grill, integrated fridge, integrated Bosch dishwasher, 1 ½ bowl stainless steel sink unit, wine rack, display shelving, saucepan drawers, part tiled walls, tiled floor, ceiling downlights, pedestrian door and side panel (with picturesque views)to rear garden area.Utility Room4.98m x 2.08m (16'4 x 6'10)
(plus recess)
With a range of eye and low level units including gas hob, stainless steel sink unit, plumbed for an automatic washing machine, space for a tumble dryer, oil fired boiler.
Store: 4’6 x 4’3
Shelved, with light and tiled floor.
Living Room4.57m x 3.48m (15'0 x 11'5)
Attractive fireplace with raised hearth, gas fire, wooden floor, coved ceiling, ceiling downlights, dimmer switch.Master Bedroom6.12m x 3.53m (20'1 x 11'7)
(including fitted sliderobes)
Attractive sliderobes (part mirrored) with T.V. point and electric sockets, dressing table with storage cupboards and drawers, double aspect windows, Ensuite with thermostatic shower, part tiled/part sheeted cubicle, slate shower tray, w.c, wash hand basin with storage drawers below and lighted mirrored storage cabinet above (anti mist), heated towel rail, tiled walls, tiled floor, extractor fan.

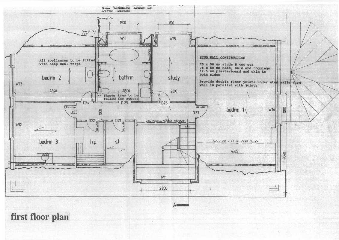
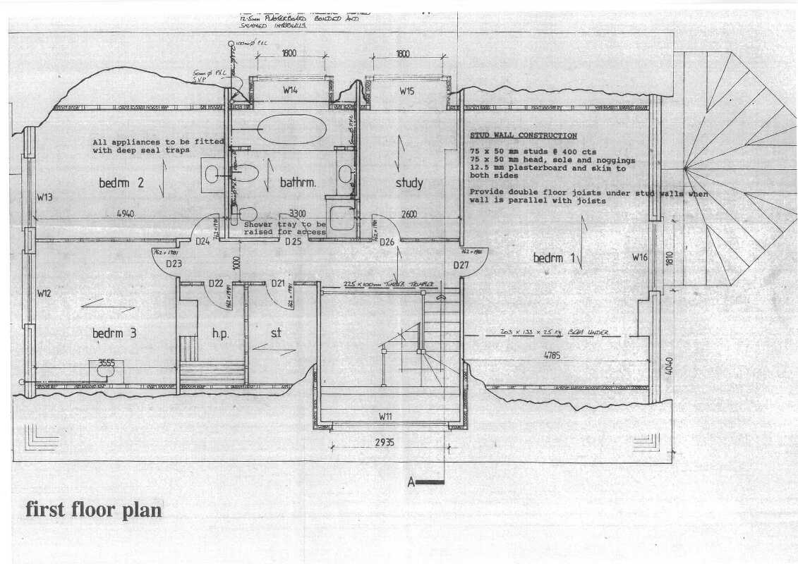
Staircase to First Floor AccommodationSeparate w.c
W.c, wash hand basin with storage cupboard below, heated towel rail.

Spacious landing area with reading area, dado rail.

Bedroom 25.44m x 4.78m (17'10 x 15'8)
Access to eaves storage.
Walk in store: 15’8 x 4’4
With light and shelving.
Study/Bedroom 53.94m x 2.51m (12'11 x 8'3)
Window with picturesque elevated views.

Family bathroom and w.c combined3.94m x 3.28m (12'11 x 10'9)
(including window bath)
With fitted suite including bath, w.c, wash hand basin, bidet, Triton TBO electric shower, sheeted cubicle, heated towel rail, part tiled walls, wooden floor, ceiling downlights, extractor fan.

Store2.67m x 1.7m (8'9 x 5'7)
With light, clothes rail and shelving.Walk in hotpressWith shelving and light.Bedroom 35.03m x 3.18m (16'6 x 10'5)
(including fitted wardrobes)
With fitted wardrobes, dressing table/study area, wash hand basin with lighted mirror, shelving, storage cupboards and drawers.

Bedroom 43.58m x 3.48m (11'9 x 11'5)
(including fitted bedroom units)
Fitted vanity unit with wash hand basin, mirror, light, wardrobes, cupboards and drawers. Access to eaves storage.

EXTERIOR FEATURESDetached Garage6.1m x 4.39m (20'0 x 14'5)
(Roofspace floored with light)
With pedestrian door, window, light and power points, roller door, part wood laminate flooring/part concrete floors, staircase to roofspace storage.
Upvc fascia and soffits.Spacious tarmac driveway and parking area to the front and side of property.Picturesque mature gardens to the front of the property with grass area and mature trees/hedges/bushes.Enclosed landscaped garden to rear of property with patio areas and delightful elevated views.Foundations laid for a conservatory (underground) to the side of the property.Private side garden with patio area and double door access to both the lounge and the dining room.BBQ area.Additional hidden garden area to the rear of the property.External electric socket.CCTV and security lighting.Outside tap to the rear of the property.Exterior solar lights to front, side and rear of property.Outside tap to rear of property.Water feature to rear garden area.Conservatory not constructed but foundations laid underground.

Property Ref: ST0608216_994704

Share:

Similar Properties

New Build, Seacon Road, Ballymoney

4 Bedroom Detached Bungalow | Offers in excess of £449,950

New Build Between, Site 2, 3 & 7 Mullan Road, Ballymoney

5 Bedroom Detached House | £435,000

New Build Between, Site 1, 3 & 7 Mullan Road, Ballymoney

5 Bedroom Detached House | £435,000

2 New Builds, Macfin Road, Ballymoney

4 Bedroom Detached House | £450,000

51 Curragh Road, Coleraine

3 Bedroom Detached House | Offers in excess of £450,000

Carnfeogue Lodge, 156a Ballinlea Road, Ballymoney

4 Bedroom Detached House | £464,950

McAfee Properties (Ballymoney)

Ballymoney, Ballymoney, County Antrim, BT53 6AN

028 2766 7676

How much is your home worth?

Use our short form to request a valuation of your property.

Request a Valuation

Mortgage Calculator

Amount Borrowed: £
Total Amount Repayable: £
Total Monthly Payment: £
©2026 The Guild of Property Professionals. All rights reserved. Terms and Conditions | Privacy Policy | Cookie Policy | Complaints Policy | Members Login
The Guild of Property Professionals Trading Address: 121 Park Lane, London W1K 7AG. GPEA Limited. Registered in England & Wales.  Company No: 02819824.  Registered Office Address: 2 St. Stephen's Court, St. Stephen's Road, Bournemouth, Dorset, England, BH2 6LA.  VAT Registration No: 576 8795 61
Book a Property Valuation Update Cookies Preferences