20 Fourth Avenue

£274,950
SSTC
This property listing is now SSTC

3 Bedroom Semi-Detached House for sale in Bangor

2 3 1


•Attractive Semi Detached Property
•Prestigious and Highly Regarded Ballyholme Address
•Charm and Character in Abundance
•Living Room with Attractive Oak Fireplace, Open Fire and Solid Oak Floor
•Open Plan Kitchen to Casual Dining/Family Area with Electric Remote Control Velux Window and Double Glazed Sliding Patio Door to Rear Garden as well as Plannining Permission to Extend Further
•Three First Floor Bedrooms
•Fully Tiled Bathroom with Three Piece White Suite
•Fixed Staircase to Fully Floored Roofspace with Planning Permission to Convert to Another Bedroom with Ensuite and Dormer Window
•Oil Fired Central Heating
•uPVC Double Glazed Windows
•Easily Maintained Front Garden in Loose Stones
•Tarmac Driveway with Parking
•Outstanding Fully Enclosed Rear Garden in Lawns with Paved Patio Barbecue Area, Southerly Aspect and Excellent Degree of Privacy, Rear Garden is an Ideal Space for Children at Play or For Outdoor Entertaining
•Utility Area Which is Plumbed for Washing Machine and with Space for Tumble Dryer
•In Close Proximity to Many Amenities Including Ballyholme Beach and Village, Ward Park, Bangor Golf Club, Sailing Clubs, Shops, Cafes, Restaurants and Schools
•Wide Ranging Appeal to a Host of Potential Purchasers Including First Time Buyers, Young Professionals and Those Looking to Downsize
•Early Viewing Essential
•Recent Sales of Other Properties Have Proven to be Extremely Successful and This One Should be No Different

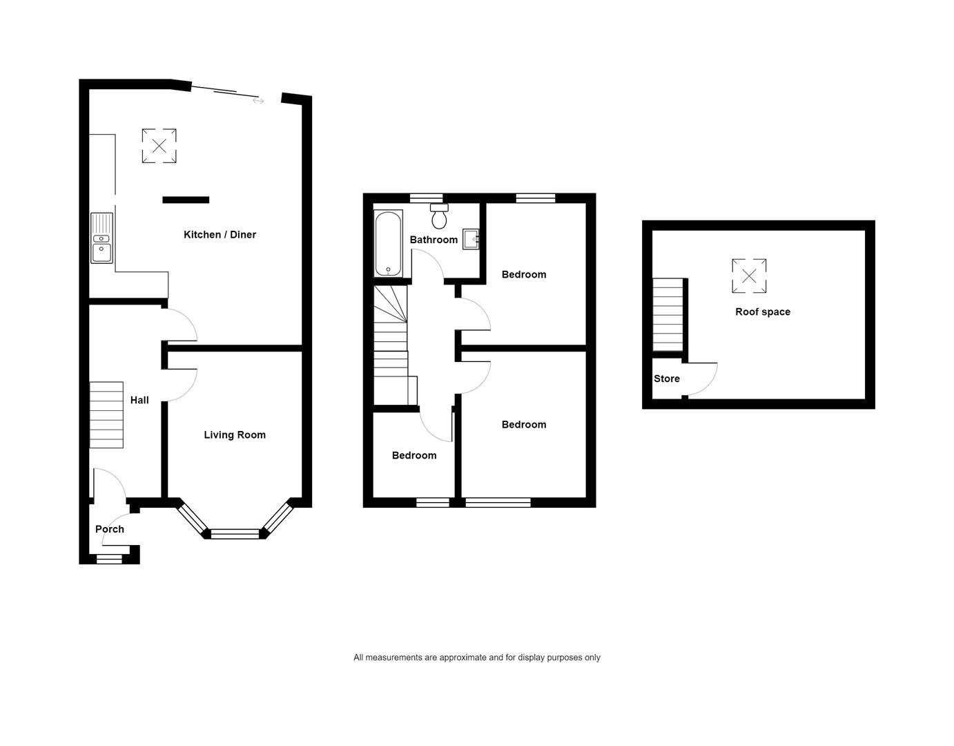
ENTRANCE
() - uPVC double glazed front door to enclosed entrance porch.

ENCLOSED ENTRANCE PORCH:
() - Fully tiled floor, glazed inner door to reception hall.

Reception Hall
() - Solid oak floor.

Living Room
(3.12m x 4.01m) - into bay at widest points
Attractive oak fireplace, cast iron inset, granite hearth, open fire, solid oak floor, cornice ceiling.

Open Plan Kitchen to Casual Dining Area
(5.74m x 4.83m) - at widest points
Range of high and low level units, granite effect work surfaces, one and a half bowl single drainer stainless steel sink unit with mixer tap, integrated double oven, integrated four ring hob, tiled splashback, extractor fan above, integrated dishwasher, space for fridge freezer, fully tiled floor, part tiled walls, electric controlled Velux window, double glazed sliding patio doors to rear garden.

LANDING:
() - Cornice ceiling.

Bedroom One
(3.33m x 2.87m) - Laminate wood effect floor.

Bedroom Two
(3.33m x 2.21m) - Laminate wood effect floor.

Bedroom Three
(1.98m x 1.85m) - Laminate wood effect floor.

Fully Tiled Bathroom
() - Three piece white suite comprising: panelled bath with mixer tap and shower over, wash hand basin with mixer tap on vanity unit, low flush WC, fully tiled floor, fully tiled walls, chrome heated towel rail.

Fixed Staircase to Fully Floored Roofspace
() - With storage in eaves, potential to convert subject to necessary approvals.

OUTSIDE
() - Easily maintained front garden in loose stones, tarmac driveway with parking, outstanding fully enclosed rear garden in lawns with paved patio barbecue area, flowerbeds in plants and shrubs, southerly aspect and excellent degree of privacy making an ideal space for children at play or for outdoor entertaining, utility area plumbed for washing machine, space for tumble dryer, store and uPVC oil tank.


Bangor is a beautiful seaside town located just over 13 miles from Belfast. Bangor offers a wide variety of property with something to suit all.

Bangor Marina is one of the largest in Ireland and attracts plenty of visitors when the sun shows its face. Tourism is a big factor in this part of the world.

Property Ref: 45704_34327368

Share:

Similar Properties

50 Cleland Park North

3 Bedroom Detached House | Asking Price £265,000

This beautifully maintained detached home occupies a generous corner plot within the ever-popular Cleland Park area of B...

Apt 3 Farnham Lodge, 26 Farnham Road

2 Bedroom Apartment | £250,000

Apartment 3 at Farnham Lodge presents a rare opportunity to acquire a spacious and well-appointed home within an exclusi...

86 Chippendale Avenue

3 Bedroom Detached Bungalow | £249,950

Located in this extremely popular residential area here is an ideal opportunity to purchase an attractive detached bunga...

15 Crawfordsburn Road

3 Bedroom Semi-Detached House | Offers Over £275,000

Situated on a generous corner site in one of Bangor’s most sought-after locations, 15 Crawfordsburn Road is a newly refu...

53 Chippendale Avenue

4 Bedroom Detached House | £279,950

Located in this extremely popular residential area of Bangor here is an ideal opportunity to purchase a fantastic attrac...

32 Navar Drive

4 Bedroom Detached House | £279,950

Located in an extremely popular residential area here is an ideal opportunity to purchase a fantastic detached family ho...

John Minnis Estate Agents (Bangor)

Bangor, Down, BT20 4AG

02891313833

How much is your home worth?

Use our short form to request a valuation of your property.

Request a Valuation

Mortgage Calculator

Amount Borrowed: £
Total Amount Repayable: £
Total Monthly Payment: £
©2026 The Guild of Property Professionals. All rights reserved. Terms and Conditions | Privacy Policy | Cookie Policy | Complaints Policy | Members Login
The Guild of Property Professionals Trading Address: 121 Park Lane, London W1K 7AG. GPEA Limited. Registered in England & Wales.  Company No: 02819824.  Registered Office Address: 2 St. Stephen's Court, St. Stephen's Road, Bournemouth, Dorset, England, BH2 6LA.  VAT Registration No: 576 8795 61
Book a Property Valuation Update Cookies Preferences