36 Groomsport House Road

£359,950
SSTC
This property listing is now SSTC

4 Bedroom Townhouse for sale in BANGOR

2 4 2


•Attractive End Town House in Popular and Sought After Location
•Picturesque Views Over the Communal Gardens and Tennis Court to the Irish Sea
•Direct Access to the Coastal Path and Beach for Residents and Their Guests
•Quiet Yet Convenient Cul-de-Sac Position
•Living Room with uPVC Double Glazed French Doors to Family Room
•Family Room with Picturesque Views and uPVC Double Glazed French Doors to Outside
•Good Sized Kitchen with Casual Dining Area
•Separate Utility Room
•Ground Floor Snug Which Would Be Ideal as a Home Office
•Shower Room with Three Piece Suite to Include Large Walk-in Shower Cubicle
•Additional Downstairs WC
•Phoenix Gas Heating and uPVC Double Glazed Windows
•Two Privately Owned Parking Spaces with Additional Visitor Parking
•Additional Visitor Parking
•Private Tennis Court for Residents’ Use
•Beautifully Presented and Manicured Communal Gardens
•Front Courtyard to this Property
•Easily Maintained Rear and Side Garden Areas in Attractive Brick Paviour Terrace, Loose Stones, Plants and Shrubs

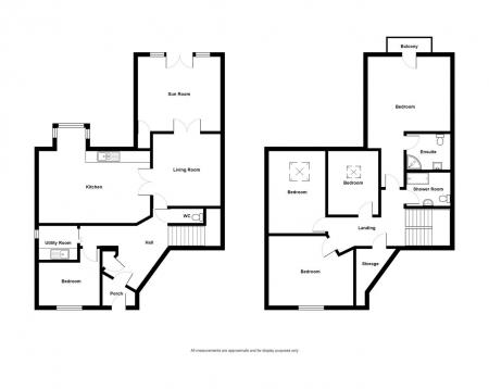
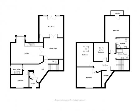
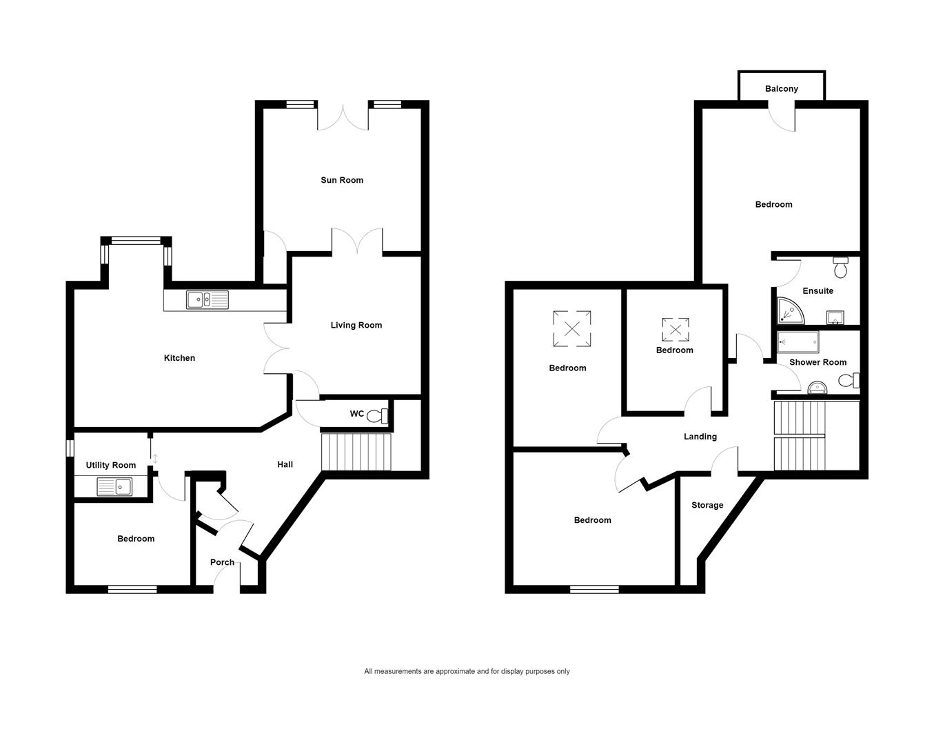
Entrance
() - Double glazed front door to enclosed entrance porch.

Enclosed Entrance Porch:
() - Fully tiled floor, double glazed internal door with double glazed side panels to reception hall.

Reception Hall
() - Laminate wood effect floor, cloakroom.

Downstairs WC
() - Comprising low flush WC, fully tiled floor.

Living Room:
(4.06m x 3.58m) - Laminate wood effect floor, uPVC double glazed French doors to family room, uPVC double glazed French doors to kitchen.

Faminly Room:
(4.34m x 3.84m) - Laminate wood effect floor, uPVC double glazed French doors to outside, picturesque views of Irish Sea.

Kitchen With Casual Dining Area
(5.69m x 3.86m) - at widest points
Range of high and low level units, laminate work surfaces, one and a half bowl single drainer stainless steel sink unit with mixer tap and water filter tap, integrated Bosch double oven, integrated Bosch five ring gas hob, tiled splashback, extractor fan above, plumbed for dishwasher, space for fridge freezer, fully tiled floor, part tiled walls.

Snug or Home Office
(3.28m x 2.26m) - Laminate wood effect floor.

Utility Room
() - Granite effect worktop, single bowl single drainer stainless steel sink unit with mixer tap, plumbed for washing machine, gas fired boiler, built-in shelving, fully tiled floor.

Landing
() - Good sized shelved airing cupboard, access to roofspace.

Bedroom One:
(4.88m x 4.37m) - into eaves at widest points
Picturesque views over the communal gardens, tennis court and beyond to Irish Sea. Privately owned balcony.

Ensuite Shower Room:
() - Three piece suite comprising built-in fully tiled shower cubicle, wash hand basin with mixer tap, storage beneath, low flush WC, fully tiled floor, part tiled walls, chrome heated towel rail, extractor fan.

Bedroom Two:
(3.96m x 2.97m) - into eaves at widest points
Picturesque views over the tennis court to Irish Sea.

Bedroom Three:
(4.52m x 3.66m) - into eaves at widest points

Bedroom Four:
(3.33m x 2.72m) - into eaves at widest points

Shower Room:
() - Three piece suite comprising large walk-in shower cubicle with hand shower, low flush WC, pedestal wash hand basin with mixer tap, fully tiled floor, part tiled walls, chrome heated towel rail, extractor fan.

Outside
() - Two private allocated car parking spaces to the front, privately owned landscaped rear and side garden area with attractive brick paviour terrace, loose stones, planting with shrubs, picturesque views over the communal gardens to the Irish Sea, privately owned balcony accessed off the main bedroom.


Bangor is a beautiful seaside town located just over 13 miles from Belfast. Bangor offers a wide variety of property with something to suit all.

Bangor Marina is one of the largest in Ireland and attracts plenty of visitors when the sun shows its face. Tourism is a big factor in this part of the world.

Property Ref: 45704_34258632

Share:

Similar Properties

37 Seymour Road

3 Bedroom Detached Bungalow | £350,000

37 Seymour Road is a beautifully renovated detached three-bedroom bungalow, perfectly positioned in the highly sought-af...

16 Donard Avenue

3 Bedroom Detached Bungalow | £350,000

Situated in the highly regarded Bangor West area, 16 Donard Avenue is a superbly maintained two/three-bedroom detached b...

Princetown Road Bangor

3 Bedroom Terraced House | £350,000

Princetown Road, Bangor West, is a prestigious and sought after location only a few minutes’ walk of Bangor town centre,...

2 Carnalea Park

3 Bedroom Detached Bungalow | £365,000

Welcome to 2 Carnalea Park, a beautifully presented three-bedroom detached bungalow located in one of Bangor’s most soug...

89 Donaghadee Road

5 Bedroom Detached House | £369,950

Extending to circa 2,500 square feet and with no onward chain this detached family home is a real Tardis of a property....

10 Lord Warden's View

4 Bedroom Detached House | £385,000

Exceptionally well presented throughout, this beautifully finished detached family home enjoys a tasteful and neutral co...

John Minnis Estate Agents (Bangor)

Bangor, Down, BT20 4AG

02891313833

How much is your home worth?

Use our short form to request a valuation of your property.

Request a Valuation

Mortgage Calculator

Amount Borrowed: £
Total Amount Repayable: £
Total Monthly Payment: £
©2026 The Guild of Property Professionals. All rights reserved. Terms and Conditions | Privacy Policy | Cookie Policy | Complaints Policy | Members Login
The Guild of Property Professionals Trading Address: 121 Park Lane, London W1K 7AG. GPEA Limited. Registered in England & Wales.  Company No: 02819824.  Registered Office Address: 2 St. Stephen's Court, St. Stephen's Road, Bournemouth, Dorset, England, BH2 6LA.  VAT Registration No: 576 8795 61
Book a Property Valuation Update Cookies Preferences