5 Clandeboye Way

£165,000
SSTC
This property listing is now SSTC

3 Bedroom Semi-Detached House for sale in Bangor

1 3 1


·Recently refurbished three-bedroom semi-detached chalet bungalow
·Bright and modern accommodation finished to an excellent standard
·Flexible layout suitable for a wide range of purchasers
·Option for comfortable ground floor living
·Modern fitted kitchen with contemporary finishes
·Spacious lounge open through to dining area
·Two well-proportioned ground floor bedrooms
·Stylish family bathroom on the ground floor
·Additional first-floor bedroom offering privacy and space
·Floored roofspace providing excellent additional storage
·Recently re-roofed
·Detached garage with further driveway parking
·Low-maintenance gardens ideal for outdoor enjoyment
·Close to a range of local shops
·Convenient to reputable schools and leisure facilities
·Easy access to Bangor city centre and main commuter routes

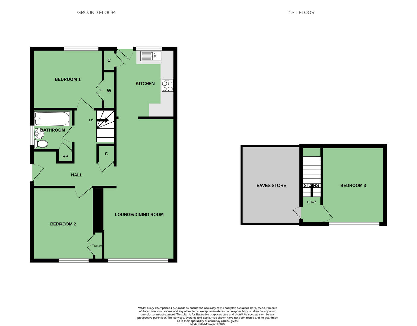
GROUND FLOOR

Entrance
uPVC and double-glazed front door with double glazed top light through to reception hall.

Reception Hall
Laminate wood effect floor, space for cloaks, additional cloaks cupboard with fuse board.

Lounge/Dining Room
6.65 x 3.78 (21'9" x 12'4") - With partial vaulted ceiling, outlook to front, laminate wood effect floor.

Kitchen
3.21x 2.8 (10'6"x 9'2") - Range of high and low level units, space for under counter freezer or dishwasher, stainless steel sink and drainer, chrome mixer taps, partial tiled walls and sill, outlook to rear, integrated oven, four ring hob, extractor above, space for fridge freezer, uPVC and double glazed access door to rear, pantry cupboard, lino tile effect floor.

Bedroom One
3.3 x 2.82 (10'9" x 9'3") - Outlook to rear, built-in robes.

Bedroom Two
3.42 x 2.88 (11'2" x 9'5") - Outlook to front, built-in robe, laminate wood effect floor.

Family Bathroom
1.90 x 1.90 (6'2" x 6'2") - White suite comprising of low flush WC, pedestal wash hand basin with hot and cold taps, panelled bath with mixer taps and electric Mira Sport shower, extractor fan, lino tiled floor and hotpress cupboard.

FIRST FLOOR

Landing
With access to roofspace storage.

Bedroom Three
3.64 x 2.93 (11'11" x 9'7")

Roofspace
Fully floored, light.

OUTSIDE

Attached Garage
With up and over door, garage plumbed for utilities.

Driveway Parking and Attached Garage.


A vibrant seaside town on Belfast Lough, Bangor offers the perfect mix of coastal living and community warmth. Its lively marina, cafés, and shops make it a favourite spot for locals and visitors alike. Families love the great schools, parks, and outdoor spaces, from Pickie Fun Park to Ballyholme Beach. Regular trains and road links provide an easy commute to Belfast and beyond. With stunning sea views and a relaxed pace of life, Bangor is a wonderful place to call home.

Important Information

  • This is a Leasehold property.
  • The annual cost for the ground rent on this property is £25
  • EPC Rating is D

Property Ref: 34327428

Share:

Similar Properties

1 Upritchard Crescent

3 Bedroom Town House | £159,950

Located in this extremely popular residential area in close proximity to many amenities, including shops, restaurants, l...

Groomsport Road, Bangor

2 Bedroom Apartment | £154,950

Located in this extremely popular area of Ballyholme here is an ideal opportunity to purchase a fantastic spacious first...

Bloomfield Place, Bangor

3 Bedroom Bungalow | £149,950

Located in this extremely popular residential area here is an ideal opportunity to purchase a semi detached bungalow whi...

5 Cardy Close

3 Bedroom Semi-Detached House | £167,500

Nestled within a quiet and highly convenient cul-de-sac, 5 Cardy Close offers an excellent opportunity to acquire a well...

Apt 4, The Cedars, 53 Bryansburn Road

2 Bedroom Apartment | Offers Over £169,950

Located within the highly sought-after Bangor West area, The Cedars is a small and well-maintained development perfectly...

30-30a Grays Hill

3 Bedroom Town House | £169,950

Situated in the heart of Bangor city centre, 30 & 30A Grays Hill offers a unique and highly attractive investment opport...

John Minnis Estate Agents (Bangor)

Bangor, Down, BT20 4AG

02891313833

How much is your home worth?

Use our short form to request a valuation of your property.

Request a Valuation

Mortgage Calculator

Amount Borrowed: £
Total Amount Repayable: £
Total Monthly Payment: £
©2026 The Guild of Property Professionals. All rights reserved. Terms and Conditions | Privacy Policy | Cookie Policy | Complaints Policy | Members Login
The Guild of Property Professionals Trading Address: 121 Park Lane, London W1K 7AG. GPEA Limited. Registered in England & Wales.  Company No: 02819824.  Registered Office Address: 2 St. Stephen's Court, St. Stephen's Road, Bournemouth, Dorset, England, BH2 6LA.  VAT Registration No: 576 8795 61
Book a Property Valuation Update Cookies Preferences