3 Tinto Crescent

£179,950
Sold
This property listing is now Sold

3 Bedroom Semi-Detached House for sale in Bangor

1 3 1


•Fantastic Semi Detached Property with No Onward Chain
•Cul-de-Sac Position Within Popular Residential Area
•Bright and Flexible Accommodation
•Living Room
•Kitchen with Casual Dining Area
•Three Bedrooms, One of Which is on the Ground Floor
• Ground Floor Shower Room with Three Piece Suite
•Phoenix Gas Heating
•uPVC Double Glazed Windows
•Tarmac Driveway with Parking to Front
•Fantastic Fully Enclosed Rear and Side Gardens with Excellent Degree of Privacy and Sunny Aspect Providing Ample Room to Extend Subject to Necessary Approvals
•In Close Proximity to Many Amenities Including Bloomfield Shopping Complex, Ward Park, Schools and Bus Routes
•Ballyholme Beach and Village and Bangor Centre Also Easily Accessible
• Demand Anticipated to be High and to a Wide Range of Prospective Purchaser Including First Time Buyers, Young Professionals, the Retired and Those Looking to Downsize
• Early Viewing Essential

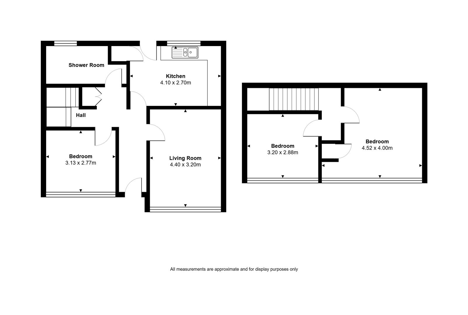
GROUND FLOOR

Entrance
uPVC double glazed front door to reception hall.

Reception Hall
Cornice ceiling, laminate wood effect floor, storage under stairs.

Living Room
4.27m’1.52m” x 3.05m’1.52m” (14’5” x 10’5”) - Laminate wood effect floor, cornice ceiling.

Kitchen with Casual Dining Area
3.96m’2.13m” x 2.44m’2.74m” at widest points (13’7 - Range of high and low level units, granite effect work surfaces, one and a half
bowl single drainer stainless steel sink unit with mixer tap, space for cooker,
stainless steel splashback, stainless steel extractor fan above, plumbed for
washing machine, larder, gas fired boiler, part tiled walls, uPVC double glazed
door to outside.

Bedroom Three
3.05m’1.52m” x 2.74m’0.30m” (10’5” x 9’1”) - Laminate wood effect floor, cornice ceiling

Shower Room
Three piece suite comprising shower cubicle, pedestal wash hand basin, mixer
tap, low flush WC, part tiled walls.

FIRST FLOOR

Landing
Storage in eaves, access to roof space.

Bedroom One
3.96m’0.30m” x 3.66m’0.91m” at widest points (13’ - Laminate wood effect floor, built-in wardrobe.

Bedroom Two
3.05m’1.52m” x 2.74m’2.13m” (10’5” x 9’7”) - Laminate wood effect floor.

OUTSIDE
Tarmac driveway to front with parking, outside tap, excellent degree of
privacy and sunny aspect but also provides ample room to extend subject to
necessary approvals.


Bangor is a beautiful seaside town located just over 13 miles from Belfast. Bangor offers a wide variety of property with something to suit all.

Bangor Marina is one of the largest in Ireland and attracts plenty of visitors when the sun shows its face. Tourism is a big factor in this part of the world.

Property Ref: 45704_34167857

Share:

Similar Properties

13 Rosemary Drive

3 Bedroom Semi-Detached House | £175,000

Perfectly positioned within a highly regarded and convenient residential area, 13 Rosemary Drive presents an excellent o...

Kinwood Grange, Bangor

3 Bedroom Townhouse | £175,000

Perfectly positioned in a highly sought-after residential area, 7 Kinwood Grange presents a rare opportunity to acquire...

130 Linen Crescent

3 Bedroom Townhouse | £174,950

Located in this extremely popular residential area here is an ideal opportunity to purchase an attractive end town house...

8 Silverstream Crescent

3 Bedroom End of Terrace House | £180,000

Situated in a quiet and well-established residential neighbourhood, 8 Silverstream Crescent offers an excellent opportun...

Beaumont Grove, Bangor

3 Bedroom Semi-Detached House | £189,950

Tucked away at the end of a cul-de-sac within this popular residential area here is an ideal opportunity to purchase an...

119 Ashbury Road

3 Bedroom Semi-Detached House | £189,950

Here is an ideal opportunity to purchase a fantastic semi detached property located in this extremely popular residentia...

John Minnis Estate Agents (Bangor)

Bangor, Down, BT20 4AG

02891313833

How much is your home worth?

Use our short form to request a valuation of your property.

Request a Valuation

Mortgage Calculator

Amount Borrowed: £
Total Amount Repayable: £
Total Monthly Payment: £
©2026 The Guild of Property Professionals. All rights reserved. Terms and Conditions | Privacy Policy | Cookie Policy | Complaints Policy | Members Login
The Guild of Property Professionals Trading Address: 121 Park Lane, London W1K 7AG. GPEA Limited. Registered in England & Wales.  Company No: 02819824.  Registered Office Address: 2 St. Stephen's Court, St. Stephen's Road, Bournemouth, Dorset, England, BH2 6LA.  VAT Registration No: 576 8795 61
Book a Property Valuation Update Cookies Preferences