20 Ballymaconnell Road South

£244,950
SSTC
This property listing is now SSTC

4 Bedroom Detached House for sale in BANGOR

2 4 1


•Detached Property Occupying an Extremely Private Site in Popular Residential Area
•Bright, Spacious and Flexible Accommodation
•Open Plan Living Room to Casual Dining Area with Brick Fireplace
•Kitchen with Casual Dining Area
•Four Bedrooms, Two of Which are on the Ground Floor, One of the Ground Floor Bedrooms Could be an Additional Reception Room
•Ground Floor Bathroom with Three Piece Suite
•First Floor Shower Room with Three Piece Suite
•Oil Fired Central Heating
•Double Glazed Windows
•Gardens in Lawns to Front, Side and Rear
•Driveway with Parking
•Detached Garage
•Ample Room to Extend Subject to Necessary Approvals
•In Close Proximity to Many Amenities Including Shops, Schools, Bus Routes, Ballyholme Beach and Village and Bloomfield Shopping Complex
•Demand is Anticipated to be High and to a Wide Range of Prospective Purchasers Including Young Professionals, Families, Investors and Those Looking to Downsize
•Early Viewing Essential

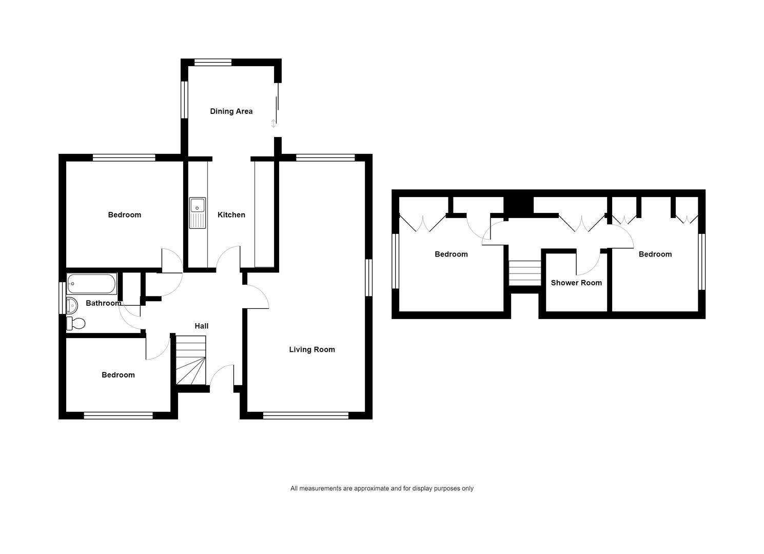
COVERED ENTRANCE PORCH:
() - uPVC double glazed front door, uPVC double glazed side panel to reception hall.

RECEPTION HALL:
() - Solid oak floor, storage cupboard.

LIVING ROOM OPEN PLAN TO CASUAL DINING AREA:
(7.87m x 3.73m) - at widest points narrowing to 9’1”
Brick fireplace, tiled hearth, open fire, cornice ceiling.

KITCHEN:
(6.35m x 2.49m) - at widest points
Range of high and low level solid oak units, granite effect work surfaces, Franke single bowl single drainer stainless steel sink unit with mixer tap, integrated Neff oven, integrated four ring hob, tiled splashback, extractor fan above, integrated dishwasher, plumbed for washing machine, space for tumble dryer, integrated fridge freezer, fully tiled floor, part tiled walls, casual dining area with double glazed sliding patio door to rear garden.

BEDROOM (3):
(3.68m x 3.33m) - Range of built-in furniture to include wardrobes, drawers, dressing table.

BEDROOM (4):
(3.33m x 2.39m) - Laminate wood effect floor.

BATHROOM:
() - Three piece suite comprising panelled bath with mixer tap, hand shower and Redring shower over, low flush WC, pedestal wash hand basin, shelved hotpress with lagged copper cylinder, fully tiled floor, part tiled walls.

STAIRS TO FIRST FLOOR:
()

LANDING:
() - Solid oak floor, storage in eaves.

BEDROOM (1):
(3.3m x 2.87m) - Built-in wardrobe, additional storage in eaves.

BEDROOM (2):
(2.9m x 2.74m) - Two built-in wardrobes, storage in eaves.

SHOWER ROOM:
() - Three piece suite comprising built-in fully tiled shower cubicle, low flush WC, pedestal wash hand basin, mixer tap, fully tiled floor.

Outside
() - Superb site tucked away off Ballymaconnell Road South, driveway and forecourt with parking, gardens in lawns to front, side and rear, detached garage, site has excellent degree of privacy and provides ample room to extend subject to necessary approvals, a fantastic place for children at play, outdoor entertaining or enjoying the sun.


Bangor is a beautiful seaside town located just over 13 miles from Belfast. Bangor offers a wide variety of property with something to suit all.
Bangor Marina is one of the largest in Ireland and attracts plenty of visitors when the sun shows its face. Tourism is a big factor in this part of the world.

Property Ref: 45704_34085277

Share:

Similar Properties

16 Ashford Avenue

3 Bedroom Detached Bungalow | £239,950

Located in this extremely popular residential area here is an ideal opportunity to purchase a fantastic extended detache...

72 Lynn Hall Place

3 Bedroom Semi-Detached House | £219,950

Situated within a popular and well-established development just off the Rathgael Road, 72 Lynn Hall Place is a beautiful...

14 Ashford Drive

3 Bedroom Detached Bungalow | £219,950

Located in this extremely popular residential area, here is an ideal opportunity to purchase a detached bungalow with no...

86 Chippendale Avenue

3 Bedroom Detached Bungalow | £249,950

Located in this extremely popular residential area here is an ideal opportunity to purchase an attractive detached bunga...

10 Groomsport Road

3 Bedroom Semi-Detached House | £249,950

Located right in the heart of the popular and highly sought after area of Ballyholme, Bangor, here is an ideal opportuni...

Irvine Crescent, Bangor

4 Bedroom House | £249,950

Tucked away within a cul-de-sac within this popular residential area here is an ideal opportunity to purchase a fantasti...

John Minnis Estate Agents (Bangor)

Bangor, Down, BT20 4AG

02891313833

How much is your home worth?

Use our short form to request a valuation of your property.

Request a Valuation

Mortgage Calculator

Amount Borrowed: £
Total Amount Repayable: £
Total Monthly Payment: £
©2026 The Guild of Property Professionals. All rights reserved. Terms and Conditions | Privacy Policy | Cookie Policy | Complaints Policy | Members Login
The Guild of Property Professionals Trading Address: 121 Park Lane, London W1K 7AG. GPEA Limited. Registered in England & Wales.  Company No: 02819824.  Registered Office Address: 2 St. Stephen's Court, St. Stephen's Road, Bournemouth, Dorset, England, BH2 6LA.  VAT Registration No: 576 8795 61
Book a Property Valuation Update Cookies Preferences