14 Ashbury Road

£209,950
SSTC
This property listing is now SSTC

4 Bedroom Semi-Detached House for sale in Bangor

2 4
  • Fantastic Semi Detached Home with No Onward Chain
  • Popular Residential Location
  • Living Room with Laminate Wood Effect Floor
  • Superb Modern Fitted Kitchen with Quartz Worktops, Upstands, Window Sills, Range of Integrated Appliances, Open Plan to Casual Dining/Family Area
  • Casual Dining/Family Area with uPVC Double Glazed French Doors onto the Rear Garden
  • Four Bedrooms
  • Bathroom with Three Piece Suite
  • Phoenix Gas Heating
  • uPVC Double Glazed Windows
  • Front Garden in Lawns

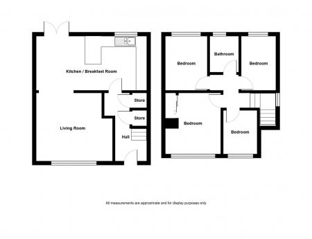
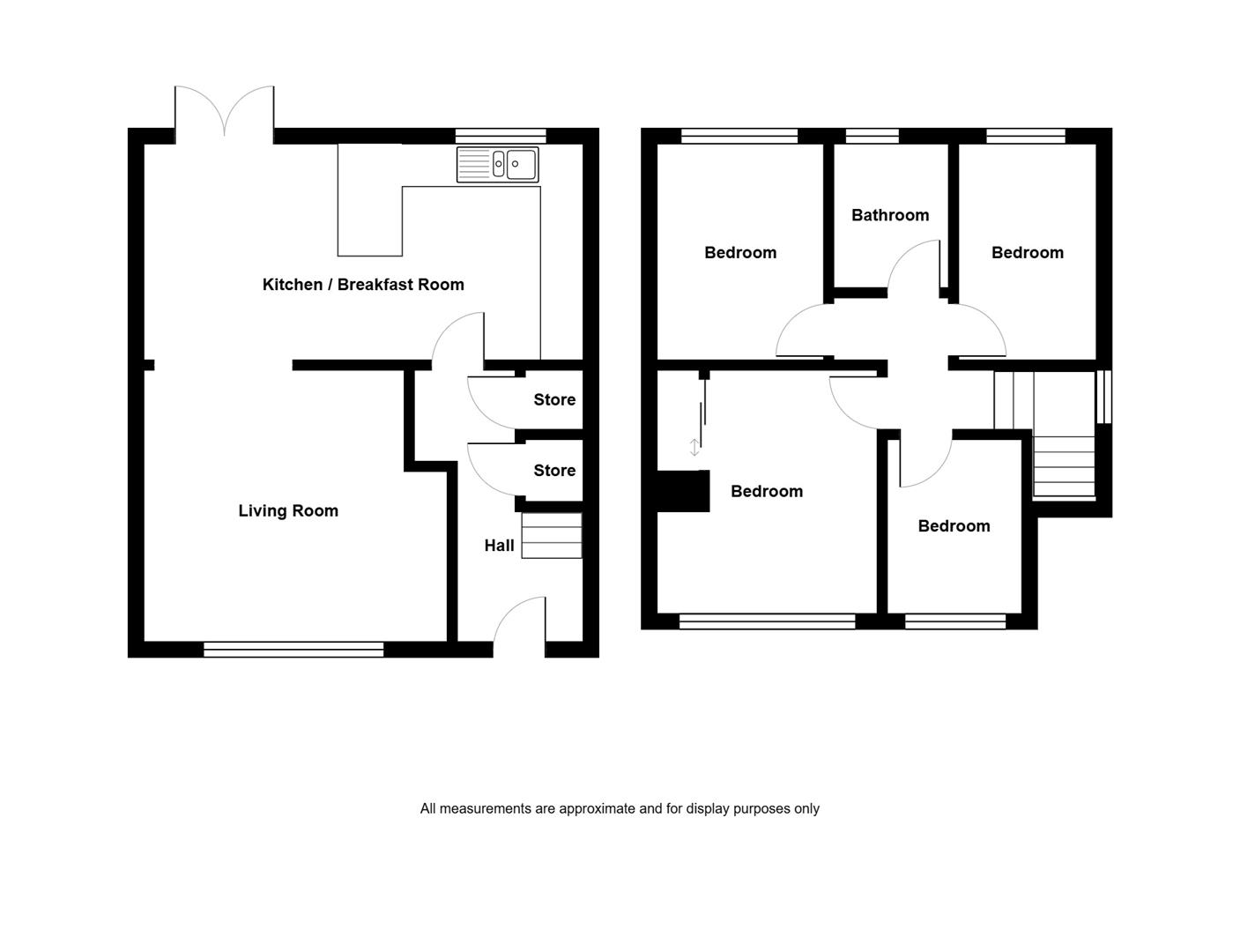
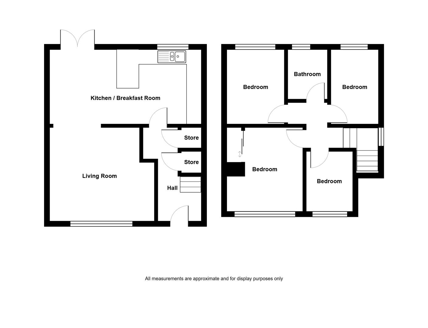
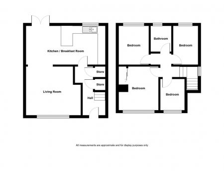
Entrance
() - uPVC double glazed front door with uPVC double glazed side panels to reception hall.

RECEPTION HALL:
() - Laminate wood effect floor, storage cupboard under stairs.

SUPERB MODERN FITTED KITCHEN OPEN PLAN TO CASUAL D
(6.22m x 3.05m) - at widest points
Recently installed fitted kitchen with range of high and low level high gloss units, quartz work surfaces, one and a half bowl stainless steel sink unit with mixer tap, matching quartz drainer, integrated four ring gas hob, quartz splashback, extractor fan above, integrated oven, integrated microwave, integrated fridge freezer, integrated dishwasher, laminate wood effect floor, quartz upstands and window sills, quartz breakfast bar, dining/family area with laminate wood effect floor, uPVC double glazed French doors to rear garden, archway to living room.

LIVING ROOM:
(4.24m x 3.84m) - at widest points
With laminate wood effect floor.

LANDING:
() - Access to roofspace.

BEDROOM (1):
(3.4m x 3.18m) - into robes at widest points
Laminate wood effect floor, double built-in wardrobe.

BEDROOM (2):
(3.07m x 2.36m)

BEDROOM (3):
(3.07m x 2.29m) - at widest points

BEDROOM (4):
(2.39m x 1.98m) - Laminate wood effect floor.

BATHROOM:
() - Three piece suite comprising panelled bath with mixer tap and shower over, pedestal wash hand basin with mixer tap, low flush WC, laminate tile effect floor.

Outside
() - Front garden in lawns, tarmac driveway with parking leading to attached garage.

GARAGE:
(5.18m x 2.62m) - at widest points
Currently partitioned to provide storage and utility room, storage, roller door, power and light.

UTILITY ROOM:
(3.07m x 2.62m) - at widest points
Storage cupboards, single bowl double drainer sink unit with mixer tap, plumbed for washing machine, gas fired boiler, uPVC double glazed door to rear garden.

Outside.
() - Outstanding fully enclosed rear garden with lawns, timber decked terrace, outside tap and south westerly aspect making it ideal for children at play, outdoor entertaining or enjoying the sun.

AML
As part of our obligations under the Money Laundering, Terrorist Financing and Transfer of Funds (Information on the Payer) Regulations 2017, all Estate Agents are required to verify the identity of purchasers involved in a property transaction.
To comply with these obligations, all purchasers will be required to complete Customer Due Diligence (AML) identity checks. These checks are carried out on our behalf by our trusted third-party provider, Thirdfort.
A charge will apply of £20 + VAT per purchaser.

Property Ref: 45704_34012970

Share:

Similar Properties

62 Towerview Avenue

3 Bedroom Semi-Detached House | £209,950

Located in this extremely popular residential area here is an ideal opportunity to purchase a fantastic extended semi de...

6 Tinto Crescent

3 Bedroom House | £209,950

Positioned on a prime site at the end of a cul-de-sac within a popular residential area, this sale offers the opportunit...

9 Rathgael Road

3 Bedroom Detached House | Offers Over £200,000

This detached three-bedroom home is situated on a generous corner site in a highly convenient and well-established area...

16 Killeen Avenue

3 Bedroom Semi-Detached House | Asking Price £215,000

Located within the ever-popular Bangor West area, 16 Killeen Avenue presents an excellent opportunity to acquire a beaut...

14 Ashford Drive

3 Bedroom Detached Bungalow | £219,950

Located in this extremely popular residential area, here is an ideal opportunity to purchase a detached bungalow with no...

72 Lynn Hall Place

3 Bedroom Semi-Detached House | £219,950

Situated within a popular and well-established development just off the Rathgael Road, 72 Lynn Hall Place is a beautiful...

John Minnis Estate Agents (Bangor)

Bangor, Down, BT20 4AG

02891313833

How much is your home worth?

Use our short form to request a valuation of your property.

Request a Valuation

Mortgage Calculator

Amount Borrowed: £
Total Amount Repayable: £
Total Monthly Payment: £
©2026 The Guild of Property Professionals. All rights reserved. Terms and Conditions | Privacy Policy | Cookie Policy | Complaints Policy | Members Login
The Guild of Property Professionals Trading Address: 121 Park Lane, London W1K 7AG. GPEA Limited. Registered in England & Wales.  Company No: 02819824.  Registered Office Address: 2 St. Stephen's Court, St. Stephen's Road, Bournemouth, Dorset, England, BH2 6LA.  VAT Registration No: 576 8795 61
Book a Property Valuation Update Cookies Preferences