Shandon Close, Bangor

Offers in region of
£479,950
SSTC
This property listing is now SSTC

6 Bedroom House for sale in Bangor

3 6 3

Located in a small gated development of only four properties here is an ideal opportunity to purchase a substantial detached family home tucked away off the popular and prestigious Shandon Drive in Bangor, offering excellent convenience to the many local amenities which include Ballyholme beach and village, sailing clubs, Ballyholme Esplanade and Bangor centre itself.

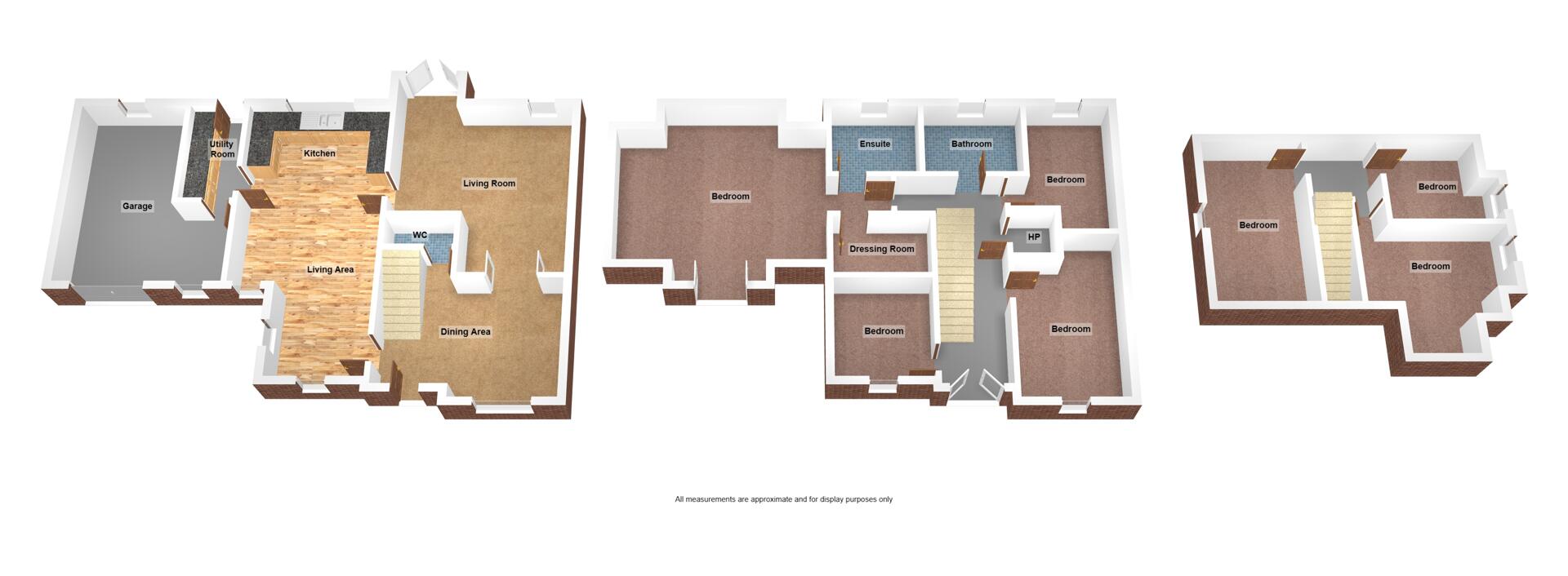
The property has bright, spacious and flexible accommodation providing a range of different layouts to suit the needs of the owners. The ground floor comprises a spacious dining/entrance hall with attractive carved oak fireplace and gas coal effect fire, good size fitted kitchen open plan to casual dining/family area and living room with attractive oak fireplace, gas coal effect fire and uPVC double glazed French doors onto the rear garden. Upstairs on the first floor you have three bedrooms including main bedroom with en suite shower room and dressing room. One of those bedrooms could be used as an additional reception room if required. You also have a bathroom, with four piece suite to include bath and separate shower, and that all important home office. Finally, on the second floor, there are three bedrooms, two of which have views to Ballyholme Bay.

Outside the property sits on a spacious site with gardens in lawns to front, side and rear. The rear garden has an extensive timber decked terrace which is an ideal spot to take in the views to Ballyholme Bay. Other benefits include Phoenix Gas heating, uPVC double glazed windows, downstairs WC, utility room, integrated garage and pressurised water system.

Demand is anticipated to be high and from a wide range of prospective purchasers. We can therefore recommend viewing at your earliest opportunity so as to appreciate it in its entirety.

.Substantial Detached Family Home with Huge Potential
.Located in a Small Private Development of Only Four Properties
.Popular and Prestigious Ballyholme Location Off Shandon Drive
.Bright, Spacious and Flexible Accommodation
.Living Room with Attractive Oak Fireplace, Gas Coal Effect Fire
.uPVC Double Glazed French Doors to the Rear Garden
.Dining/Reception Hall with Attractive Oak Fireplace and Gas Coal Effect Fire
.Large Open Plan Kitchen to Casual Dining/Family Area
.Separate Utility Room
.Six Bedrooms
.Main Bedroom with En Suite Shower Room and Dressing Room
.One of the Bedrooms Could be Used as an Additional Reception Room
.That All Important Home Office
.First Floor Bathroom with Four Piece Suite
.Additional Downstairs WC
.Phoenix Gas Heating
.uPVC Double Glazed Windows
.Pressurised Water System
.Gardens in Lawns to Front, Side and Rear
.Driveway in Brick Paviour with Parking
.Integral Garage
.Convenient Location in Close Proximity to Many Amenities

First Floor -

Entrance - Front door with double glazed inset to reception/dining hall.

Reception/Dining - 4.88m x 3.68m (16' x 12'1) - Fully tiled floor, oak fireplace surround, granite inset and hearth and gas coal effect fire.

Downstairs Wc - Two piece suite comprising low flush WC, pedestal wash hand basin, fully tiled floor, extractor fan.

Living Room - 5.41m x 4.88m (17'9 x 16'0) - French doors with glazed and bevelled insets from reception/dining hall, attractive carved oak fireplace surround, granite inset and hearth, gas coal effect fire, uPVC double glazed French doors to the rear garden.

Kitchen - 8.38m x 4.17m (27'6 x 13'8) - Range of high and low level Shaker style units, granite effect work surfaces, one and a half bowl single drainer stainless steel sink unit with mixer tap, integrated Bosch oven, integrated four ring gas hob, tiled splashback, extractor fan above, integrated dishwasher, integrated fridge, integrated freezer, glass display cabinets, built-in lighting, tiled floor, part tiled walls

Utility Room - Storage cupboards, granite effect work surfaces, single bowl single drainer stainless steel sink unit with mixer tap, plumbed for washing machine, fully tiled floor, part tiled walls, door to outside, door to integral garage.

Integral Garage - 5.59m x 4.72m (18'4 x 15'6) - Up and over door, power, light, gas fired boiler.

Second Floor -

Landing - Shelved airing cupboard with pressurised water system, uPVC double glazed French doors to Juliet balcony.

Bedroom One - 5.97m x 4.14m (19'7 x 13'7) - En Suite Shower Room : Three piece suite comprising built-in fully tiled shower cubicle, pedestal wash hand basin, low flush WC, fully tiled floor, extractor fan.

Dressing Room

Bedroom Four - 4.32m x 2.59m (14'2 x 8'6) -

Bedroom Five - 4.83m x 3.05m (15'10 x 10'0) -

Office/Bedroom Seven - 2.92m x 2.79m (9'7 x 9'2) -

Bathroom - Four piece suite comprising panelled bath with mixer tap, telephone hand shower, separate built-in fully tiled shower cubicle, low flush WC, pedestal wash hand basin, tiled splashback, fully tiled floor, part tiled walls, extractor fan.

Third Floor -

Bedroom Two - 4.90m x 2.90m (16'1 x 9'6) - Storage in eaves

Bedroom Three - 4.19m x 3.58m (13'9 x 11'9) - Views to Ballyholme Bay, access to roofspace.

Bedroom Six - 3.20m x 2.51m (10'6 x 8'3) - Storage in eaves, views to Ballyholme Bay.

Outside - Gardens in lawns to front, side and rear, driveway in brick paviour leading to integrated garage, good size rear and side gardens, rear garden has an extensive raised timber decked terrace which is an ideal spot to take in views to Ballyholme Bay.

As part of our obligations under the Money Laundering, Terrorist Financing and Transfer of Funds (Information on the Payer) Regulations 2017, all Estate Agents are required to verify the identity of purchasers involved in a property transaction.

To comply with these obligations, all purchasers will be required to complete Customer Due Diligence (AML) identity checks. These checks are carried out on our behalf by our trusted third-party provider, Thirdfort.

A charge will apply of ?20 + VAT per purchaser.

Bangor is a beautiful seaside town located just over 13 miles from Belfast. Bangor offers a wide variety of property with something to suit all.

Bangor Marina is one of the largest in Ireland and attracts plenty of visitors when the sun shows its face. Tourism is a big factor in this part of the world.

Property Ref: 34479626

Share:

Similar Properties

4 Shore Street

4 Bedroom Terraced House | Offers in region of £474,950

Surely one of the last opportunities to purchase a property in the heart of Donaghadee with residential and commercial d...

6 Warren Villas

4 Bedroom Semi-Detached House | Offers in region of £439,950

Commanding a superb elevated site with panoramic views over Donaghadee Sound, the Irish Sea and across to Scotland, 6 Wa...

134 Warren Road

5 Bedroom Detached House | Offers in region of £434,950

Located along the prestigious Warren Road in Donaghadee here is an ideal opportunity to purchase a fantastic detached re...

5 Stockbridge Park

4 Bedroom Detached House | Offers in region of £489,950

Situated in a quiet cul-de-sac off Stockbridge Road, this superb detached home offers a bright, modern and flexible layo...

3 Newtownards Road

5 Bedroom House | Offers in region of £499,950

An opportunity to acquire an exceptional detached family home, this property showcases how to tastefully renovate and mo...

Newtownards Road, Donaghadee

5 Bedroom Detached House | Offers in region of £529,950

Situated on the outskirts of the picturesque coastal town of Donaghadee, this exceptional detached family home offers ch...

John Minnis Estate Agents (Donaghadee)

Donaghadee, County Down, BT21 0AG

028 9188 8881

How much is your home worth?

Use our short form to request a valuation of your property.

Request a Valuation

Mortgage Calculator

Amount Borrowed: £
Total Amount Repayable: £
Total Monthly Payment: £
©2026 The Guild of Property Professionals. All rights reserved. Terms and Conditions | Privacy Policy | Cookie Policy | Complaints Policy | Members Login
The Guild of Property Professionals Trading Address: 121 Park Lane, London W1K 7AG. GPEA Limited. Registered in England & Wales.  Company No: 02819824.  Registered Office Address: 2 St. Stephen's Court, St. Stephen's Road, Bournemouth, Dorset, England, BH2 6LA.  VAT Registration No: 576 8795 61
Book a Property Valuation Update Cookies Preferences