The Mead, Timsbury, Bath

£695,000

4 Bedroom Detached House for sale in Bath

2 4 3
  • Detached spacious family home
  • End of cul-de-sac location
  • Four good size bedrooms and two ensuites
  • Spacious L shaped lounge diner
  • Rear extra reception room
  • Generous size hallway
  • Double garage with further off street parking for four vehicles
  • Wrap around landscaped gardens
  • Utility room with large pantry style cupboard
  • Well located for St Mary's C of E Primary School

This beautifully presented and is a well designed spacious four bedroom detached home in excellent decorative order, is part of a small and exclusive development and pleasantly positioned at the end of a quiet cul-de-sac.

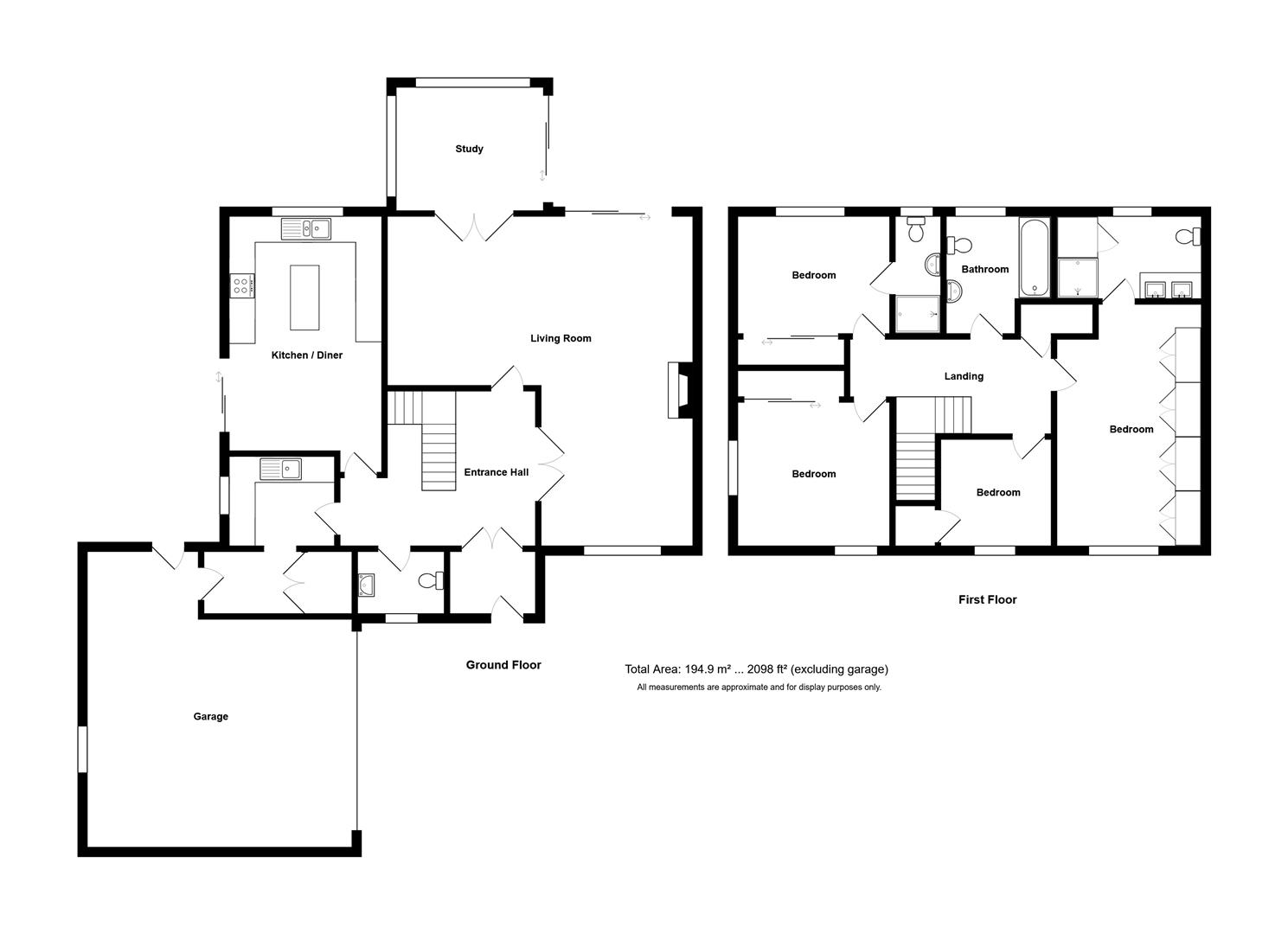
The accommodation begins with an entrance lobby which leads into a generous central hallway, from which the majority of the ground floor rooms flow. To the right is a substantial L-shaped lounge/dining room, with a further reception room to the rear that would make an ideal office, playroom, or garden room. To the left of the hallway is a well-presented kitchen, along with a utility room featuring a generous pantry style cupboard. The ground floor accommodation is completed by a cloakroom.

The first floor offers four well proportioned bedrooms, all of which benefit from spacious built-in storage. Two of the bedrooms enjoy en-suite facilities and are complemented by a further family bathroom.

Externally, the property benefits from a low maintenance driveway leading to a generous double garage. The gardens are well landscaped and wrap around the property, they enjoy open views across the adjacent sports field towards Farmborough Common.

The village of Timsbury lies approximately five miles south of the Georgian city of Bath, which offers a wide range of educational and cultural amenities. Timsbury itself provides a good selection of local facilities including a pharmacist, St Mary's primary school with an OFSTED rating of outstanding, church, doctor's surgery, tea room, and public house, two hairdressers, fish and chip shop along with a bus service to Bristol and Bath. Road access to the major cities of Bristol and Bath is excellent, with Keynsham and Midsomer Norton also close by.

The property enjoys the unusual advantage of a distinctly rural feel with some lovely views over the countryside, while being conveniently located within a short walk of the village primary school and a good selection of local facilities including the Co-op store and Spar shop. Access to Bristol Airport is just 30 minutes away.

Ground Floor -

Entrance Lobby - 2.02 x 1.37 (6'7" x 4'5") - Entry is through a modern front door with an attractive half-moon frosted glazed panel, with a double glazed side window allowing natural light to fill the space. Karndean wood effect flooring. A coved ceiling adds a touch of character and glazed panel doors lead through to the main hallway.

Hallway - 3.65 x 3.53 ext 4.63 (11'11" x 11'6" ext 15'2") - Kardean wood effect flooring with the benefit of underfloor heating. Two radiators. Wall mounted heating controls and security alarm control. A staircase rises to the first floor with a useful under stairs storage cupboard.

Lounge Area & Dining Area - 7.77 x 3.58 & 3.98 x 3.68 (25'5" x 11'8" & 13'0" x - Accessed from the hallway via double glazed panel doors, this is a particularly light and welcoming room featuring a double glazed window to the front and double glazed patio doors to the rear. The room is centred around a gas fireplace with an attractive white marble surround, mantle, and hearth. Further features include a coved ceiling, three radiators and wall lighting.

The dining area can also be accessed independently from the hallway via a glazed panel door and offers plenty of space for a dining table, along with the benefit of a serving hatch. From here, a further glazed panel door leads through to the office/garden room.

Office / Garden Room - 3.50 x 2.62 (11'5" x 8'7") - A delightful and versatile room positioned at the rear of the property, beautifully overlooking the landscaped garden through triple glazed windows to both the side and rear. Flooded with natural light, the space is enhanced by a striking vaulted ceiling that adds character and a sense of openness. Double glazed patio doors open directly onto a patio and an attractive garden area, creating a seamless connection between indoor and outdoor living. Heated by a radiator, this charming room offers the perfect setting for a home office, a peaceful reading nook, or a tranquil garden retreat.

Kitchen - 5.56 x 3.58 (18'2" x 11'8") - A bright and spacious kitchen with a double glazed window to the rear and a double glazed patio door to the side, both providing delightful views of the wrap around garden and direct access to the outdoor space and second patio. The kitchen is fitted with a comprehensive range of wood fronted wall and base units, offering ample storage through cupboards and deep drawers, all topped with elegant quartz work surfaces and complemented by a stylish tiled splashback. A central island provides additional storage with further deep drawers and extra workspace, ideal for meal preparation or casual dining.

The kitchen features a double inset stainless steel sink with a modern mixer tap and macerator, tiled flooring with underfloor heating as well as a radiator and a coved ceiling for a refined finish. A serving hatch connects seamlessly to the dining area, enhancing the flow for entertaining. There is a modern Bosch dishwasher and space for a American style fridge freezer. Built-in appliances include an AEG double oven with a warming drawer below and an electric hob, while the layout allows room for a breakfast table, creating a practical yet inviting hub for family life.

Utility And Side Lobby - 2.49 x 2.08 & 3.33 into cupboard x 1.47 (8'2" x 6 - A practical and well appointed utility room featuring a double glazed window that offers natural light. The room is fitted with cream wall and base units, complemented by laminate worktops and a tiled splashback for a clean, functional finish. An inset sink with a chrome mixer tap provides convenience for household tasks, while tiled flooring ensures durability and easy maintenance.

There is space for a washing machine and tumble dryer, with a radiator providing additional warmth. Double doors open into a pantry style cupboard, ideal for additional storage. A matting area is placed in front of a door leading to the outside, and a further door provides direct access to the garage, creating a practical and versatile utility space.

Cloakroom - 1.37 x 2.06 (4'5" x 6'9") - Double glazed frosted window providing natural light and privacy. Low level WC, radiator and vanity wash hand basin. Karndean flooring, part tiled walls and a coved ceiling.

First Floor -

Landing - Large walk-in airing cupboard. Radiator. Loft access to a fully boarded and insulated loft

Master Bedroom - 5.94 x 3.58 to back of wardrobes (19'5" x 11'8" to - An impressive sized room with double glazed windows to the front aspect. Eight generous built in wardrobes with full length mirrors, a dedicated dressing table area, coved ceiling with spotlights and wall mounted lighting.

Ensuite - 3.46 x 1.70 (11'4" x 5'6") - Double glazed window. Double vanity wash basins with mixer taps and integrated rechargeable toothbrush stands with two mirrors above which have light surrounds with on off controls and a motion sensor nightlight.. Shower enclosure with glass sliding door, thermostatic control, rainfall shower and additional handheld shower. WC, shaver point, heated towel rail, ceiling spotlights, built in cupboard with shelving a radiator and fully tiled walls.

Bedroom 2 - 2.78 to wardrobe x 3.59 (9'1" to wardrobe x 11'9") - Double glazed window with a rear aspect. Spacious built in wardrobes providing shelf and hanging solutions. Coved ceiling and radiator.

Ensuite - 2.56 x 0.99 (8'4" x 3'2") - Double glazed frosted window. Shower enclosure with glass sliding door and thermostatic shower. Pedestal wash hand basin with tiled splashback, low level WC, heated towel rail, vinyl flooring and ceiling spotlights.

Bedroom 3 - 3.60 x 3.39 (11'9" x 11'1") - Dual aspect double glazed windows. Coved ceiling. Spacious built in wardrobes with sliding doors, offering a combination of hanging space and shelving.

Bedroom 4 - 2.51 x 2.37 (8'2" x 7'9") - Double glazed window. Radiator. Coved ceiling. Spacious walk in cupboard 1.32m x 1.08m

Family Bathroom - 2.78 narrows to 1.90 x 2.47 narrows to 1.20 (9'1" - Double glazed frosted window. Panel bath with thermostatic shower over and chrome taps. Wash hand basin with chrome taps and tiled splashback, low level WC, heated towel rail, mirror with a light surround which comes on in the dark part tiled walls and vinyl flooring.

Garage - 6.07 x 5.29 ext 7.01 (19'10" x 17'4" ext 22'11") - Large double garage with electric up and over door which can be operated from the utility room or by hand and personal door providing access to the garden. Electric consumer box and Worcester boiler. There is generous shelving and a fully boarded large storage loft which can be accessed via a loft ladder.

Outside - The front of the property is approached via a low maintenance Avon Cobblestone driveway leading to the garage and front door, with flower beds adding a touch of colour. Side access leads to the wrap around garden, featuring a split level seating area enclosed by fencing. At the rear, there is a well maintained lawn with flower bed borders and a patio area, perfect for alfresco dining. The garden is fully enclosed with outside power points, good outside lighting, tap and hose wall mounted on a reel, water butt and offers attractive views. External security lights.

Tenure - Freehold

Council Tax - According to the Valuation Office Agency website, cti.voa.gov.uk the present Council Tax Band for the property is F. Please note that change of ownership is a 'relevant transaction' that can lead to the review of the existing council tax banding assessment.

Additional Information - Local authority. Bath And North East Somerset
Services. All services connected
Broadband. Superfast 52mps Source Ofcom
Mobile phone. EE & Three variable outdoor signal. O2 & Vodafone good outdoor signal. Source Ofcom
Property is located with in a coal mining reporting area
The field behind the property has had a planning application submitted for new houses. See BANES planning site for more details

Property Ref: 34471607

Share:

Similar Properties

Fairways, Saltford

4 Bedroom Detached Bungalow | Offers in region of £695,000

This extended detached bungalow originally dates from 1960's and has been transformed by a substantial rear extension an...

Manor Road, Saltford, Bristol

4 Bedroom Detached House | £690,000

A wonderful modern four-bedroom detached home in the popular village of Saltford Located in the heart of Saltford, this...

Norman Road, Saltford, Bristol

3 Bedroom Barn Conversion | Guide Price £685,000

This delightful detached barn conversion forms part of a small group of properties in a backwater location on the northe...

Bath Road, Swineford, Bristol

4 Bedroom Detached House | Guide Price £700,000

Crofton Cottage is a delightful detached period cottage with a south-west facing level garden and a long frontage to the...

Montague Road, Saltford, Bristol

3 Bedroom Detached House | Offers in excess of £700,000

The property comprises a detached home in a popular and sought after location, presented to a high standard throughout,...

High Street, Saltford, Bristol

4 Bedroom Detached House | £745,000

Mullions is a delightful detached period village house built chiefly in stone with a tiled roof named no doubt after its...

Davies & Way (Saltford)

489 Bath Road, Saltford, Bristol, BS31 3BA

01225 400400

How much is your home worth?

Use our short form to request a valuation of your property.

Request a Valuation

Mortgage Calculator

Amount Borrowed: £
Total Amount Repayable: £
Total Monthly Payment: £
©2026 The Guild of Property Professionals. All rights reserved. Terms and Conditions | Privacy Policy | Cookie Policy | Complaints Policy | Members Login
The Guild of Property Professionals Trading Address: 121 Park Lane, London W1K 7AG. GPEA Limited. Registered in England & Wales.  Company No: 02819824.  Registered Office Address: 2 St. Stephen's Court, St. Stephen's Road, Bournemouth, Dorset, England, BH2 6LA.  VAT Registration No: 576 8795 61
Book a Property Valuation Update Cookies Preferences