Cameley Green, Bath

Guide Price
£300,000
SSTC
This property listing is now SSTC

3 Bedroom Semi-Detached House for sale in Bath

2 3 1
  • Semi Detached House
  • Three Bedrooms
  • Two/Three Receptions Rooms
  • Study/Utility Room
  • Chain free
  • Excellent Gardens
  • Parking Spaces
  • Cul-de-sac location
  • Log Burner
  • Gas centrally heated

An attractive looking Semi-detached property, that has undergone refurbishment, including solid wall insulation, over recent years, as well as extended to the side, providing an excellent family home or investment property.
The property is settled within a development surrounded by green and boast far reaching views to the rural surroundings. A very affordable home that allows access into Bath with ease as well as the surrounding towns and villages.
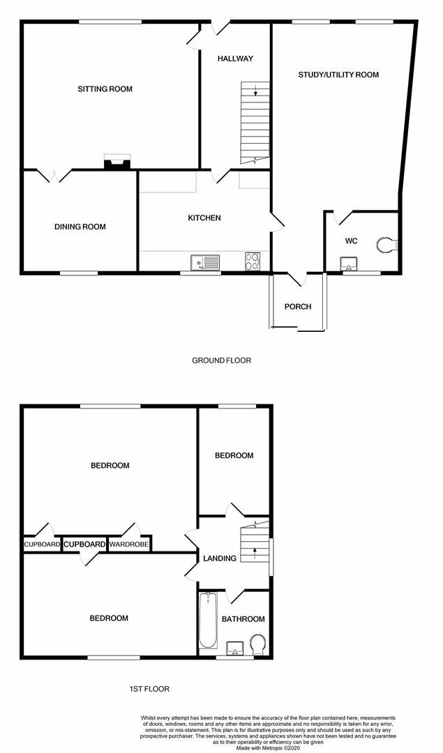
The accommodation comprises; entrance hallway, a tastefully decorated sitting room with the wide windows allowing the light to flood in and comes with a feature log burner and French doors to the rear that can open into the dining room if required. The kitchen overlooks the rear and has ample storage space. This open into the dining room which has a parquet floor. To the other side of the kitchen, you enter into the new extension that offers a study/utility room, cloak room and in rear uPVC porch that gives access to the rear garden.
The first floor offers a modern bathroom with a white suite and tiled walls plus three sizeable bedrooms. Two of which have fitted storage cupboards.
Externally the front garden is well kept laid to planted borders and an area of lawn by the tree. The rear garden is delightful with a hedge border, mainly laid to lawn, plus there is a decked area for seating immediately to the rear of the house, The bottom of the garden is a shingle seating area. There is also a Summer House, shed and log store.
The views towards Newton St Loe, Kelston and beyond can be enjoyed from the rear of the property. The final bonus with this property is the parking, bricked paved for two cars and a further space next to it on the road.

Twerton village is located south of the river in Bath. It offers a convenient location offering a range of shopping facilities, including a chemist, caf�, bakery, take away, hairdressers and mini supermarket. The local schools include Twerton Infants and St Michaels School.

Ground Floor -

Hallway - Double glazed obscure door to the front aspect, textured ceiling, smoke alarm, stairs leading to the first floor, radiator and laminate flooring.

Kitchen - 3.16m x 2.61m (10'4" x 8'6" ) - Double glazed window to the rear aspect, a range of wall and base units, tiled splash backs and laminate work surfaces, stainless steel sink/drainer with mixer tap, integral four ring gas hob with an extractor hood over, integral electric oven, space for fridge, dishwasher and laminate flooring.

Dining Room - 3.13m x 2.59m (10'3" x 8'5" ) - Double glazed window to the rear aspect, radiator, parquet flooring. French doors to the Sitting room.

Sitting Room - 4.14m x 3.62m (13'6" x 11'10" ) - Double window to the front aspect, French doors leading to the dining room, wood burner with a granite hearth, plumbing for a radiator and television point.

Office/Study - 3.08m x 3.47m max (10'1" x 11'4" max) - Two double glazed obscure windows to the front aspect, double glazed obscure door to the rear aspect, wall mounted Worcester boiler, base units with laminate work surfaces, space for washing machine, tumble dryer, fridge/freezer and tiled flooring.

Cloakroom - 1.77m x 0.89m (5'9" x 2'11") - Double glazed obscure window to the rear aspect, low level WC, pedestal wash hand basin, partially tiled walls and tiled floor.

Rear Porch - 1.65m x 1.75m (5'4" x 5'8") - Double glazed door to the rear aspect, polycarbonate roofing, wall light and tiled flooring.

First Floor -

Landing - Double glazed window to the side aspect, loft hatch and smoke alarm

Bedroom One - 3.72m x 3.70m (12'2" x 12'1" ) - Double glazed window to the front aspect, radiator and two built in storage cupboards.

Bedroom Two - 4.05m x 2.64m (13'3" x 8'7" ) - Double glazed window to the rear aspect, radiator and built in storage cupboard.

Bedroom Three - 2.80m x 2.64m (9'2" x 8'7" ) - Double glazed window to the front aspect, picture rail, dado rail and a radiator.

Bathroom - 2.15m x 1.66m (7'0" x 5'5" ) - Double glazed obscure window to the rear aspect, cove ceiling, travertine partially tiled walls, low level WC with a hidden cistern, vanity unit and wash hand basin, panel bath with mixer shower over, radiator and tiled flooring.

Front Garden - Planted border with wood chippings and area of lawn.

Rear Garden - Wooden fence and hedge surround, side access gate, mainly laid to lawn with fruit trees a shrubs, a decked area for seating immediately behind the house, a shingle area to the far corner, summer house, shed, log store and an outside tap.

Parking - Laid to block paving and provides space for two cars, There is also on street parking available..

Tenure - Freehold.

Council Tax - According to the Valuation Office Agency website, cti.voa.gov.uk the present Council Tax Band for the property is A. Please note that change of ownership is a 'relevant transaction' that can lead to the review of the existing council tax banding assessment.

Additional Information - Local authority. Bath and North East Somerset
Services. All main services connected
Broadband. Ultrafast 1000mps Source Ofcom
Mobile phone. EE O2 Three Vodafone outdoors all likely Source Ofcom
Steel Framed house. Check with you lender / broker about mortgages BISF

Property Ref: 589942_33685640

Share:

Similar Properties

Redland Park, Bath

3 Bedroom Terraced House | £280,000

A well-presented terraced home on the outskirts of Twerton.This attractive terraced property is positioned in a delightf...

Hallatrow Road, Paulton, Bristol

3 Bedroom Semi-Detached House | £275,000

Located on Hallatrow Road and set back with a lovely grassed area in front of the property and in the charming village o...

2 Collingwood Close, Saltford, Bristol

Plot | Guide Price £200,000

A great opportunity to purchase a single level building plot in a central desirable location in the village of Saltford,...

Bath Road, Saltford, Bristol

3 Bedroom House | £325,000

Located on Bath Road in Saltford, this charming three bedroom house offers a delightful blend of comfort and flexibility...

Ferenberge Close, Farmborough, Bath

3 Bedroom Semi-Detached House | £325,000

Located in Ferenberge Close, Farmborough, Bath, which is a tucked away location, this delightful semi-detached house off...

High Street, Pensford, Bristol

2 Bedroom House | Offers in excess of £325,000

Nestled in the picturesque village of Pensford, Bristol, this charming character cottage on High Street offers a delight...

Davies & Way (Saltford)

489 Bath Road, Saltford, Bristol, BS31 3BA

01225 400400

How much is your home worth?

Use our short form to request a valuation of your property.

Request a Valuation

Mortgage Calculator

Amount Borrowed: £
Total Amount Repayable: £
Total Monthly Payment: £
©2025 The Guild of Property Professionals. All rights reserved. Terms and Conditions | Privacy Policy | Cookie Policy | Complaints Policy | Members Login
The Guild of Property Professionals Trading Address: 121 Park Lane, London W1K 7AG. GPEA Limited. Registered in England & Wales.  Company No: 02819824.  Registered Office Address: 2 St. Stephen's Court, St. Stephen's Road, Bournemouth, Dorset, England, BH2 6LA.  VAT Registration No: 576 8795 61
Book a Property Valuation Update Cookies Preferences