Weston Road, Bath

Offers in excess of
£3,000,000
SSTC
This property listing is now SSTC

7 Bedroom Semi-Detached House for sale in Bath

5 7 3
  • 7 bedrooms
  • 3 bathrooms and WC
  • Large drawing room
  • Open plan kitchen/breakfast/family room
  • Addtional music room, study, library and scullery
  • Second floor studio/further bedroom
  • South facing walled garden to rear with sun terrace
  • Front garden with ample parking and garage with workshop
  • Log store and potting shed
  • Superbly positioned on the western side of the City of Bath

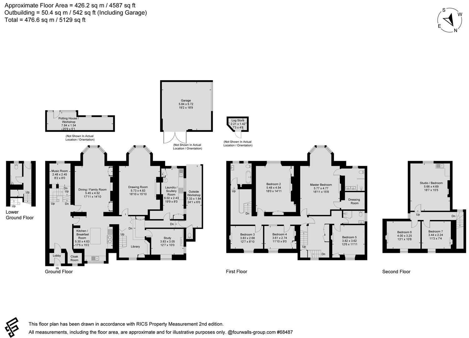
An exceptional, Grade II Listed, Georgian semi-detached residence located on the western side of the
City of Bath. This beautifully presented family home has versatile and lateral accommodation of over
4,500 sq ft, mainly over two floors. It boasts attractive period features throughout, has expansive
gardens to front and rear, ample parking, a spacious garage and enjoys a favoured position within a
few minutes' walk across Victoria Park to the Royal Crescent and City Centre, and to the West to
fields and rolling countryside.

Description - A spacious entrance hall with tessellated tiled floor, wonderful stone cantilevered staircase and
cloakroom leads to the principal rooms on the ground floor.
The open plan kitchen/dining/family room has ornate ceiling and cornicing, open fireplace and a full
height bay window allowing the sun to flood the room and gives wonderful views over the rear
garden. The contemporary styled kitchen has stylish black units and black granite worktops, central
island and features a black Aga with gas hob and electric oven.
Similarly south facing is the impressive drawing room with full height bay and stone fireplace. This
elegant room boasts ceiling cornicing and picture rail and polished wooden floorboards.
Leading on through to a rear library/hallway with floor to ceiling bookshelves and a back staircase to
the first floor. There is also a study with fire place and high ceiling. This area can be partitioned off
by a set of sliding doors.
At the end of the house lies the charming laundry/scullery, with tiled floor, a sink, electric oven and is
plumbed for a washing machine. It also houses the recently installed pressurised hot water system
and controls.
Accessed via the main staircase, there is a mezzanine room which is currently used as a music room
with lovely views over the rear garden.
The main staircase leads up to the generous landing, off which is the spacious principal bedroom
suite with south facing bay window, marble fireplace, luxury en-suite shower room and dressing
room. Next to this is a similarly large south facing bedroom with marble fireplace. Opposite these
are two further smaller bedrooms, ideal for children. There is also a guest room with a separate
shower room. A family bathroom completes the accommodation on the first floor.
At the top of the house lies a further three possible bedrooms. The largest of these faces the garden,
has a kitchenette and is currently used as an art studio.
The house benefits from plenty of storage throughout including large landing cupboards, understairs
cupboards, wine store and partially boarded loft space.

Gardens - From Weston Road, stone pillars lead into the front garden with a circular gravel driveway, ample
parking and featuring a magnificent blue cedar tree in the centre. Access to the garage is on the
right, which is currently used as a workshop with light, power and water, and potential for two
vehicles. Through a gateway at the side of the house lies a useful lean-to/outside workshop area and
gardener's WC.
The rear garden is bordered by a magnificent high stone wall, allowing privacy and security for small
children and pets. To the immediate rear of the house is a south facing terrace which benefits from
day-long sunshine. This is bordered by Italianate balustrade, beyond which is a large lawn. At the end
of the garden is an area with fire pit and stone benches, a wildflower meadow, a flowerbed planted
with Spring bulbs, and off to the right, a pathway to the spacious shed with power and light, veg
patches and compost area. This delightful garden has an array of mature trees including apple,
quince, medlar and fig, blackcurrant bushes, and is well stocked with shrubs and flowers.

Location - From Weston Road, stone pillars lead into the front garden with a circular gravel driveway, ample
parking and featuring a magnificent blue cedar tree in the centre. Access to the garage is on the
right, which is currently used as a workshop with light, power and water, and potential for two
vehicles. Through a gateway at the side of the house lies a useful lean-to/outside workshop area and
gardener's WC.
The rear garden is bordered by a magnificent high stone wall, allowing privacy and security for small
children and pets. To the immediate rear of the house is a south facing terrace which benefits from
day-long sunshine. This is bordered by Italianate balustrade, beyond which is a large lawn. At the end
of the garden is an area with fire pit and stone benches, a wildflower meadow, a flowerbed planted
with Spring bulbs, and off to the right, a pathway to the spacious shed with power and light, veg
patches and compost area. This delightful garden has an array of mature trees including apple,
quince, medlar and fig, blackcurrant bushes, and is well stocked with shrubs and flowers.

Further Information - Tenure: Freehold
Council: Bath & North East Somerset (Band G)
All mains services
Gas central heating with 4 zones (System upgraded in 2023/4)
Superfast broadband and satellite and cable TV availability

Property Ref: 230823_33386247

Share:

Similar Properties

Wellington Terrace, Clevedon

6 Bedroom Detached House | Offers in excess of £2,000,000

Stancliff is a striking Grade II listed late Georgian detached home set in an elevated position above Clevedon's seafron...

Top Sutton, Bishop Sutton, Bristol

5 Bedroom House | £1,750,000

A beautifully presented, L-shaped, 5 bedroom, stone-built house under a pantiled roof in over 3 ? acres of mature garden...

Hornblotton, Shepton Mallet

6 Bedroom Detached House | Offers in excess of £1,750,000

Rectory Farm is a distinguished Grade II listed Georgian farmhouse with later extension, set within around 5.5 acres of...

Peter Greatorex Unique Homes (Bath)

Bath, Somerset, BA1 1HE

01225 471144

How much is your home worth?

Use our short form to request a valuation of your property.

Request a Valuation

Mortgage Calculator

Amount Borrowed: £
Total Amount Repayable: £
Total Monthly Payment: £
©2026 The Guild of Property Professionals. All rights reserved. Terms and Conditions | Privacy Policy | Cookie Policy | Complaints Policy | Members Login
The Guild of Property Professionals Trading Address: 121 Park Lane, London W1K 7AG. GPEA Limited. Registered in England & Wales.  Company No: 02819824.  Registered Office Address: 2 St. Stephen's Court, St. Stephen's Road, Bournemouth, Dorset, England, BH2 6LA.  VAT Registration No: 576 8795 61
Book a Property Valuation Update Cookies Preferences