Daniel Street, Bath

Offers in excess of
£425,000
SSTC
This property listing is now SSTC

2 Bedroom Apartment for sale in Bath

1 2 1
  • Beautifully presented two-bedroom garden apartment in a Georgian townhouse in central Bath.
  • Prime location near Henrietta Park, Great Pulteney Street, and Bath's main attractions
  • Elegant period features
  • Stylishly refurbished to combine classic charm with modern comfort and d�cor
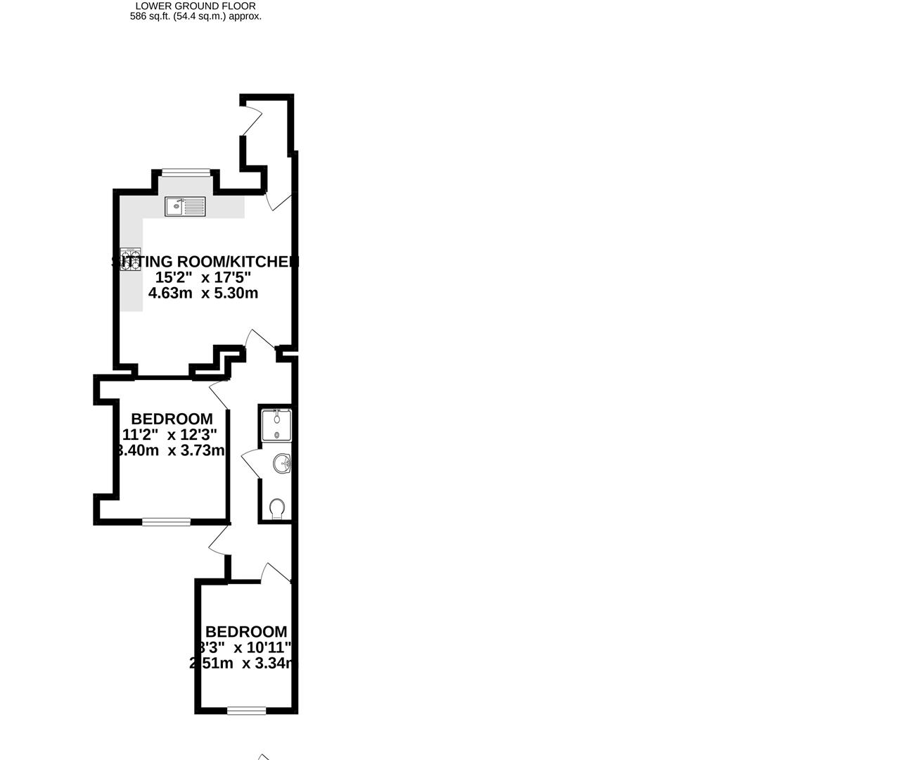
  • Spacious 15' sitting/dining room with large sash window
  • Fully fitted modern kitchen with integrated appliances and wooden worktops
  • Private landscaped garden with patio, lawn, and flower beds
  • Versatile second bedroom suitable for guests, study, or nursery
  • Successful short-term rental/holiday let history, offering excellent investment potential
  • GARAGE AVAILABLE BY SEPARATE NEGOTIATION

A beautifully presented two-bedroom garden apartment in a Bath townhouse in the Georgian centre of the city.
This elegant apartment offers well-proportioned accommodation and a rare private garden, all within easy reach of Henrietta Park, Great Pulteney Street, and Bath's many renowned attractions.
The property has been stylishly refurbished to combine period character with modern comfort, featuring wooden flooring, sash windows, and tasteful d�cor throughout. The property has been a successful short term rental/holiday let.

Description - Upon entering the property, you are greeted by a welcoming entrance hall and a convenient cupboard housing the meters.
From here, you move into a 15' spacious sitting/dining room. A large sash window to the front elevation fills the room with natural light, creating a bright and inviting atmosphere. The space comfortably accommodates both living and dining areas and features wooden flooring and contemporary styled radiators
The kitchen is fully fitted with a range of contemporary-styled units complemented by wooden worktops. It includes a sink with a mixer tap, integrated fridge, dishwasher, washing machine, oven, and a halogen hob with extractor fan above. A cupboard discreetly houses the boiler.
A hallway connects the main rooms and provides access to the private garden. It features a smoke alarm and continues the home's sense of light and space.
The principal bedroom offers a sash window overlooking the rear elevation, a shelved alcove, and wooden flooring, creating a calm and comfortable retreat.
The second bedroom has a double-glazed window to the rear and is ideal as a guest room, study, or nursery.
The bathroom features a modern white suite comprising a walk-in shower with glass screen , a low-level WC, a wash hand basin with dual taps and heated towel rail.
Outside, the garden offers a pleasant mix of a patio are, perfect for outdoor dining and a lawn bordered by landscaped flower beds, creating a peaceful private retreat.

Outside - The apartment benefits from a private landscaped garden, featuring a patio area, lawn, and flower bed rproviding a peaceful retreat perfect for outdoor dining or relaxation.

Location - Ideally positioned in central Bath, this exceptional apartment is just moments from Henrietta Park, the Holburne Museum, and Great Pulteney Street, with an array of independent shops, restaurants and the popular Pulteney Arms all close at hand. The city's main attractions and transport links are easily accessible, making this a perfect home or pied-�-terre in one of Bath's most sought-after settings.

Key Information - Tenure: Leasehold with share of freehold
Lease: 999 years from 25 March 1987
Service charge: approx. �960 pa
The exterior of the building was redecorated in 2025.
Ground rent: �25 pa
Council: Bath & North East Somerset, Band C
Garage available by separate negotiation
All mains utilities
Heating: gas boiler
EPC rating C
Residents' permit parking zone 1 https://www.bathnes.gov.uk/apply-residents-parking-permit (for residential use)

Buyer Verification Checks - Buyer Verification Checks - Legal Requirement
Please note that, in accordance with UK Anti-Money Laundering (AML) regulations, all buyers whose offer is accepted must undergo identity (ID), AML, and source of funds verification before the sale can proceed.
These checks are a legal requirement and ensure compliance with current legislation. The cost for this service is �45 plus VAT per person, payable by the buyer.
We will contact you with full instructions once an offer has been agreed.

Property Ref: 230823_34295527

Share:

Similar Properties

Portland Place, Lansdown

3 Bedroom Apartment | Offers in excess of £350,000

We are delighted to present this beautifully maintained and generously proportioned second floor apartment in a Grade II...

Grove Street, Bath

2 Bedroom Apartment | Offers in excess of £300,000

A spacious and well-presented two-bedroom first-floor apartment with lift access, set in a central location and offered...

Vineyards, Walcot, Bath

1 Bedroom Apartment | Offers in excess of £225,000

Situated in the heart of Bath, this charming Georgian apartment offers a delightful blend of character and modern living...

Rhodyate, Blagdon, Somerset

3 Bedroom Detached House | Offers in excess of £450,000

A beautifully presented three-bedroom period stone cottage, dating back 200 years, in the sought-after village of Blagdo...

Marlborough Buildings, Bath

3 Bedroom Apartment | Offers in excess of £475,000

A stunning lateral apartment adjacent to Royal Crescent on the top floor of this Bath stone property offering the finest...

65 Great Pulteney Street, Bath

1 Bedroom Apartment | Offers in excess of £490,000

Set on one of Bath's premier addresses, this ground-floor Georgian apartment offers beautifully proportioned rooms with...

Peter Greatorex Unique Homes (Bath)

Bath, Somerset, BA1 1HE

01225 471144

How much is your home worth?

Use our short form to request a valuation of your property.

Request a Valuation

Mortgage Calculator

Amount Borrowed: £
Total Amount Repayable: £
Total Monthly Payment: £
©2026 The Guild of Property Professionals. All rights reserved. Terms and Conditions | Privacy Policy | Cookie Policy | Complaints Policy | Members Login
The Guild of Property Professionals Trading Address: 121 Park Lane, London W1K 7AG. GPEA Limited. Registered in England & Wales.  Company No: 02819824.  Registered Office Address: 2 St. Stephen's Court, St. Stephen's Road, Bournemouth, Dorset, England, BH2 6LA.  VAT Registration No: 576 8795 61
Book a Property Valuation Update Cookies Preferences