Bonfire Hill, Black Torrington, Beaworthy

Guide Price
£740,000

6 Bedroom Detached House for sale in Beaworthy

3 6 2
  • Period farmhouse
  • Annexe
  • Farmyard
  • Stables
  • Workshop
  • Woodland
  • Coppice
  • Lakes
  • Lawns
  • Orchard

Period farmhouse
Annexe
Farmyard
Stables
Workshop
Woodland
Coppice
Lakes
Lawns
Orchard
Bases for bell tents
PV panels
Range of local shops 6 miles away
Exeter to Paddington from 2hrs 10 mins
Exeter 37 miles
North Devon Coast 19 Miles
Dartmoor 15 miles
Ruby Way cycle path NCR3 close by

Upcott Farm over recent years has been run as a retreat centre and glampsite (Reforge Retreat) offering multiple income streams in the most wonderful setting and in parts, offering far reaching views across the rolling Devon countryside. The farm has been in the same family ownership for three generations and now being offered to the market as an ongoing business with massive potential to modernise and enhance the original building and grow the business.

Approached though a gated entrance a sweeping driveway leads into the complex with the farm sitting on the right and the yard, buildings and grounds beyond.

Farmhouse
Entrance to the farm is through a Mediterranean style walled courtyard, complete with covered veranda and large circular ornamental fish pond. Of an evening this must be a very enjoyable place to sit and chat especially as it is adjacent to the cob barn which comprises a splendid beamed function room, bar and snug, accessed via a ladder stair.

A glazed boot room provides ample room for outdoor gear and a door leads into a 22’ split level reception hall. The sitting room is a cosy space having a large granite fireplace with period character log burner inset. Doors open into both the study/office and courtyard. The double aspect study/office is currently used as a ground floor bedroom and within is a fitted bookcase and office desk. At the other end of the reception hall is found a delightful double aspect beamed breakfast room complete with tiled floor, impressive fireplace with tiled surround and an oil fired twin oven Rayburn sitting on a raised hearth. Of more recent times the kitchen has been refitted with an extensive range of wall, floor and drawer units with marble work surfaces running around three sides, a twin glazed sink, tiled floor and appliance space for dish washer, larger fridge/freezer and range cooker. Leading off the breakfast room is another reception room that would be ideal for a children’s playroom or even a fifth bedroom. A lean to garden room runs outside the breakfast room and kitchen and being some 33’ in length, is an ideal space for storing items required for the glamp site and annex accommodation. Leading off is the utility/boiler room which house the oil fired boiler for hot water and heating and has space for both washing machine and tumble dryer. A shower room and twin WC are found adjacent being available for use by visitors staying on site as there is a door leading to the grounds outside. Rounding off the ground floor accommodation is the refitted bathroom offering a white four piece suite with shower over bath, tiled walls and chequerboard tiled floor.

First Floor
Stairs rise from the breakfast room to a small landing off which there are three bedrooms two of which are doubles one having built in cupboards and a shower within, the other having a WC and wash hand basin behind sliding doors. The remaining room is ideal for bunks and has a built in cupboard.

Outside
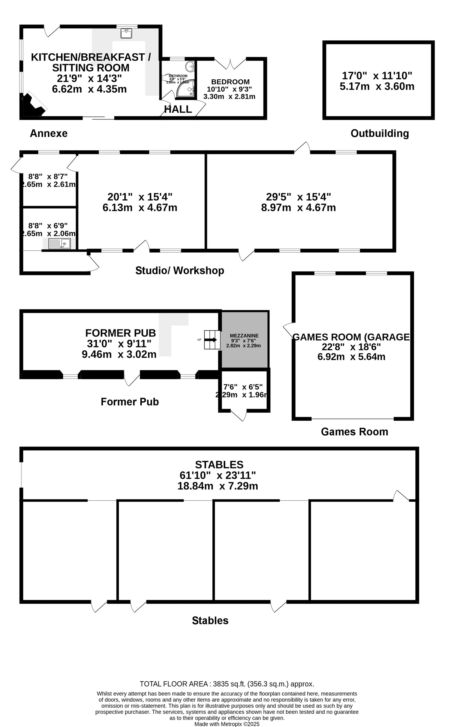
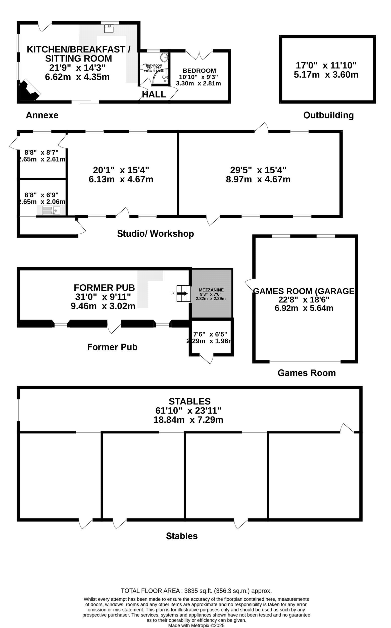
Artists Retreat (Annexe)
This is found just up from the main farm house and is approached across an easterly facing wooden deck. Sliding patio doors lead into the open plan living/kitchen space having tiled flooring and log burner in one corner. The kitchen has been fitted out with a range of modern units and work surfacing offering plenty of cupboard space, a bistro bar, electric cooker, oven and space for under counter fridge. An inner hall leads to a double bedroom and shower room with WC and wash hand basin.

Xanadu
This is the most amazing geodome structure, with part copper tiled roof, that was subject to a TV programmes during its design and build. Approached across a wooden walk bridge Xanadu gives the appearance of hovering above the water and stepping inside this 40’ space is quite an experience. Large bifold doors with decking outside overlook the water whilst the open plan space with hexagonal ends gives a feeling of light and airiness, having a sink midway, with bespoke copper pipe taps above protruding from a wavy birch panel. Leading off is a cloakroom WC.

Garaging
Fronting the road and with pedestrian access from the farmhouse garden, is a triple garage (one with water) that is connected to the reverse of the cob barn. A former double garage leads off the drive and is currently set up as a games room with work bench, power and light.

Stables
Opposite the annexe are four stables with large covered storage behind.

Yard
Through the pair of 5 bar gates leading to the farm yard is found another single storey building currently set up as a gallery some 29’ in length with a 19’ approx. workshop next door having a kitchenette and plant room which houses the controls and battery storage for the PV panels.

Toilet/Showers
Within the grounds there are wash/shower facilities and composting wc’s, on top of the facilities found adjacent to the farm house.

Polytunnel
This is sited just above the bell tents in the Meadow and had new plastic in 2022.

Fields
The farm land is approximately 7.5 acres in three distinct field enclosures with a stream acting as the boundary along one side. These currently form part of the area where bell tents and campervans can pitch.

Gardens, Grounds & Woodland
The formal gardens are located around and near the farmhouse and are laid to lawn studded with an abundance of spring bulbs. Immediately adjoining the garden room is a very large southerly facing terrace with a former garden room at the top. If removed this would open up into the coppice that runs along the side of the road leading to one of the lakes and the triple garage outside one of which sits a pizza oven.
The woodland is found along the southern boundary and provides a wonderful natural habitat with a meandering stream running through. The Vendor informs us every year the woodland floor puts on a spectacular bluebell show.

Throughout there is a sense of being away from it all and both formal and informal planting including bay, rose, birch, privet, broad leaf trees, horse chestnut tree, viburnum, box, apple, St. John’s wort, hydrangea and camelia.

The setting for this unique proposition is quite wonderful and wondering around there is a feeling of overall calm and tranquillity and there is an enormous sky line to enjoy the night sky or watch the colours change as the sun sets.

Agents Note :
Available by separate negotiation is a further 7.6 acres of ground with a 10,000sq ft agricultural barn with planning permission passed for the conversion to 2 X3 bedroom single storey properties. PV panels and battery storage available on separate negotiation. It is understood the farmhouse roof and adjacent building is corrugated asbestos

Main House 2378 Sq Ft/221 Sq M.

Garage/Studio/Workshop 1395 Sq Ft/130 Sq M.

Outbuilding 1680 Sq Ft/156 Sq M.

Annexe 479 Sq Ft/45 Sq M.

Former Pub 446 Sq Ft/41 Sq M.

Barn 11186 Sq Ft/1039 Sq M.

Tenure    Freehold

Council Tax    Band E- Torridge District Council

EPC House    D

EPC Annexe / Artist Retreat    D

EPC Xanadu    E

Viewing Arrangements    Strictly by appointment only with sole selling agent

Services    Mains water and electricity. The PV panels are linked to the house . Oil fired heating, private drainage.

Agents Note    Available by separate negotiation is a further 7.6 acres of ground with a 10,000sq ft agricultural barn with planning permission passed for the conversion to 2 X
3 bedroom single storey properties. PV panels and battery storage available on separate negotiation. It is understood the farmhouse roof and adjacent building is corrugated asbestos

Directions

Leave Exeter via the A30 heading towards Launceston for about 22 miles leaving at the A386 junction and head towards Hatherleigh. After about 10 miles at the Hatherleigh roundabout take the 1st exit onto the A3072 signed to Holsworthy and Highampton. On leaving Highampton a sign for Black Torrington (1 mile) will be found on the
left hand side at Windmilland Cross. The property will be found on the right after about 1 mile clearly marked.

From Torrington take the New street exit heading towards Bideford and at the outskirts of the town bear left on the B3227 Langtree road. Proceed through the village of Langtree and on to Stibb Cross. At the crossroads take the left hand turning sign posted Shebbear. Continue along this road and upon entering Shebbear take the left hand turning signposted Black Torrington. Continue through the village and out the other side where the entrance will be seen half way up on the left hand side.

What3words ///condition.decorated.barstool

Important Information

  • This is a Freehold property.

Property Ref: TOR250213

Share:

Similar Properties

Peters Marland, Great Torrington, Devon

4 Bedroom Detached House | Guide Price £700,000

Set amidst Devon rural countryside this detached home provides for very stylish contemporary living, within delightful f...

Roborough, Winkleigh, Devon

5 Bedroom Equestrian Facility | Guide Price £700,000

Set within an idyllic rural setting, this impressive five bedroom family home offers an exceptional lifestyle opportunit...

Stevenstone, Torrington, Devon

4 Bedroom Detached House | Guide Price £700,000

A rare opportunity to own a charming split-level home on the historic Stevenstone Estate, just 2.5 miles from Great Torr...

Petrockstowe, Okehampton, Devon

5 Bedroom House | Guide Price £750,000

A beautiful Grade II listed cottage with a south facing garden and woodland extending to approximately 3.75 acres.

Sampford Courtenay, Okehampton, Devon

4 Bedroom Detached House | Guide Price £795,000

Sitting in a prominent position within this popular village which has a well regarded public house, a handsome and subst...

Shebbear, Beaworthy, Devon

4 Bedroom Detached House | Offers in excess of £900,000

An ENERGY EFFICIENT and IMPOSING EXECUTIVE HOME, built to exacting standards, offering IMPRESSIVE CONTEMPORARY STYLED AC...

Webbers Torrington (Torrington)

Torrington, Devon, EX38 8HN

01805 624334

How much is your home worth?

Use our short form to request a valuation of your property.

Request a Valuation

Mortgage Calculator

Amount Borrowed: £
Total Amount Repayable: £
Total Monthly Payment: £
©2026 The Guild of Property Professionals. All rights reserved. Terms and Conditions | Privacy Policy | Cookie Policy | Complaints Policy | Members Login
The Guild of Property Professionals Trading Address: 121 Park Lane, London W1K 7AG. GPEA Limited. Registered in England & Wales.  Company No: 02819824.  Registered Office Address: 2 St. Stephen's Court, St. Stephen's Road, Bournemouth, Dorset, England, BH2 6LA.  VAT Registration No: 576 8795 61
Book a Property Valuation Update Cookies Preferences