Albemarle Road, Beckenham

Guide Price
£350,000
SSTC
This property listing is now SSTC

2 Bedroom Flat for sale in Beckenham

1 2 1
  • CHAIN FREE
  • TWO BEDROOM GROUND FLOOR FLAT
  • SHARE OF FREEHOLD
  • 979 YEAR LEASE
  • GARAGE EN BLOC
  • 0.6 MILES FROM BECKENHAM JUNCTION BR STATION
  • COUNCIL TAX D
  • EPC RATING C

*** Guide Price £350,000 - £365,000 ***

Charles Eden are delighted to offer this CHAIN FREE, two double bedrooms, ground floor flat, on Albemarle Road, Beckenham. The flat is presented in excellent condition throughout and benefits from a SHARE OF FREEHOLD, 979 year lease, direct access to the commual gardens at the rear, and garage en bloc.

Communal Entrance - Interncom system, door leading into

Private Entrance - Door leading into:

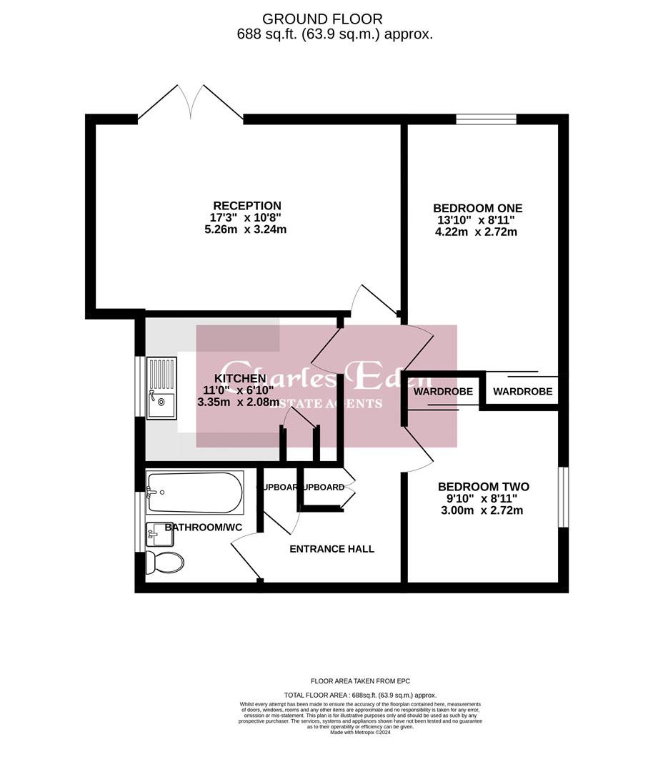
Hallway - Coved ceiling, radiator, laminate wood flooring.

Lounge - 5.26m x 3.25m (17'3 x 10'8) - Double glazed bi-fold doors leading out to patio and communal gardens, coved ceiling, two radiators, laminate wood flooring.

Kitchen - 3.35m x 2.08m (11'0 x 6'10) - Double glazed window to side, comprising a range of wall and base units with wood block work surfacing over, single bowl sink with mixer tap inset in worktop, four ring electric hob with hood over, electric oven, washing machine, fridge freezer, part tiled walls, tiled floor.

Bedroom One - 4.22m x 2.72m (13'10 x 8'11) - Double glazed window to rear, built-in wardrobe, radiator, laminate wood flooring.

Bedroom Two - 3.00m x 2.72m (9'10 x 8'11) - Double glazed window to side, built-in wardrobe, radiator, laminate wood flooring.

Bathroom / Wc - Opaque double glazed window to side, L-shaped tiled shower bath with mixer tap, shower flexi hose with glass shower screen, wash hand basin with mixer tap and cupboard under, low level WC, heated towel rail, fully tiled walls, tiled flooring.

Outside -

Communal Gardens - Mainly laid to lawn with shrubs and trees.

Garage - Located en-bloc to rear of building, 2nd from the left.

Parking - Shared parking space to front and back of building.

Lease - 999 years from 2004 (979 years remaining)

Service/Maintainence - £170.00 pcm

Ground Rent - N/A

Epc Rating C -

Council Tax D -

Property Ref: 13964_33354146

Share:

Similar Properties

Albemarle Road, Beckenham

2 Bedroom Flat | Guide Price £335,000

Two bedroom fifth floor apartment set within a popular block close to the amenities of both Beckenham Junction Station a...

Woodstock Gardens, Beckenham

1 Bedroom Flat | Offers in excess of £315,000

Charles Eden are delighted to present this spectacular one-bedroom ground floor flat, set within the sought-after Woodst...

Bromley Road, Beckenham

1 Bedroom Flat | Guide Price £275,000

Located in the sought-after Haven Court development on Bromley Road, this well-presented one-bedroom first-floor balcony...

Court Downs Road, Beckenham

2 Bedroom Flat | Guide Price £375,000

Less than 1/4 mile from Beckenham High Street and a few hundred yards from the beautiful Kelsey Park, Charles Eden are p...

Birkbeck Road, Beckenham

2 Bedroom Flat | Guide Price £375,000

Charles Eden are delighted to offer this two bedroom, one bathroom, top floor Victorian conversion located close to fant...

15 The Avenue, Beckenham

2 Bedroom Flat | Guide Price £375,000

Charles Eden are delighted to present this chain free, conveniently located two bedroom first floor apartment located wi...

Charles Eden (Beckenham)

Beckenham, Kent, BR3 1AW

020 8663 1964

How much is your home worth?

Use our short form to request a valuation of your property.

Request a Valuation

Mortgage Calculator

Amount Borrowed: £
Total Amount Repayable: £
Total Monthly Payment: £
©2025 The Guild of Property Professionals. All rights reserved. Terms and Conditions | Privacy Policy | Cookie Policy | Complaints Policy | Members Login
The Guild of Property Professionals Trading Address: 121 Park Lane, London W1K 7AG. GPEA Limited. Registered in England & Wales.  Company No: 02819824.  Registered Office Address: 2 St. Stephen's Court, St. Stephen's Road, Bournemouth, Dorset, England, BH2 6LA.  VAT Registration No: 576 8795 61
Book a Property Valuation Update Cookies Preferences