2 Bedroom Mid Terrace

Asking Price
£249,995
Under Offer
This property listing is now Under Offer

2 Bedroom Terraced House for sale in Bedfordshire

2 2 1
  • 2 Double Bedrooms
  • 2 Reception Rooms
  • Original Cast Iron Fireplaces
  • Newly Fitted Bathroom
  • Newly Fitted Boiler
  • Walking Distance to the Town Centre & Station
  • Excellent Schools Closeby
  • East Access to M1 & A1 Motorways

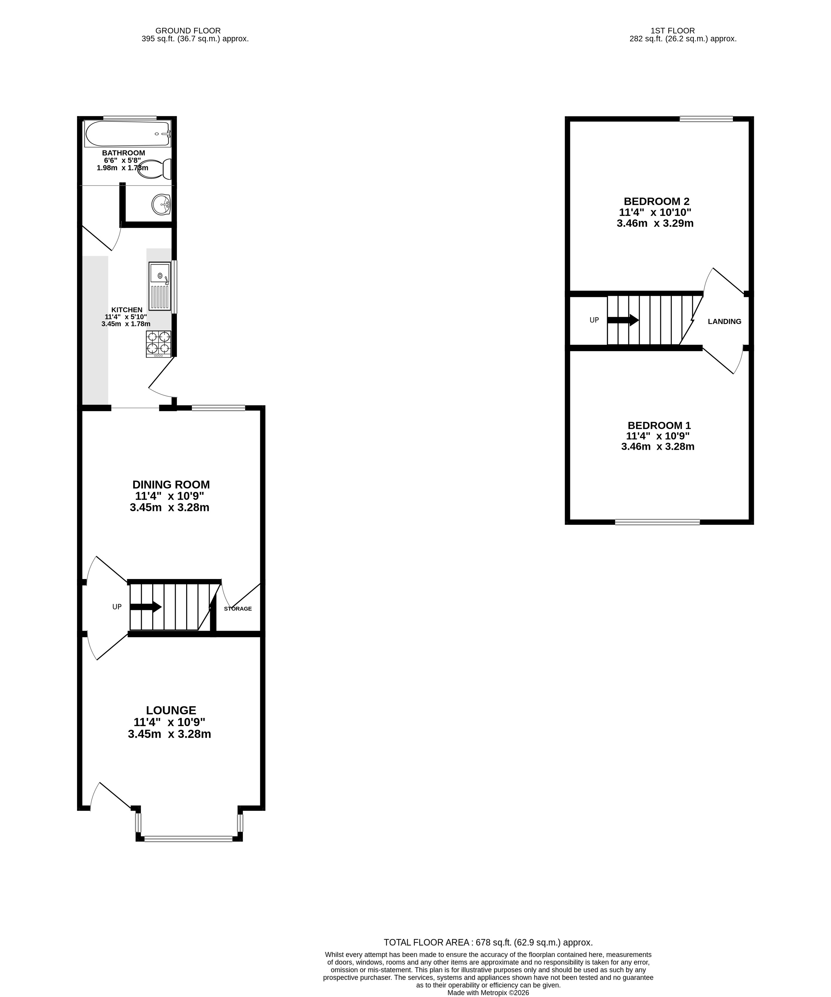
* URBAN & RURAL STOPSLEY * are proud to present this 2 bedroom terraced property featuring 2 double bedrooms, 2 reception rooms, refitted bathroom and boiler, and good sized rear garden.

The property comprises of 2 reception rooms, kitchen and refitted bathroom on the ground floor with stairs leading to 2 double bedrooms upstairs. There is a small front garden and large back garden mainly laid to lawn.

This property is ideal for first time buyers and investors as it is situated close to excellent schools, the mainline train station, town centre and easy access to the A1 & M1 motorways.

CLICK THROUGH for colour photos and full floorplan with measurements. Call today!

Important Information

  • This is a Freehold property.
  • This Council Tax band for this property is: B

Property Ref: STO260008

Share:

Similar Properties

2 bed semi in round green with private driveway

2 Bedroom Semi-Detached House | Asking Price £249,995

* URBAN & RURAL STOPSLEY * VIDEO TOUR * This fantastic 2 bedroom semi-detached is tucked away in a private cul de sac wi...

2 bed end of terrace in Stopsley.

2 Bedroom End of Terrace House | Offers Over £249,995

* URBAN & RURAL STOPSLEY * SOUTH FACING REAR GARDEN * This excellent 2 bedroom end of terrace property is an ideal first...

Extended 2 bed in Putteridge with No chain.

2 Bedroom Terraced House | Asking Price £249,995

* URBAN & RURAL STOPSLEY * VIDEO TOUR * NO CHAIN * Located in a quiet cul de sac in Putteridge, this well presented 2 be...

3 bedroom steel framed family home

3 Bedroom Semi-Detached House | Asking Price £250,000

* URBAN AND RURAL STOPSLEY * 3 BEDROOMS * NO CHAIN * A semi-detached family home in need of some updating. There is a la...

Extended 2 Bedroom Terraced Property

2 Bedroom Terraced House | Guide Price £250,000

DOUBLE STOREY EXTENSION - 2 BATHROOMS* URBAN & RURAL STOPSLEY * are proud to present this extended 2 double bedroom prop...

3 bed end of terrace needing updating

3 Bedroom End of Terrace House | Offers Over £250,000

* URBAN & RURAL STOPSLEY * NO CHAIN * This 3 bedroom end of terrace houses is located in Wigmore and is in need of total...

Urban & Rural (Stopsley (Luton))

Stopsley (Luton), Bedfordshire, LU2 7UN

01582 422244

How much is your home worth?

Use our short form to request a valuation of your property.

Request a Valuation

Mortgage Calculator

Amount Borrowed: £
Total Amount Repayable: £
Total Monthly Payment: £
©2026 The Guild of Property Professionals. All rights reserved. Terms and Conditions | Privacy Policy | Cookie Policy | Complaints Policy | Members Login
The Guild of Property Professionals Trading Address: 121 Park Lane, London W1K 7AG. GPEA Limited. Registered in England & Wales.  Company No: 02819824.  Registered Office Address: 2 St. Stephen's Court, St. Stephen's Road, Bournemouth, Dorset, England, BH2 6LA.  VAT Registration No: 576 8795 61
Book a Property Valuation Update Cookies Preferences