Juniper Close, Bedworth, CV12 0NY

Guide Price
£390,000
SSTC
This property listing is now SSTC

4 Bedroom Detached House for sale in Bedworth

1 4 2
  • Detached Family Residence
  • Woodlands Park Estate
  • Near 'The Nook' nature and wildlife park
  • Immaculate Throughout
  • Lounge, Family Dining Kitchen & WC
  • Four Bedrooms, En-Suite & Bathroom
  • Driveway, Garage & Gardens
  • Early Viewing Advised
  • EPC Rating C
  • Council Tax Band E

Here is a Detached Family Residence nestled within the highly regarded Juniper Close, Woodlands Park. This exceptional four bedroom detached family home presents an unmissable opportunity for those seeking a blend of contemporary living and convenient access to nature. This property is meticulously designed to cater to the needs of a growing family, offering ample space and a host of desirable features.
Upon entering through the composite front entrance door, you are greeted by a welcoming hall that sets the tone for the quality found throughout. The ground floor seamlessly flows into a convenient guests' cloakroom, a practical addition for any busy household. The heart of the home truly comes alive in the spacious lounge, a perfect sanctuary for relaxation. This inviting room features a stylish media wall and elegant feature wall panelling, adding a touch of sophistication. Double doors from the lounge open into the impressive family dining kitchen, creating a wonderful open-plan feel ideal for entertaining and everyday family life.
Undoubtedly the focal point of this residence, the family dining kitchen is a culinary dream. It boasts an extensive array of modern units, providing abundant storage, complemented by a fitted double oven, hob, and extractor fan. An inset sink unit with a mixer tap, along with further storage, ensures both functionality and aesthetic appeal. The centrepiece is a stylish island, complete with a wine fridge and a dedicated breakfast area, perfect for casual meals or social gatherings. The kitchen is further enhanced by bi-fold doors that open directly onto the rear garden, seamlessly blending indoor and outdoor living and allowing natural light to flood the space. There is a further door to the side and an internal door from the dining kitchen provides direct access to the garage, offering practicality and security.
Ascending to the first floor, the landing features an airing cupboard, which benefits from a recently improved water pressure system, ensuring a consistent and powerful flow. This floor accommodates four well proportioned bedrooms, providing comfortable private spaces for all family members. The main bedroom is a true retreat, benefiting from its own en-suite shower room, offering a private haven for the homeowners. The remaining bedrooms are served by the main family bathroom, which comprises a contemporary white suite including a panelled bath with a shower over, a wash hand basin, and a low-level WC, all finished to a high standard.
Externally, the property continues to impress. A private driveway leads to the garage, providing off-road parking and additional storage. The front garden is neatly laid to lawn, enhancing the property's kerb appeal. The rear garden is a delightful outdoor space, featuring a paved patio area perfect for al fresco dining and entertaining, alongside a maintained lawn. The garden is enclosed by secure fence and wall boundaries, with a convenient side access gate. This outdoor area offers a safe and private environment for children to play and for adults to relax.
One of the property's most significant advantages is its prime location near 'The Nook,' a charming public nature and wildlife park situated within the larger Woodlands Park residential estate. This proximity offers unparalleled opportunities for leisurely strolls, outdoor activities, and enjoying local wildlife, right on your doorstep. This ideal growing family home on a highly regarded residential estate truly offers everything one could desire. Early viewing is strongly advised to fully appreciate the quality, space, and superb location this property has to offer.
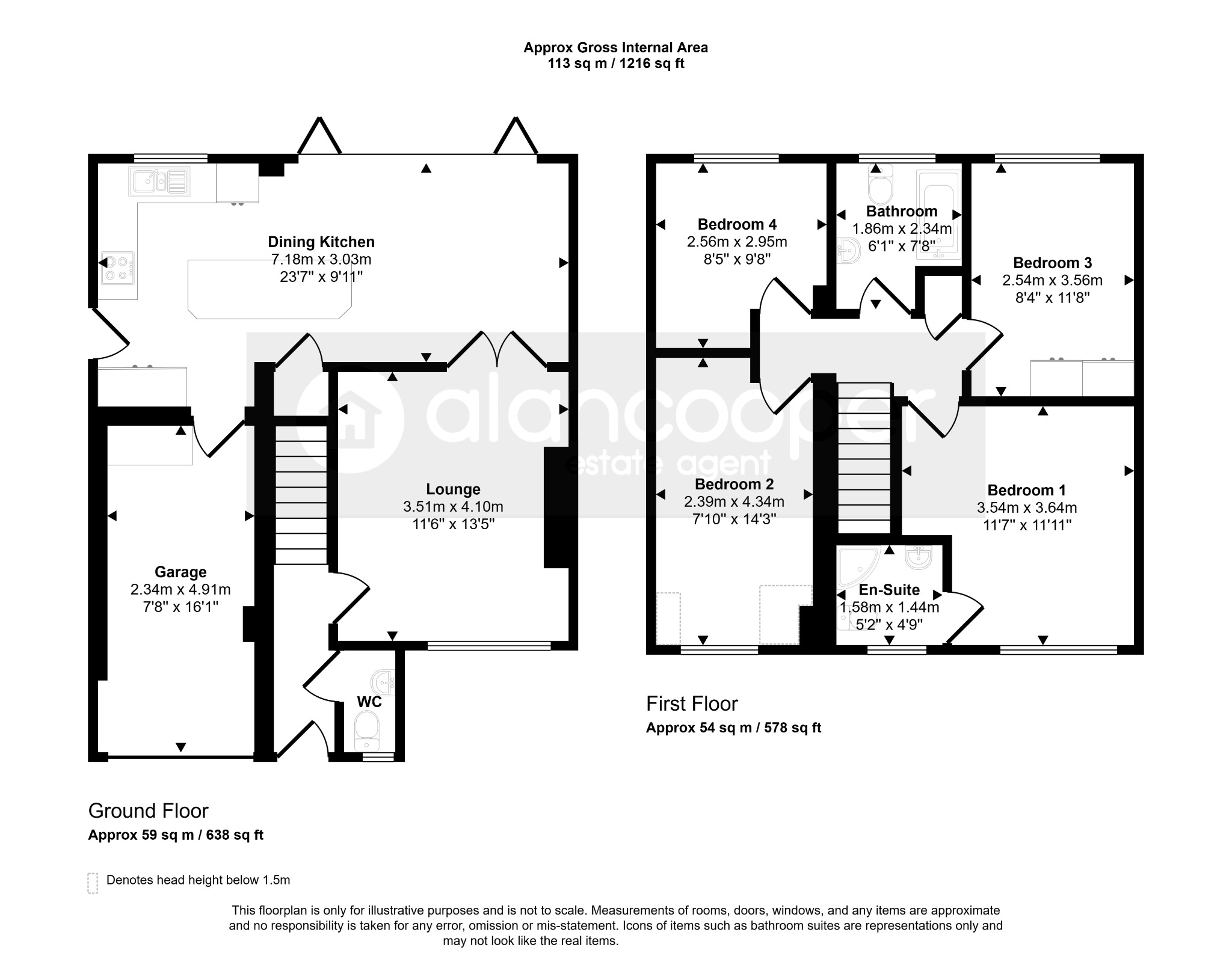
Hall
Guests Cloakroom
Lounge11' 6" x 13' 5"
Dining Kitchen23' 7" x 9' 11" Maximum
Landing
Bedroom 111' 7" x 11' 11"
En-Suite
Bedroom 27' 10" x 14' 3"
Bedroom 37' 10' x 14' 3"
Bedroom 48' 5" x 9' 8"
Family Bathroom6' 1" x 7' 8"
Driveway
Garage
Garden
Local AuthorityNuneaton & Bedworth Borough Council.
Agents NoteWe have not tested any of the electrical, central heating or sanitary ware appliances. Purchasers should make their own investigations as to the workings of the relevant items. Floor plans are for identification purposes only and not to scale. All room measurements and mileages quoted in these sales details are approximate. Subjective comments in these details imply the opinion of the selling Agent at the time these details were prepared. Naturally, the opinions of purchasers may differ. These sales details are produced in good faith to offer a guide only and do not constitute any part of a contract or offer. We would advise that fixtures and fittings included within the sale are confirmed by the purchaser at the point of offer. Images used within these details are under copyright to Alan Cooper Estates and under no circumstances are to be reproduced by a third party without prior permission.

Important Information

  • This is a Freehold property.
  • This Council Tax band for this property is: E

Property Ref: 408242

Share:

Similar Properties

Sheelin Crescent, Eliot's View, Nuneaton, CV10 0HZ

4 Bedroom Detached House | Guide Price £390,000

Alan Cooper Estates are delighted to present this modern Detached Residence, built by Redrow Homes to a high specificati...

Tiverton Drive, Horeston Grange, Nuneaton, CV11 6YL

4 Bedroom Detached House | Guide Price £387,000

Here is an impressive Detached Family Residence nestled within a highly sought-after estate. This four bedroom house pre...

Highfield Road, Attleborough, Nuneaton, CV11 4PW

3 Bedroom Detached House | Guide Price £385,000

Detached Family Residence boasting an impressive plot and nestled on the highly sought-after thoroughfare of Highfield R...

Ambleside Way, St Nicolas Park, Nuneaton, CV11 6AT

4 Bedroom Detached House | Guide Price £397,000

Extended chalet style Detached Residence, situated upon the highly favoured St Nicolas Park estate. Boasting spacious fa...

Gloucester Close, St Nicolas Park, Nuneaton, CV11 6FU

4 Bedroom Detached House | £399,000

Welcome to this modern Detached Residence offering excellent family accommodation upon the highly favoured St Nicolas Pa...

Julius Way, Eaton Place, Nuneaton, CV11 6ZR

4 Bedroom Detached House | Guide Price £400,000

Alan Cooper Estates are delighted to present this superbly appointed double fronted Detached Residence designed to suit...

Alan Cooper Estates (Nuneaton)

22 Newdegate Street, Nuneaton, Warwickshire, CV11 4EU

024 7634 9336

How much is your home worth?

Use our short form to request a valuation of your property.

Request a Valuation

Mortgage Calculator

Amount Borrowed: £
Total Amount Repayable: £
Total Monthly Payment: £
©2026 The Guild of Property Professionals. All rights reserved. Terms and Conditions | Privacy Policy | Cookie Policy | Complaints Policy | Members Login
The Guild of Property Professionals Trading Address: 121 Park Lane, London W1K 7AG. GPEA Limited. Registered in England & Wales.  Company No: 02819824.  Registered Office Address: 2 St. Stephen's Court, St. Stephen's Road, Bournemouth, Dorset, England, BH2 6LA.  VAT Registration No: 576 8795 61
Book a Property Valuation Update Cookies Preferences