47 Cedar Avenue, BT15

Offers Over
£214,950
SSTC
This property listing is now SSTC

4 Bedroom Terraced House for sale in Belfast

4
  • Well Presented 4 bedroom mid terrace property
  • Newly fitted modern kitchen
  • Spacious reception room
  • Modern bathroom suite
  • Four generous bedrooms
  • Gas fired central heating & double glazed
  • Front & rear gardens
  • Popular and convenient location
  • No onward chain
  • Parking

Property People are delighted to present this well-presented 4-bedroom mid-terrace property located at 47 Cedar Avenue, Belfast. Situated in a popular and convenient location on the Antrim Road and close to many beautiful parks including the Waterworks. This property offers a modern and comfortable living space, ready to move in.

Upon entering, you are greeted by a newly fitted modern kitchen, perfect for entertaining. The spacious reception room provides an ideal setting for relaxation and entertainment. The property boasts a modern bathroom suite, ensuring convenience and style.

With four generous bedrooms, this house offers ample space for a growing family or those in need of extra room. Additional features include gas-fired central heating, double glazing, front and rear gardens, and the added benefit of no onward chain.

Don't miss the opportunity to make this charming terraced house your new home.
Contact our North Belfast office to arrange a viewing on 02890 747300.
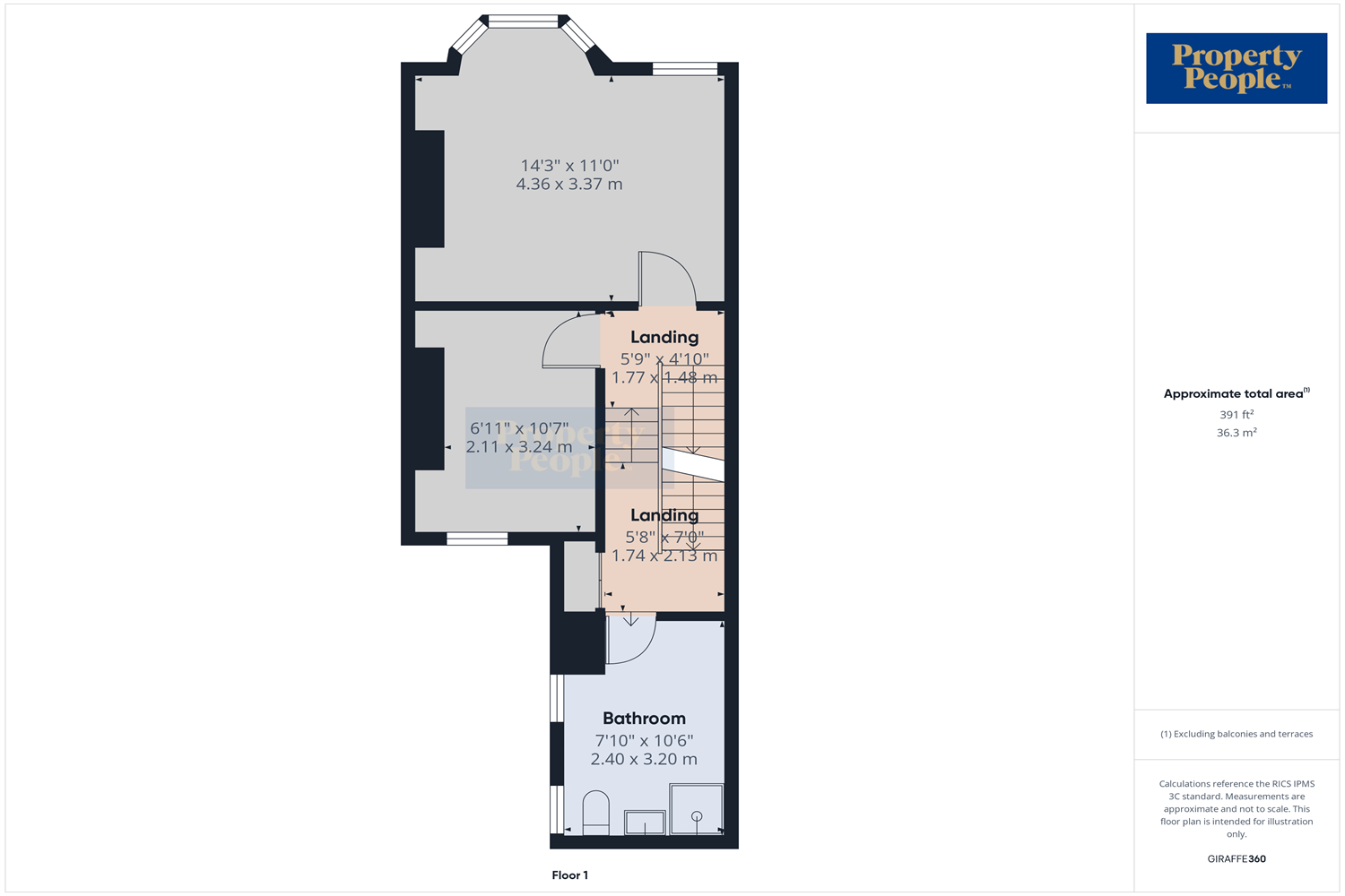
2.4m (7'10) x 3.2m (10'6)
Newly fitted kitchen with high and low level units, ceramic hob, extractor fan, vinyl flooring.
2.73m (8'11) x 7.62m (25')
Laminate flooring, fireplace, double radiator and bay window.
2.11m (6'11) x 3.24m (10'8)
Laminate flooring, single radiator.
4.36m (14'4) x 3.37m (11'1)
Laminate flooring, single radiator, feature bay window.
2.53m (8'4) x 3.28m (10'9)
Laminate flooring, single radiator.
4.37m (14'4) x 3.48m (11'5)
Laminate flooring, velux window, single radiator.
2.4m (7'10) x 3.2m (10'6)
Shower enclosure, WHB, WC, vinyl flooring.

Enclosed rear garden

Gas Fired Central Heating.

uPVC Double Glazing.

Property Ref: 4524

Share:

Similar Properties

198 Stockmans Lane, BT11

3 Bedroom Semi-Detached House | £214,950

Property People are thrilled to present this stylish and well-maintained three-bedroom semi-detached home, superbly posi...

58b Edinburgh Street, BT97

3 Bedroom Terraced House | £210,000

Modern Living in the Heart of Belfast - 3 Bed House with Stylish Features on Edinburgh Street, Belfast

11 Camberwell Terrace, BT15

3 Bedroom Terraced House | £210,000

Property People welcome you to this well-presented mid-terrace home that effortlessly blends charm and character in abun...

103 Warren Gardens, BT28

3 Bedroom Semi-Detached House | £215,000

Property People are delighted to bring to the sales market - 103 Warren Gardens, Lisburn. This amazing and well presente...

52 Linden Gardens, BT14

3 Bedroom Semi-Detached House | £224,950

Property People are proud to present this fantastic redbrick semi-detached family home with stunning views to the open m...

223 Antrim Rd, BT15

5 Bedroom End of Terrace House | Offers Over £230,000

New to the Market - Stunning 5-Bedroom Townhouse!Property People are absolutely delighted to present this immaculately f...

Property People (Belfast)

Belfast, Antrim, BT15 2GY

028 9074 7300

How much is your home worth?

Use our short form to request a valuation of your property.

Request a Valuation

Mortgage Calculator

Amount Borrowed: £
Total Amount Repayable: £
Total Monthly Payment: £
©2026 The Guild of Property Professionals. All rights reserved. Terms and Conditions | Privacy Policy | Cookie Policy | Complaints Policy | Members Login
The Guild of Property Professionals Trading Address: 121 Park Lane, London W1K 7AG. GPEA Limited. Registered in England & Wales.  Company No: 02819824.  Registered Office Address: 2 St. Stephen's Court, St. Stephen's Road, Bournemouth, Dorset, England, BH2 6LA.  VAT Registration No: 576 8795 61
Book a Property Valuation Update Cookies Preferences